6000 Lockehaven Dr, Saanich

2026-04-15
 

Quick Summary

Location
6000 Lockehaven Dr, Saanich, British Columbia V8N4J5
Price
$3,888,800 CAD
Status:
For Sale
Property Type:
Vacant Land
Garages:
8
Year of Construction:
1947
Video Link:

MLS®#1032191

Property Description

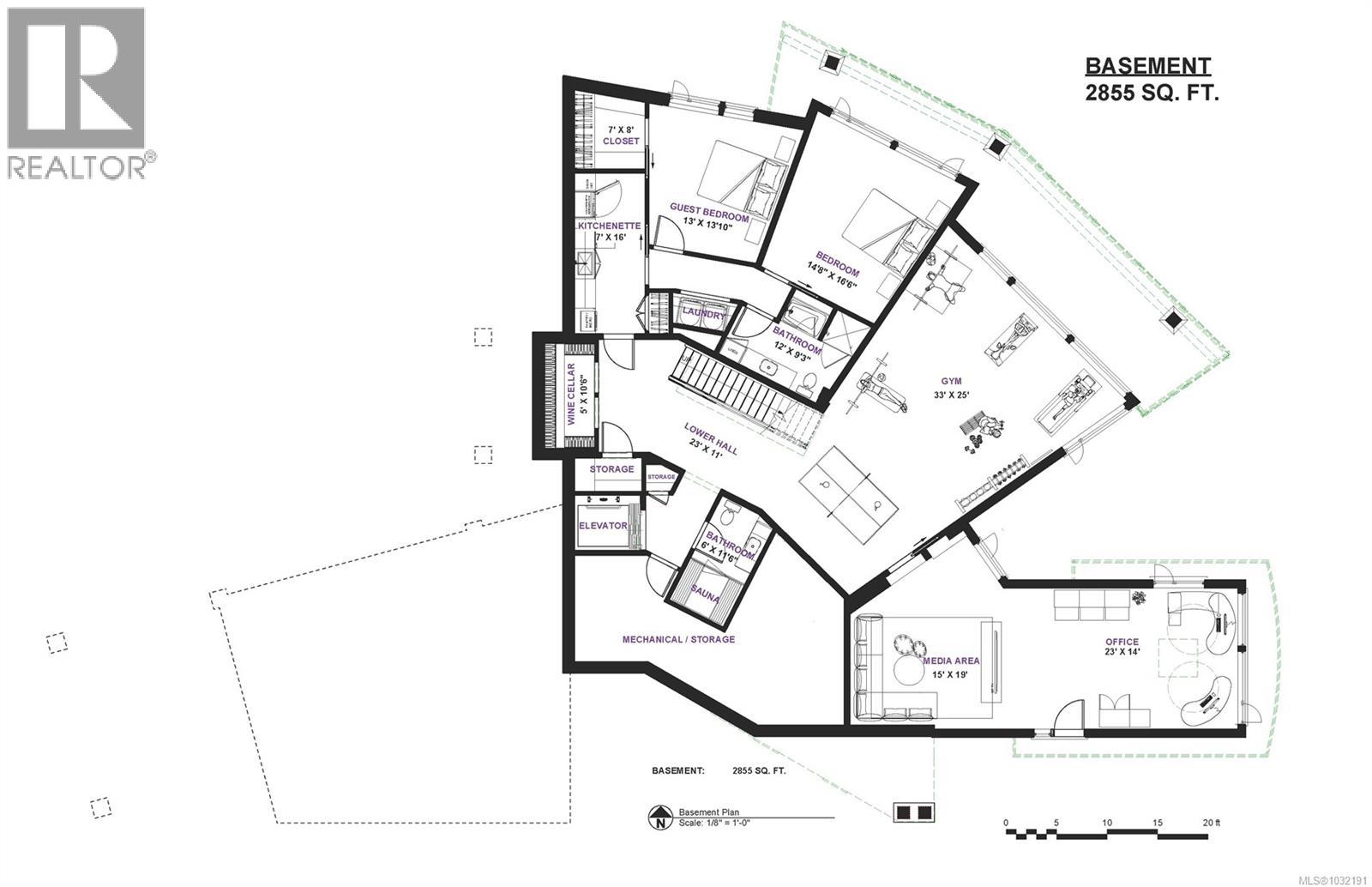
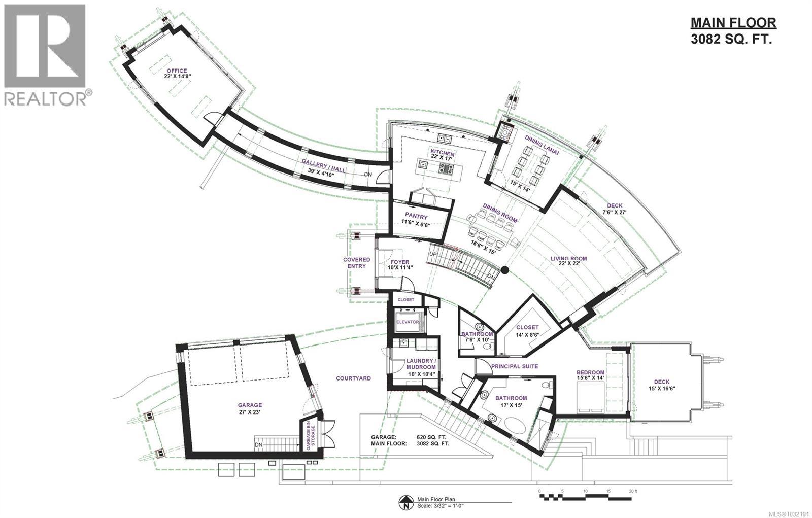
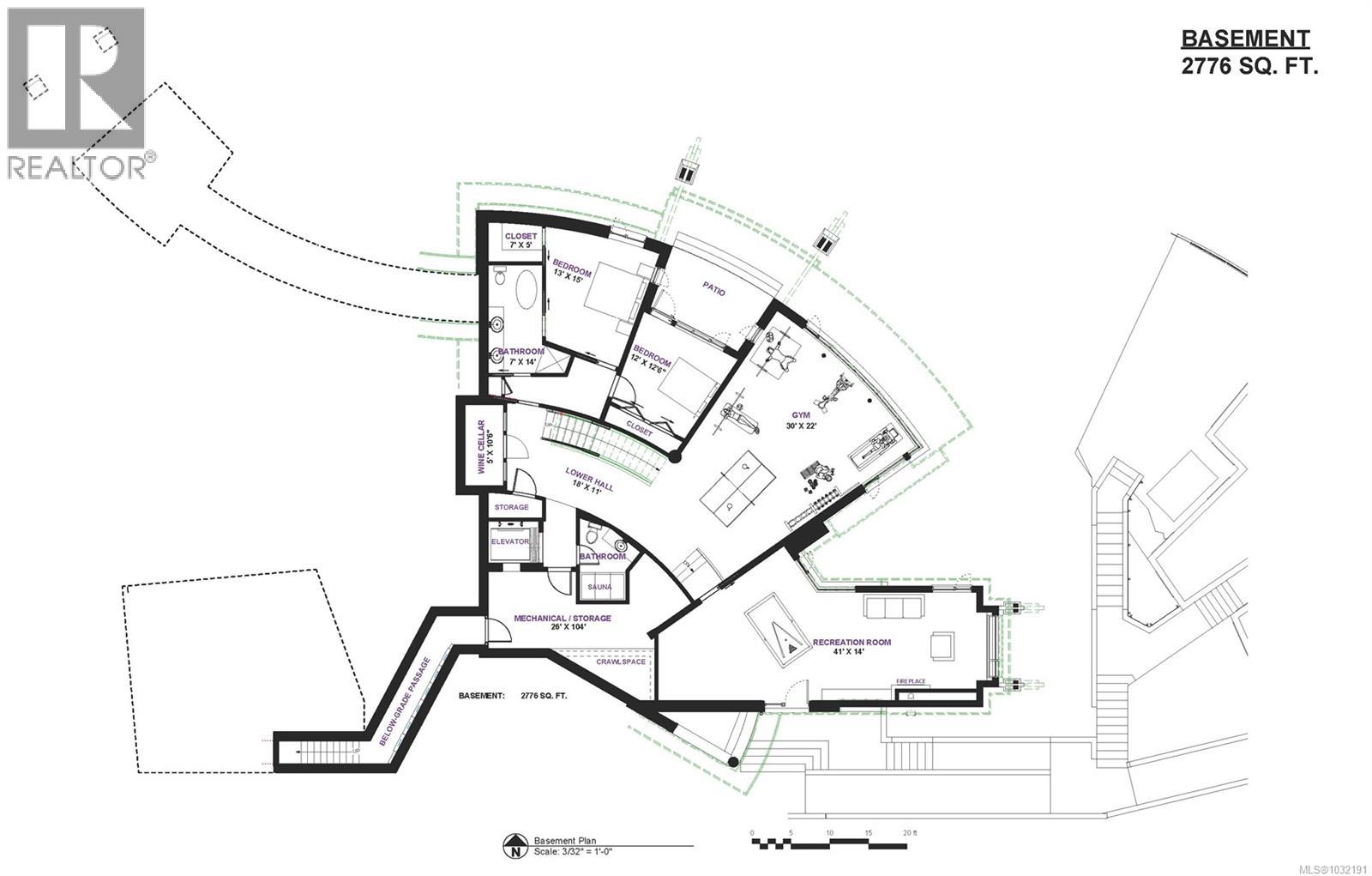
Welcome to an exceptional 1 acre waterfront property on prestigious Ten Mile Point. The pie shaped lot at the end of a cul-de-sac features 230 feet of rugged coastline. Savour panoramic views of the Haro Strait and San Juan Islands with breathtaking Mt. Baker sunrises. Build your dream home in the middle of a dramatic 70 foot coastal bluff slope with a view of Phyllis Park forest at the top and access to the rocky shoreline below. A very private oasis, yet minutes to downtown Victoria. Consider two sets of contemporary development plans by Keith Baker Design (8770 and 7564 sqft homes). Previously approved variance and building permits include an accessory building where the existing cabin sits by a cove at the water’s edge. Consult with an outstanding team led by award winning Falcon Heights Contracting that has detailed knowledge of the property and plans. Or bring your own vision! Land is prepped with required fencing. (Buyer to verify details with Saanich.) CLICK MUST SEE VIDEO!! (id:32467)

Property Features

Building

  • Cooling Type: None
  • Fireplace: No

Features

  • Feature: Cul-de-sac, Park setting, Private setting, Sloping, Other, Pie

Land

  • Land Size: 0.98 ac

Ownership

  • Type: Freehold

Zoning

  • Description: RS-16

Information entered by Royal LePage Coast Capital - Westshore
Listing information last updated on: 2026-04-15 15:09:02


Book your free home evaluation with a 1% REALTOR® now!


How much could you save in commission selling with One Percent Realty?

Slide to select your home's price:

$500,000

Your One Percent Realty Commission savings

$500,000

Savings calculated using One Percent Realty's posted commission rates compared to another agent charging 7% on the first 100k & 2.5% on the balance + GST. Not all agents charge the same. Savings shown are illustrative only. Actual commission costs depend on the commission structure negotiated with your agent.

Send a Message


One Percent Realty's top FAQs

Q
What is the deal exactly, with One Percent?

We are a fully licensed real estate company that offers full service but at a discount commission. In terms of services and exposure, we are identical to whoever you would like to compare us with. We are on MLS®, all the top internet real estates sites, we place a sign on your property ( if it's allowed ), we show the property, hold open houses, advertise it, handle all the negotiations, plus the conveyancing. There is nothing that you are not getting, except for a high commission!

Q
What do you charge?

Each agent sets their own commission structure, subject to a maximum of 1% for listing services and up to 1% payable to cooperating brokerages. Homes under $500,000 are subject to a minimum charge of $9,950

Q
Are your listings on MLS® and realtor.ca?

Yes, and yes.


Learn more about the One Percent Realty Deal

 

Valentino ‎ Prundaru REALTOR®, Licensed Real Estate Agent

Phone:
(250) 686-2242
Email:
prundaru@gmail.com
Support Area:
Victoria, Saanich, Oak Bay, Esquimalt, Langford, Colwood, Central Saanich, North Saanich, Sidney, View Royal, Metchosin, Highlands, Sooke, Saanich East, Saanich West, James Bay, Fairfield, Shawnigan Lake, Mill Bay, Cobble Hill, Cowichan Bay, Duncan

Full MLS Real Estate Services at Low Commission for Sellers! Cash Back for Buyers! Meet Valentino: ...

Full Profile

 

Maria Furtado REALTOR®

Phone:
(250) 881-3754
Email:
furtadomaria.re@gmail.com
Support Area:
Victoria, saanicheast, saanichwest, oakbay, fernwood, fairfield, langford, millhill, happyvalley, gordonhead, cedarhill, mttolmie, arbutus, 10milepoint, sooke, sidney, northsaanich, colwood, metchosin, jamesbay, victoriawest, esquimalt, viewroyal, royalbay, bearmountain, rockland

You don' ...

Full Profile

 

Ray Kong - P.Eng REALTOR®

Phone:
(250) 590-7011
Mobile:
(250) 858-0099
Email:
raykong2020@gmail.com
Support Area:
Victoria, Sidney, Sooke, Langford, Colwood, Saanish east, Saanich West, View royal, Metchosin, Saanich Peninsula

   Top Real Estate Agents Working For You Ray Kong ,P.Eng Our Mission: To provi ...

Full Profile