575 Stirling Road, Kelowna

2026-04-14
 

Quick Summary

Location
575 Stirling Road, Kelowna, British Columbia V1X3X4
Price
$749,000 CAD
Status:
For Sale
Property Type:
Single Family
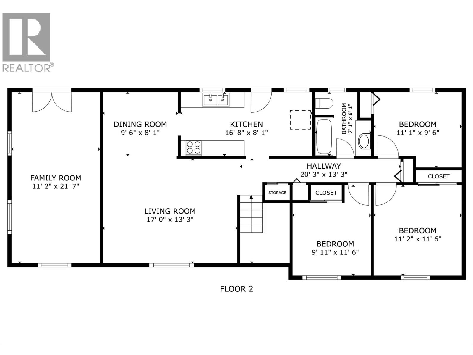
Area:
2332 sqft
Bedrooms:
5
Bathrooms:
2
Garages:
5
Year of Construction:
1973
Video Link:

MLS®#10383286

Property Description

Looking for a solid home with an outdoor space that truly stands out? this is the one. Situated on a large lot, this property is a great find for families, first time buyers, or savvy investors looking to build sweat equity in a good neighborhood. • The backyard is the star of the show. Imagine summer fun and year round relaxation! Enjoy the sparkling pool and gazebo during a warm summer BBQ with friends and family. Bask in the warmth of the hot tub just off your large patio on cooler evenings or snowy winter days. In the spring, grow your own veggies and strawberries in the raised garden beds. You'll appreciate abundant storage for all of your gardening tools in the spacious shed in the back yard. This yard provides plenty of space for the whole family to run around. Lots of parking is a further bonus, the whole family can park in the driveway, or you can easily store your RV or boat. • While perfectly livable today, this home is a golden opportunity to add your creative flair. This home offers a fantastic layout and is just waiting for your creative updates to make it sparkle. A perfect opportunity to customize your living space and add immediate value. Move in now and upgrade at your own pace! Bring your vision, your tools, and your passion! Homes with this land and these amenities at this price point do not last. Come and see for yourself! (id:32467)

Property Features

Building

  • Basement Type: Full
  • Construction Style: Detached
  • Cooling Type: Central air conditioning
  • Fireplace: No
  • Interior Size: 2332 sqft
  • Building Type: House
  • Stories: 2
  • Utility Water: Municipal water

Land

  • Land Size: 0.2 ac|under 1 acre
  • Sewer: Municipal sewage system

Ownership

  • Type: Freehold

Information entered by Century 21 Assurance Realty Ltd
Listing information last updated on: 2026-04-14 20:48:30


Book your free home evaluation with a 1% REALTOR® now!


How much could you save in commission selling with One Percent Realty?

Slide to select your home's price:

$500,000

Your One Percent Realty Commission savings

$500,000

Savings calculated using One Percent Realty's posted commission rates compared to another agent charging 7% on the first 100k & 2.5% on the balance + GST. Not all agents charge the same. Savings shown are illustrative only. Actual commission costs depend on the commission structure negotiated with your agent.

Send a Message


One Percent Realty's top FAQs

Q
What is the deal exactly, with One Percent?

We are a fully licensed real estate company that offers full service but at a discount commission. In terms of services and exposure, we are identical to whoever you would like to compare us with. We are on MLS®, all the top internet real estates sites, we place a sign on your property ( if it's allowed ), we show the property, hold open houses, advertise it, handle all the negotiations, plus the conveyancing. There is nothing that you are not getting, except for a high commission!

Q
What do you charge?

Each agent sets their own commission structure, subject to a maximum of 1% for listing services and up to 1% payable to cooperating brokerages. Homes under $500,000 are subject to a minimum charge of $9,950

Q
Are your listings on MLS® and realtor.ca?

Yes, and yes.


Learn more about the One Percent Realty Deal

 

Glen MacKenzie REALTOR®. Member of The Canadian Real Estate Association & more

Phone:
(250) 870-4536
Mobile:
(250) 870-4536
Email:
onepercentglen@shaw.ca
Support Area:
Areas serviced in the Central Okanagan include all sub divisions of: Kelowna, Westbank, West Kelowna, Peachland

ONE PERCENT REALTY LIMITED … THE FULL STORY FINALLY ... AN ALTERNATIVE! If you've ever ...

Full Profile

 

DONNA FULLER REALTOR® - Associate Broker

Phone:
604-683-1393
Email:
donnafullerREALTOR@gmail.com
Support Area:
KELOWNA, KELOWNA DOWNTOWN, KELOWNA SOUTH, KELOWNA NORTH, SOUTH EAST KELOWNA, LOWER MISSION, UPPER MISSION, KETTLE VALLEY, CRAWFORD ESTATES, SPRINGFIELD SPALL, DILWORTH MOUNTAIN, WILDEN, RUTLAND, JOE RICH, BLACK MOUNTAIN, UNIVERSITY DISTRICT, LAKE COUNTRY, WINFIELD, ELLISON

Ready to Sell? List Smarter. Save THOUSANDS on MLS!Born in Vancouver and a long time Kelowna residen ...

Full Profile