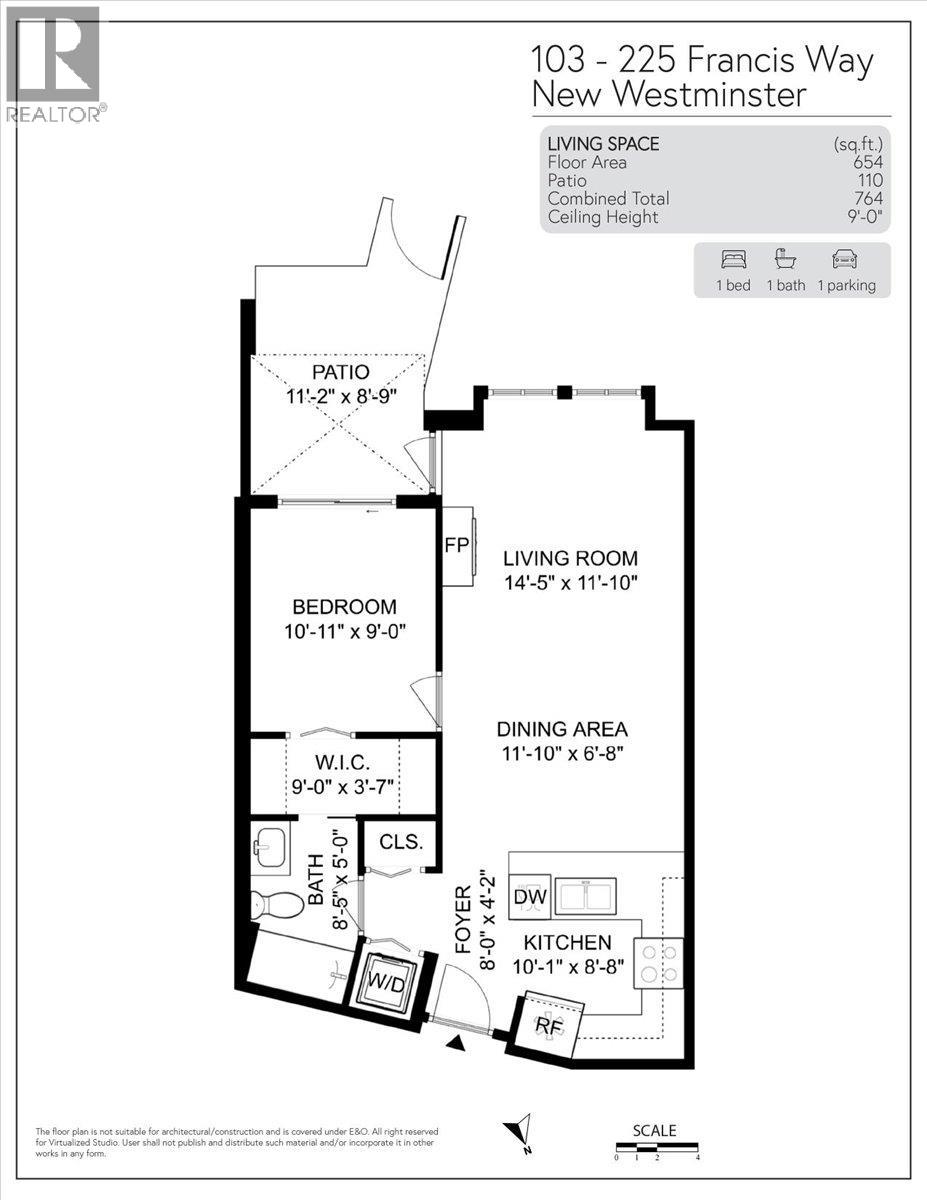
103 225 FRANCIS WAY, New Westminster

2026-04-13
 

Quick Summary

Location
103 225 FRANCIS WAY, New Westminster, British Columbia V3L0G1
Price
$499,000 CAD
Status:
For Sale
Property Type:
Single Family
Area:
654 sqft
Bedrooms:
1
Bathrooms:
1
Garages:
1
Year of Construction:
2010

MLS®#R3110557

Property Description

Ground-level convenience with townhouse-style living at The Whittaker in Victoria Hill by the award-winning Onni Group! This fully renovated 1-bedroom is move-in ready and perfect for first-time buyers or investors. Featuring over-height ceilings and open-concept living, the home has been completely redone with all new flooring (including laminate, carpet and tile), new countertops, backsplash, fresh paint, and modern bathroom fixtures. The contemporary kitchen offers modern white counters, sleek cabinetry, and stainless steel appliances. Enjoy a spacious patio-ideal for entertaining and BBQs. Steps to shops, restaurants, Queen´s Park, and the Boilerhouse amenities, including gym, lounge, theatre, and more. (id:32467)

Property Features

Ammenities Near By

  • Ammenities Near By: Marina, Recreation, Shopping

Building

  • Amenities: Exercise Centre, Laundry - In Suite, Recreation Centre
  • Appliances: All
  • Fireplace: No
  • Interior Size: 654 sqft
  • Building Type: Apartment

Features

  • Feature: Central location, Elevator, Wheelchair access

Maintenance Fee

  • Maintenance Fee: 420.99

Ownership

  • Type: Strata

Structure

  • Structure: Clubhouse

Information entered by Royal LePage Sussex Pigott Properties
Listing information last updated on: 2026-04-22 02:00:12


Book your free home evaluation with a 1% REALTOR® now!


How much could you save in commission selling with One Percent Realty?

Slide to select your home's price:

$500,000

Your One Percent Realty Commission savings

$500,000

Savings calculated using One Percent Realty's posted commission rates compared to another agent charging 7% on the first 100k & 2.5% on the balance + GST. Not all agents charge the same. Savings shown are illustrative only. Actual commission costs depend on the commission structure negotiated with your agent.

Send a Message


One Percent Realty's top FAQs

Q
What is the deal exactly, with One Percent?

We are a fully licensed real estate company that offers full service but at a discount commission. In terms of services and exposure, we are identical to whoever you would like to compare us with. We are on MLS®, all the top internet real estates sites, we place a sign on your property ( if it's allowed ), we show the property, hold open houses, advertise it, handle all the negotiations, plus the conveyancing. There is nothing that you are not getting, except for a high commission!

Q
What do you charge?

Each agent sets their own commission structure, subject to a maximum of 1% for listing services and up to 1% payable to cooperating brokerages. Homes under $500,000 are subject to a minimum charge of $9,950

Q
Are your listings on MLS® and realtor.ca?

Yes, and yes.


Learn more about the One Percent Realty Deal

 

Barb Flesher REALTOR®

Phone:
(778) 228-1153
Email:
barbflesher@gmail.com
Support Area:
Port Moody, Pitt Meadows, Coquitlam, Port Coquitlam, North Burnaby, Maple Ridge, New Westminster

As a member of the Medallion Club for the past 18 years (Top 10% Realtors in the Real Estate Board o ...

Full Profile

 

Betty Fricker Personal Real Estate Corporation

Phone:
(604) 762-8428
Email:
betty@bettyfricker.com
Support Area:
Port Moody, Coquitlam, Port Coquitlam, North Burnaby, New Westminster, Pitt Meadows, Maple Ridge

Building on my strong background in business and customer service, I am proud to be part of the 1% R ...

Full Profile

 

Mike Skvortsov Personal Real Estate Corporation

Phone:
(604) 644-6430
Mobile:
(604) 644-6430
Email:
miskvortsov@gmail.com
Support Area:
Burnaby, Simon Freser University, North Burnaby, Brentwood, Metrotown, Lougheed Mall area, Downtown Vancouver, Renfrew, Coquitlam, Coquitlam West, Central Coquitlam, New Westminster, North Surrey, Port Coquitlam, Collingwood

"MR. MIKE" MIKE SKVORTSOV. PERSONAL REAL ESTATE CORPORATION. ONE PERCENT REALTY LTD Wi ...

Full Profile