1 225 Vancouver St, Victoria

2026-04-10
 

Quick Summary

Location
1 225 Vancouver St, Victoria, British Columbia V8V3S9
Price
$899,000 CAD
Status:
For Sale
Property Type:
Single Family
Area:
1453 sqft
Bedrooms:
2
Bathrooms:
3
Year of Construction:
1912
Video Link:
Open House:
11/04/2026 11:00:00 AM to
11/04/2026 12:30:00 PM
12/04/2026 01:00:00 PM to
12/04/2026 02:30:00 PM

MLS®#1031144

Property Description

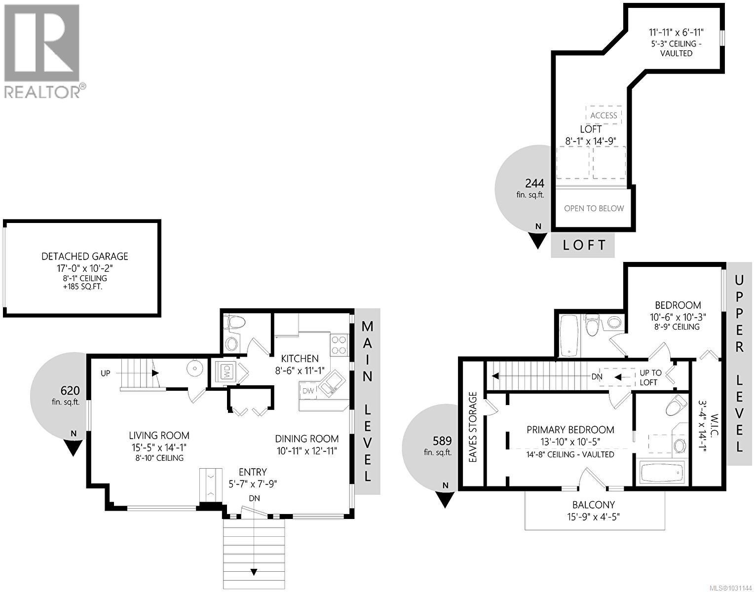
Open House Sat April 11 11-12:30pm and Sun 12th 1-2:30pm Welcome to this charming character townhome in the heart of Cook Street Village, thoughtfully redeveloped in 2001 to offer the perfect blend of classic appeal and modern comfort. This bright, west-facing residence is filled with natural light and features a spacious open-concept layout with 9-foot ceilings, large thermal windows, and rich hardwood floors throughout the main level. The well-appointed kitchen offers granite countertops, stainless steel appliances, and ample workspace, seamlessly connecting to the dining and living areas, highlighted by a cozy double-sided gas fireplace. Upstairs, you’ll find two generously sized bedrooms, each complete with its own full ensuite—ideal for comfort and privacy. The primary bedroom is a true retreat, featuring vaulted ceilings and skylights that enhance the sense of space and light. A versatile loft provides additional flexibility, perfect for extra storage. Step outside to your private west-facing balcony, ideal for enjoying afternoon and evening sun. Additional features include in-suite laundry, central vacuum, and the convenience of a separate garage for secure parking and storage.Located just steps from Cook Street Village, and within easy walking distance to the scenic waterfront and downtown Victoria, this home offers an exceptional lifestyle in one of the city’s most sought-after neighbourhoods. (id:32467)

Property Features

Building

  • Appliances: Dishwasher, Dryer, Garburator, Range - Electric, Refrigerator
  • Architectural Style: Character
  • Cooling Type: None
  • Fireplace: Yes
  • Interior Size: 1453 sqft
  • Building Type: Row / Townhouse

Features

  • Feature: Level lot, Corner Site, Other

Land

  • Land Size: 1417 sqft

Maintenance Fee

  • Maintenance Fee: 552.87

Ownership

  • Type: Strata

Information entered by The Agency
Listing information last updated on: 2026-04-10 21:29:38


Book your free home evaluation with a 1% REALTOR® now!


How much could you save in commission selling with One Percent Realty?

Slide to select your home's price:

$500,000

Your One Percent Realty Commission savings

$500,000

Savings calculated using One Percent Realty's posted commission rates compared to another agent charging 7% on the first 100k & 2.5% on the balance + GST. Not all agents charge the same. Savings shown are illustrative only. Actual commission costs depend on the commission structure negotiated with your agent.

Send a Message


One Percent Realty's top FAQs

Q
What is the deal exactly, with One Percent?

We are a fully licensed real estate company that offers full service but at a discount commission. In terms of services and exposure, we are identical to whoever you would like to compare us with. We are on MLS®, all the top internet real estates sites, we place a sign on your property ( if it's allowed ), we show the property, hold open houses, advertise it, handle all the negotiations, plus the conveyancing. There is nothing that you are not getting, except for a high commission!

Q
What do you charge?

Each agent sets their own commission structure, subject to a maximum of 1% for listing services and up to 1% payable to cooperating brokerages. Homes under $500,000 are subject to a minimum charge of $9,950

Q
Are your listings on MLS® and realtor.ca?

Yes, and yes.


Learn more about the One Percent Realty Deal

 

Valentino ‎ Prundaru REALTOR®, Licensed Real Estate Agent

Phone:
(250) 686-2242
Email:
prundaru@gmail.com
Support Area:
Victoria, Saanich, Oak Bay, Esquimalt, Langford, Colwood, Central Saanich, North Saanich, Sidney, View Royal, Metchosin, Highlands, Sooke, Saanich East, Saanich West, James Bay, Fairfield, Shawnigan Lake, Mill Bay, Cobble Hill, Cowichan Bay, Duncan

Full MLS Real Estate Services at Low Commission for Sellers! Cash Back for Buyers! Meet Valentino: ...

Full Profile

 

Maria Furtado REALTOR®

Phone:
(250) 881-3754
Email:
furtadomaria.re@gmail.com
Support Area:
Victoria, saanicheast, saanichwest, oakbay, fernwood, fairfield, langford, millhill, happyvalley, gordonhead, cedarhill, mttolmie, arbutus, 10milepoint, sooke, sidney, northsaanich, colwood, metchosin, jamesbay, victoriawest, esquimalt, viewroyal, royalbay, bearmountain, rockland

You don' ...

Full Profile

 

Ray Kong - P.Eng REALTOR®

Phone:
(250) 590-7011
Mobile:
(250) 858-0099
Email:
raykong2020@gmail.com
Support Area:
Victoria, Sidney, Sooke, Langford, Colwood, Saanish east, Saanich West, View royal, Metchosin, Saanich Peninsula

   Top Real Estate Agents Working For You Ray Kong ,P.Eng Our Mission: To provi ...

Full Profile