4561 Rittich Road, Kelowna

2026-04-06
 

Quick Summary

Location
4561 Rittich Road, Kelowna, British Columbia V1X7V6
Price
$2,599,000 CAD
Status:
For Sale
Property Type:
Single Family
Area:
5770 sqft
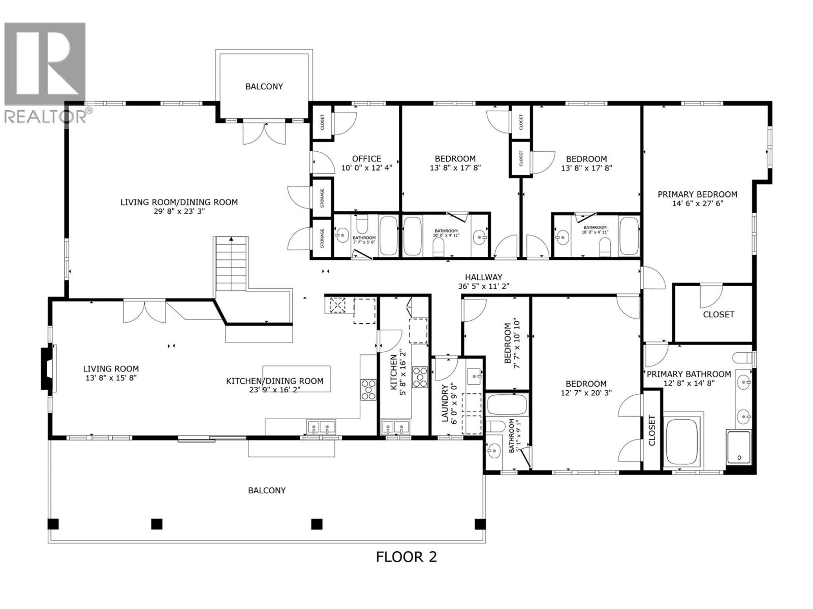
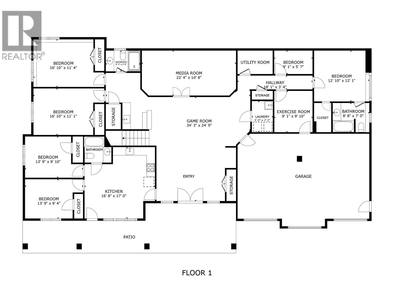
Bedrooms:
9
Bathrooms:
8
Garages:
13
Year of Construction:
2015

MLS®#10381156

Property Description

Welcome to 4561 Rittich Road! This exceptional 5.066-acre estate offers the perfect blend of agricultural charm and luxurious living in the heart of the Okanagan. Surrounded by sweeping views and a lush, mature orchard, this property is ideal for large families, multi-generational living, or those seeking space and serenity. The expansive 9-bedroom, 8-bathroom home features a beautiful, spacious main kitchen designed for entertaining, along with a fully equipped prep kitchen for added functionality. A generous living room offers plenty of space for gatherings, relaxation, or hosting guests in comfort. The dedicated theatre room is perfect for cozy family movie nights, while a self-contained legal 2-bedroom suite provides excellent rental or guest potential. Outside, you'll find approximately 3 acres of fully producing Staccato cherries, offering both beauty and agricultural income potential. Enjoy the outdoors with extensive green space, privacy, and the productivity of your own established orchard. A 3-car garage and ample parking complete the package. Whether you're looking to enjoy peaceful country living close to city conveniences or invest in a versatile estate property, 4561 Rittich Road delivers unmatched potential. (id:32467)

Property Features

Building

  • Appliances: Refrigerator, Dishwasher, Dryer, Range - Electric, Range - Gas, Hood Fan, Washer, Oven - Built-In
  • Basement Type: Full
  • Construction Style: Detached
  • Cooling Type: Central air conditioning
  • Exterior Finish: Stucco
  • Fireplace: Yes
  • Flooring Type: Carpeted, Ceramic Tile, Laminate
  • Interior Size: 5770 sqft
  • Building Type: House
  • Stories: 2
  • Utility Water: Municipal water

Features

  • Feature: Central island, Balcony, Jacuzzi bath-tub

Land

  • Land Size: 5.07 ac|5 - 10 acres
  • Sewer: Septic tank

Ownership

  • Type: Freehold

Information entered by Century 21 Assurance Realty Ltd
Listing information last updated on: 2026-04-06 16:32:31


Book your free home evaluation with a 1% REALTOR® now!


How much could you save in commission selling with One Percent Realty?

Slide to select your home's price:

$500,000

Your One Percent Realty Commission savings

$500,000

Savings calculated using One Percent Realty's posted commission rates compared to another agent charging 7% on the first 100k & 2.5% on the balance + GST. Not all agents charge the same. Savings shown are illustrative only. Actual commission costs depend on the commission structure negotiated with your agent.

Send a Message


One Percent Realty's top FAQs

Q
What is the deal exactly, with One Percent?

We are a fully licensed real estate company that offers full service but at a discount commission. In terms of services and exposure, we are identical to whoever you would like to compare us with. We are on MLS®, all the top internet real estates sites, we place a sign on your property ( if it's allowed ), we show the property, hold open houses, advertise it, handle all the negotiations, plus the conveyancing. There is nothing that you are not getting, except for a high commission!

Q
What do you charge?

Each agent sets their own commission structure, subject to a maximum of 1% for listing services and up to 1% payable to cooperating brokerages. Homes under $500,000 are subject to a minimum charge of $9,950

Q
Are your listings on MLS® and realtor.ca?

Yes, and yes.


Learn more about the One Percent Realty Deal

 

Glen MacKenzie REALTOR®. Member of The Canadian Real Estate Association & more

Phone:
(250) 870-4536
Mobile:
(250) 870-4536
Email:
onepercentglen@shaw.ca
Support Area:
Areas serviced in the Central Okanagan include all sub divisions of: Kelowna, Westbank, West Kelowna, Peachland

ONE PERCENT REALTY LIMITED … THE FULL STORY FINALLY ... AN ALTERNATIVE! If you've ever ...

Full Profile

 

DONNA FULLER REALTOR® - Associate Broker

Phone:
604-683-1393
Email:
donnafullerREALTOR@gmail.com
Support Area:
KELOWNA, KELOWNA DOWNTOWN, KELOWNA SOUTH, KELOWNA NORTH, SOUTH EAST KELOWNA, LOWER MISSION, UPPER MISSION, KETTLE VALLEY, CRAWFORD ESTATES, SPRINGFIELD SPALL, DILWORTH MOUNTAIN, WILDEN, RUTLAND, JOE RICH, BLACK MOUNTAIN, UNIVERSITY DISTRICT, LAKE COUNTRY, WINFIELD, ELLISON

Ready to Sell? List Smarter. Save THOUSANDS on MLS!Born in Vancouver and a long time Kelowna residen ...

Full Profile