6034 Garraway Place, Peachland

2026-03-30
 

Quick Summary

Location
6034 Garraway Place, Peachland, British Columbia V0H1X4
Price
$650,000 CAD
Status:
For Sale
Property Type:
Single Family
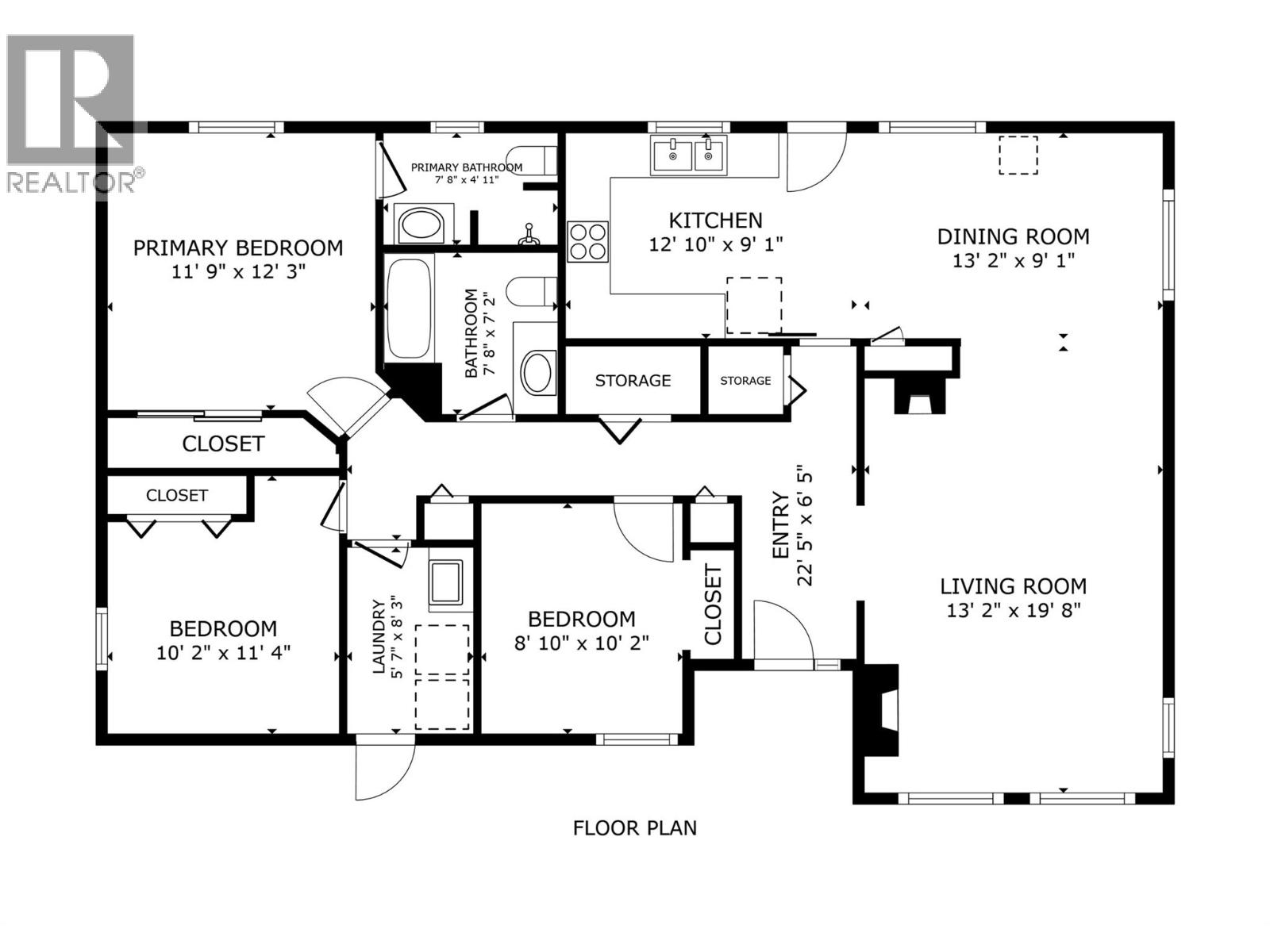
Area:
1283 sqft
Bedrooms:
3
Bathrooms:
2
Garages:
2
Year of Construction:
1992
Video Link:

MLS®#10380391

Property Description

Attention first-time home buyers, downsizers, or investors - welcome to 6034 Garraway Place in beautiful Peachland! This no-stair rancher in a quiet cul-de-sac, close to parks has great RV parking on a flat corner lot! Large windows fill the home with natural light. Open concept living with gas fireplace, a dining area, and the kitchen facing the backyard views. Down the hall you'll find 3 comfortable bedrooms, two baths and a convenient laundry room with access from the garage. You'll find the new-style light/fan combo in the dining room and bedrooms very cool! The hot water tank was replaced 3 years ago, and the furnace is 12 years old. Fully fenced backyard (bring the pets) with a lovely semi-enclosed patio, nice rock wall, and a couple of fruit trees as well as two sheds that will stay with the property. This home is in a great neighbourhood, steps to Turner Park and Sanderson off-leash dog park. Well-maintained and ready for the next owners who want to call this place home - just minutes from the beautiful lakefront boardwalk that Peachland is famous for! (id:32467)

Property Features

Building

  • Architectural Style: Ranch
  • Construction Style: Detached
  • Fireplace: Yes
  • Flooring Type: Laminate, Tile
  • Interior Size: 1283 sqft
  • Building Type: House
  • Stories: 1
  • Utility Water: Municipal water

Land

  • Land Size: 0.21 ac|under 1 acre
  • Sewer: Septic tank

Ownership

  • Type: Freehold

Information entered by Century 21 Assurance Realty Ltd
Listing information last updated on: 2026-05-19 20:04:25


Book your free home evaluation with a 1% REALTOR® now!


How much could you save in commission selling with One Percent Realty?

Slide to select your home's price:

$500,000

Your One Percent Realty Commission savings

$500,000

Savings calculated using One Percent Realty's posted commission rates compared to another agent charging 7% on the first 100k & 2.5% on the balance + GST. Not all agents charge the same. Savings shown are illustrative only. Actual commission costs depend on the commission structure negotiated with your agent.

Send a Message


One Percent Realty's top FAQs

Q
What is the deal exactly, with One Percent?

We are a fully licensed real estate company that offers full service but at a discount commission. In terms of services and exposure, we are identical to whoever you would like to compare us with. We are on MLS®, all the top internet real estates sites, we place a sign on your property ( if it's allowed ), we show the property, hold open houses, advertise it, handle all the negotiations, plus the conveyancing. There is nothing that you are not getting, except for a high commission!

Q
What do you charge?

Each agent sets their own commission structure, subject to a maximum of 1% for listing services and up to 1% payable to cooperating brokerages. Homes under $500,000 are subject to a minimum charge of $9,950

Q
Are your listings on MLS® and realtor.ca?

Yes, and yes.


Learn more about the One Percent Realty Deal

 

Glen MacKenzie REALTOR®. Member of The Canadian Real Estate Association & more

Phone:
(250) 870-4536
Mobile:
(250) 870-4536
Email:
onepercentglen@shaw.ca
Support Area:
Areas serviced in the Central Okanagan include all sub divisions of: Kelowna, Westbank, West Kelowna, Peachland

ONE PERCENT REALTY LIMITED … THE FULL STORY FINALLY ... AN ALTERNATIVE! If you've ever ...

Full Profile