2171 Mimosa Drive, West Kelowna

2026-03-20
 

Quick Summary

Location
2171 Mimosa Drive, West Kelowna, British Columbia V4T3A5
Price
$545,900 CAD
Status:
For Sale
Property Type:
Single Family
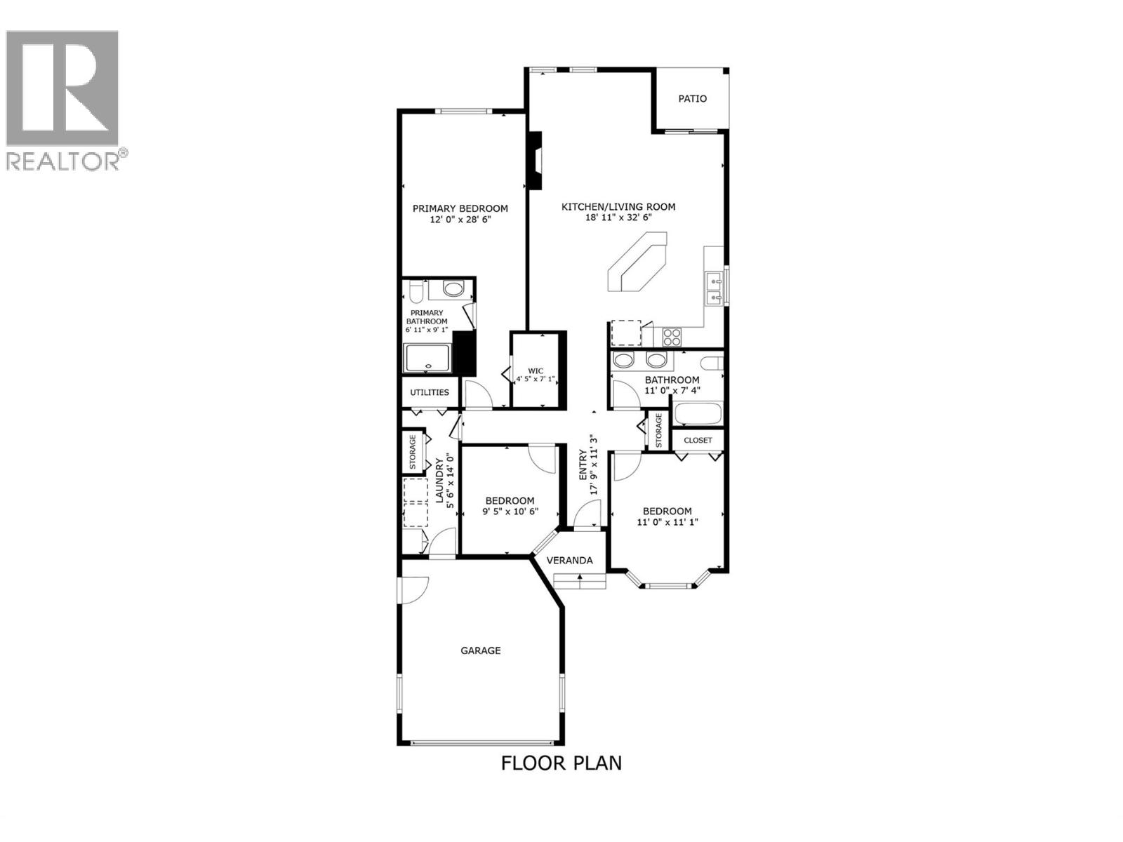
Area:
1440 sqft
Bedrooms:
3
Bathrooms:
2
Garages:
4
Year of Construction:
2008
Video Link:

MLS®#10380117

Property Description

Experience refined, no-step living at 2171 Mimosa Drive, a pristine rancher in the sought-after Sage Creek 45+ gated community. This home perfectly balances privacy and connection, featuring two bright bedrooms positioned at the front of the home (one no closet, perfect for an office or hobby room) and a spacious primary on the other end of the home. The open-concept interior is perfect for entertaining, highlighted by a cozy gas fireplace, and natural, light-filled kitchen boasting stone quartz countertops, sleek cabinetry, and BRAND NEW stainless steel appliances (with warranty). The double garage and ample storage provide convenient daily living all year round. During the warmer months, this property boasts a quiet and private yard, mostly fenced (just add gates), pet-friendly and designed for total relaxation, featuring a large, covered gazebo on an aggregate, concrete patio with a small, easy-to-maintain green space. Located just around the corner from the prestigous Two Eagles Golf Course and an easy walk to all amenities including the Westbank shopping hub, wineries, coffee shops, restaurants and beaches. Residents enjoy a premier clubhouse with a fitness center, library, and active social committee. With no Property Transfer Tax or Speculation Tax, this is the perfect spot to call home in the heart of the Okanagan. Book your showing today and write your offer! (id:32467)

Property Features

Ammenities Near By

  • Ammenities Near By: Golf Nearby, Recreation, Shopping

Building

  • Appliances: Refrigerator, Dishwasher, Dryer, Range - Electric, Washer
  • Basement Type: Crawl space
  • Cooling Type: Central air conditioning
  • Fireplace: Yes
  • Flooring Type: Carpeted, Laminate
  • Interior Size: 1440 sqft
  • Building Type: Manufactured Home
  • Stories: 1
  • Utility Water: Private Utility

Features

  • Feature: Level lot, Central island, One Balcony

Land

  • Land Size: 0.1 ac|under 1 acre
  • Sewer: Municipal sewage system

Ownership

  • Type: Leasehold/Leased Land

Information entered by Century 21 Assurance Realty Ltd
Listing information last updated on: 2026-04-26 21:19:42


Book your free home evaluation with a 1% REALTOR® now!


How much could you save in commission selling with One Percent Realty?

Slide to select your home's price:

$500,000

Your One Percent Realty Commission savings

$500,000

Savings calculated using One Percent Realty's posted commission rates compared to another agent charging 7% on the first 100k & 2.5% on the balance + GST. Not all agents charge the same. Savings shown are illustrative only. Actual commission costs depend on the commission structure negotiated with your agent.

Send a Message


One Percent Realty's top FAQs

Q
What is the deal exactly, with One Percent?

We are a fully licensed real estate company that offers full service but at a discount commission. In terms of services and exposure, we are identical to whoever you would like to compare us with. We are on MLS®, all the top internet real estates sites, we place a sign on your property ( if it's allowed ), we show the property, hold open houses, advertise it, handle all the negotiations, plus the conveyancing. There is nothing that you are not getting, except for a high commission!

Q
What do you charge?

Each agent sets their own commission structure, subject to a maximum of 1% for listing services and up to 1% payable to cooperating brokerages. Homes under $500,000 are subject to a minimum charge of $9,950

Q
Are your listings on MLS® and realtor.ca?

Yes, and yes.


Learn more about the One Percent Realty Deal

 

Glen MacKenzie REALTOR®. Member of The Canadian Real Estate Association & more

Phone:
(250) 870-4536
Mobile:
(250) 870-4536
Email:
onepercentglen@shaw.ca
Support Area:
Areas serviced in the Central Okanagan include all sub divisions of: Kelowna, Westbank, West Kelowna, Peachland

ONE PERCENT REALTY LIMITED … THE FULL STORY FINALLY ... AN ALTERNATIVE! If you've ever ...

Full Profile