2855 Quesnel St, Victoria

2026-03-06
 

Quick Summary

Location
2855 Quesnel St, Victoria, British Columbia V8T4K2
Price
$19 CAD
Status:
For lease
Property Type:
Industrial

MLS®#1028077

Property Description

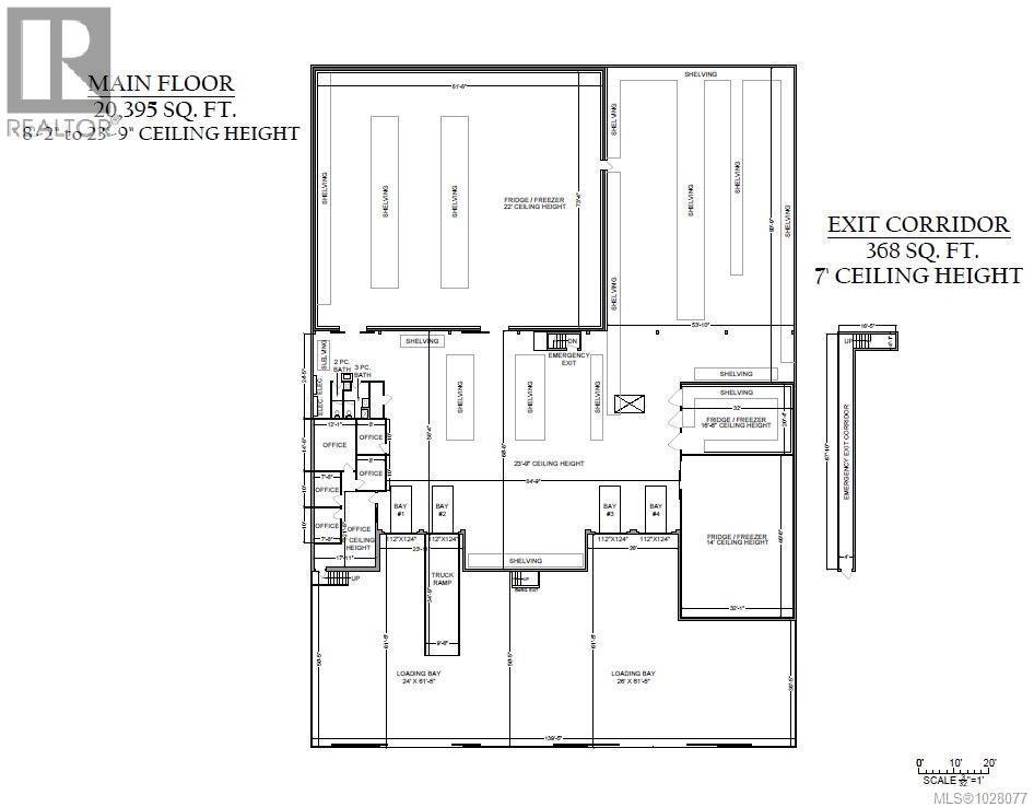
INDUSTRIAL WAREHOUSE OPPORTUNITY (20,395 SF) - Central location with direct access to Highway 1 & 17. Features: Reception, boardroom & 4 private offices; 3 Coolers; 23'9'' ceiling height; 4 loading docks with electric plates; one ramp for cube vans; overhead heat. M2-I Zoning allows for many used including but not limited to: Warehouse, Retail of home furnishings & supplies or sporting goods, Mail order business, Quick freeze lockers, Vehicle sales & rentals, Wholesale, Printing & Publishing and many more! (id:32467)

Property Features

Building

  • Fireplace: No

Information entered by NAI Commercial (Victoria) Inc.
Listing information last updated on: 2026-03-23 17:11:47


Book your free home evaluation with a 1% REALTOR® now!


How much could you save in commission selling with One Percent Realty?

Slide to select your home's price:

$500,000

Your One Percent Realty Commission savings

$500,000

Savings calculated using One Percent Realty's posted commission rates compared to another agent charging 7% on the first 100k & 2.5% on the balance + GST. Not all agents charge the same. Savings shown are illustrative only. Actual commission costs depend on the commission structure negotiated with your agent.

Send a Message


One Percent Realty's top FAQs

Q
What is the deal exactly, with One Percent?

We are a fully licensed real estate company that offers full service but at a discount commission. In terms of services and exposure, we are identical to whoever you would like to compare us with. We are on MLS®, all the top internet real estates sites, we place a sign on your property ( if it's allowed ), we show the property, hold open houses, advertise it, handle all the negotiations, plus the conveyancing. There is nothing that you are not getting, except for a high commission!

Q
What do you charge?

Each agent sets their own commission structure, subject to a maximum of 1% for listing services and up to 1% payable to cooperating brokerages. Homes under $500,000 are subject to a minimum charge of $9,950

Q
Are your listings on MLS® and realtor.ca?

Yes, and yes.


Learn more about the One Percent Realty Deal

 

Valentino ‎ Prundaru REALTOR®, Licensed Real Estate Agent

Phone:
(250) 686-2242
Email:
prundaru@gmail.com
Support Area:
Victoria, Saanich, Oak Bay, Esquimalt, Langford, Colwood, Central Saanich, North Saanich, Sidney, View Royal, Metchosin, Highlands, Sooke, Saanich East, Saanich West, James Bay, Fairfield, Shawnigan Lake, Mill Bay, Cobble Hill, Cowichan Bay, Duncan

Full MLS Real Estate Services at Low Commission for Sellers! Cash Back for Buyers! Meet Valentino: ...

Full Profile

 

Maria Furtado REALTOR®

Phone:
(250) 881-3754
Email:
furtadomaria.re@gmail.com
Support Area:
Victoria, saanicheast, saanichwest, oakbay, fernwood, fairfield, langford, millhill, happyvalley, gordonhead, cedarhill, mttolmie, arbutus, 10milepoint, sooke, sidney, northsaanich, colwood, metchosin, jamesbay, victoriawest, esquimalt, viewroyal, royalbay, bearmountain, rockland

You don' ...

Full Profile

 

Ray Kong - P.Eng REALTOR®

Phone:
(250) 590-7011
Mobile:
(250) 858-0099
Email:
raykong2020@gmail.com
Support Area:
Victoria, Sidney, Sooke, Langford, Colwood, Saanish east, Saanich West, View royal, Metchosin, Saanich Peninsula

   Top Real Estate Agents Working For You Ray Kong ,P.Eng Our Mission: To provi ...

Full Profile