1572 Parkinson Road, West Kelowna

2026-03-03
 

Quick Summary

Location
1572 Parkinson Road, West Kelowna, British Columbia V1Z2X2
Price
$987,000 CAD
Status:
For Sale
Property Type:
Single Family
Area:
3188 sqft
Bedrooms:
5
Bathrooms:
4
Year of Construction:
1976
Video Link:

MLS®#10376287

Property Description

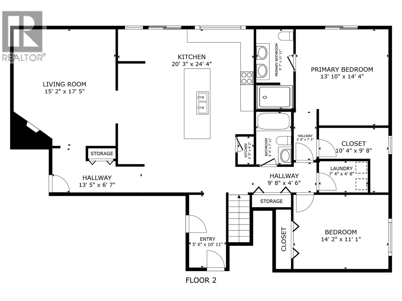
Opportunities abound in this 5-bedroom, 4-bath walkout rancher! Not only does it have a legal suite, it also has an 'office' that is separate from the home and could be used as a home-based business. It also features a double attached garage for the main home, and a lower-level single attached garage for the one-bedroom suite - making it a really attractive option for potential tenants OR for multigenerational family living. The kitchen in this home has been beautifully renovated, with quartz countertops, high-grade appliances, and a water tap above the gas stove. And lots of windows to take in the gorgeous lake views, including a pass-through window from the kitchen to the deck! The kitchen also features a sit-up bar island, a coffee station, and a work desk area with views. Spacious vaulted living room with a gas fireplace and more lake views! The main home has 4 bedrooms & 3 baths (also renovated), and the newly designed legal suite has 1 bed, 1 bath, with a full kitchen, laundry, and lounging space. Lots of parking on two separate driveways on this property, including RV parking. A tiered, partially fenced yard, with lovely rock wall accents, allowing for your creative landscaping ideas to make it home! Lots of patio space - with separated space for a tenant, plus a rooftop patio above the single garage - a great place to tan and enjoy the lake and valley views! 2 blocks from elementary school and 2 blocks from extensive trail system. Priced below assessed value! (id:32467)

Property Features

Ammenities Near By

  • Ammenities Near By: Schools, Shopping

Building

  • Appliances: Refrigerator, Dishwasher, Dryer, Range - Electric, Cooktop - Gas, Washer
  • Architectural Style: Ranch
  • Basement Type: Full
  • Construction Style: Detached
  • Cooling Type: Central air conditioning
  • Fireplace: Yes
  • Flooring Type: Carpeted, Tile, Vinyl
  • Interior Size: 3188 sqft
  • Building Type: House
  • Stories: 2
  • Utility Water: Municipal water

Features

  • Feature: Corner Site, Irregular lot size, Two Balconies

Land

  • Land Size: 0.28 ac|under 1 acre
  • Sewer: Municipal sewage system

Ownership

  • Type: Freehold

Information entered by Century 21 Assurance Realty Ltd
Listing information last updated on: 2026-03-10 23:51:53


Book your free home evaluation with a 1% REALTOR® now!


How much could you save in commission selling with One Percent Realty?

Slide to select your home's price:

$500,000

Your One Percent Realty Commission savings

$500,000

Savings calculated using One Percent Realty's posted commission rates compared to another agent charging 7% on the first 100k & 2.5% on the balance + GST. Not all agents charge the same. Savings shown are illustrative only. Actual commission costs depend on the commission structure negotiated with your agent.

Send a Message


One Percent Realty's top FAQs

Q
What is the deal exactly, with One Percent?

We are a fully licensed real estate company that offers full service but at a discount commission. In terms of services and exposure, we are identical to whoever you would like to compare us with. We are on MLS®, all the top internet real estates sites, we place a sign on your property ( if it's allowed ), we show the property, hold open houses, advertise it, handle all the negotiations, plus the conveyancing. There is nothing that you are not getting, except for a high commission!

Q
What do you charge?

Each agent sets their own commission structure, subject to a maximum of 1% for listing services and up to 1% payable to cooperating brokerages. Homes under $500,000 are subject to a minimum charge of $9,950

Q
Are your listings on MLS® and realtor.ca?

Yes, and yes.


Learn more about the One Percent Realty Deal

 

Glen MacKenzie REALTOR®. Member of The Canadian Real Estate Association & more

Phone:
(250) 870-4536
Mobile:
(250) 870-4536
Email:
onepercentglen@shaw.ca
Support Area:
Areas serviced in the Central Okanagan include all sub divisions of: Kelowna, Westbank, West Kelowna, Peachland

ONE PERCENT REALTY LIMITED … THE FULL STORY FINALLY ... AN ALTERNATIVE! If you've ever ...

Full Profile