PH7 1288 CHESTERFIELD AVENUE, North Vancouver

2026-02-24
 

Quick Summary

Location
PH7 1288 CHESTERFIELD AVENUE, North Vancouver, British Columbia V7M0B1
Price
$710,000 CAD
Status:
For Sale
Property Type:
Single Family
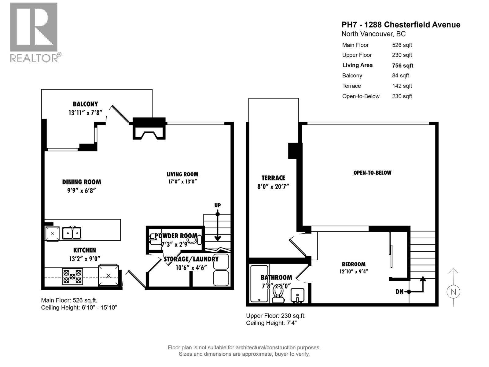
Area:
756 sqft
Bedrooms:
1
Bathrooms:
2
Year of Construction:
2009

MLS®#R3092693

Property Description

Elevated penthouse loft living at Alina, a concrete boutique building in the heart of vibrant Lonsdale. This top-floor 1 bed, 1.5 bath home offers soaring ceilings and is flooded with natural light. The open yet functional layout includes a dedicated dining space, in-suite laundry and generous storage. Enjoy year-round comfort with air conditioning, a cozy gas fireplace, complete with mountain and partial water views, and the rare luxury of two private outdoor spaces. Parking and a storage locker are included. Steps to Whole Foods, acclaimed restaurants, shops, cafes and excellent transit. A standout penthouse in one of North Vancouver´s most walkable and dynamic communities. Open house Saturday March 7th 12-1:30pm. (id:32467)

Property Features

Ammenities Near By

  • Ammenities Near By: Recreation, Shopping

Building

  • Amenities: Laundry - In Suite
  • Appliances: All
  • Architectural Style: 2 Level
  • Cooling Type: Air Conditioned
  • Fireplace: No
  • Interior Size: 756 sqft
  • Building Type: Apartment

Features

  • Feature: Central location, Elevator, Wheelchair access

Maintenance Fee

  • Maintenance Fee: 548.92

Ownership

  • Type: Strata

Information entered by Stilhavn Real Estate Services
Listing information last updated on: 2026-03-08 16:01:37


Book your free home evaluation with a 1% REALTOR® now!


How much could you save in commission selling with One Percent Realty?

Slide to select your home's price:

$500,000

Your One Percent Realty Commission savings

$500,000

Savings calculated using One Percent Realty's posted commission rates compared to another agent charging 7% on the first 100k & 2.5% on the balance + GST. Not all agents charge the same. Savings shown are illustrative only. Actual commission costs depend on the commission structure negotiated with your agent.

Send a Message


One Percent Realty's top FAQs

Q
What is the deal exactly, with One Percent?

We are a fully licensed real estate company that offers full service but at a discount commission. In terms of services and exposure, we are identical to whoever you would like to compare us with. We are on MLS®, all the top internet real estates sites, we place a sign on your property ( if it's allowed ), we show the property, hold open houses, advertise it, handle all the negotiations, plus the conveyancing. There is nothing that you are not getting, except for a high commission!

Q
What do you charge?

Each agent sets their own commission structure, subject to a maximum of 1% for listing services and up to 1% payable to cooperating brokerages. Homes under $500,000 are subject to a minimum charge of $9,950

Q
Are your listings on MLS® and realtor.ca?

Yes, and yes.


Learn more about the One Percent Realty Deal

 

ROBERT Q LEE, PREC

Phone:
(604) 908-4522
Mobile:
(604) 806-0900
Email:
robertqlee@gmail.com
Support Area:
Vancouver, burnaby south, richmond, Vancouver West, Vancouver East, north burnaby, north vancouver, yaletown, fairview, mount pleasant, cambie, mt. pleasant, kitsilano, downtown, fraserview, killarney, renfrew, grandview, metrotown, false creek, kerri, Steveston, Main, Fraser, L

TOP RATED AGENT on https://www.rate-my-agent.com/robert-q-lee-ratings-vancouver-2281VANCOUVER / ...

Full Profile

 

Dano Baker Real Estate Enthusiast

Phone:
7789908465
Email:
danobaker@gmail.com
Support Area:
North Vancouver, West Vancouver, Vancouver

Knowledgeable, patient, passionate, honest and fun- I'm here to help support you in your real estate ...

Full Profile

 

Christopher Lee Personal Real Estate Corporation w/ The Ethical Group Real Estate Team

Phone:
6049617374
Email:
chris@ethicalgrouprealestate.com
Support Area:
north vancouver, Downtown Vancouver, Squamish, West Vancouver, Upper Lonsdale, Lower Lonsdale, Central Lonsdale, Lynn Valley, Capilano, Lynnmour, Deep Cove, Edgemont, Seymour, Dollarton, Canyon Heights, Forest Hills, Pemberton Heights, Windsor Heights, Lions Bay, Burnaby

4x Medallion Club Recipient (Top 10% of all GVR Realtors in Sales Volume) 2022-2025 As a Multip ...

Full Profile