A 875 Clarke Rd, Central Saanich

2026-01-14
 

Quick Summary

Location
A 875 Clarke Rd, Central Saanich, British Columbia V8M2G1
Price
$1,285,000 CAD
Status:
For Sale
Property Type:
Single Family
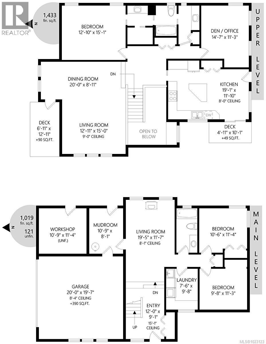
Area:
2963 sqft
Bedrooms:
4
Bathrooms:
2
Year of Construction:
1987

MLS®#1023123

Property Description

This one-owner, custom-designed residence is a true Brentwood Bay oasis. From the moment you step into the foyer, you’re welcomed by a striking floating staircase that anchors the home’s sleek, open-concept design. Extra-large custom windows flood the space with natural light and capture beautiful views, creating an airy, uplifting atmosphere throughout the day. Meticulously maintained by the original owners, this exceptional home offers a thoughtfully designed layout with 4 bedrooms and 2 bathrooms over two levels, ideal for a growing family or multigenerational living. The spacious main-level living area has long been the heart of family gatherings and entertaining, while the lower level feels like a true extension of the home, featuring generous ceiling heights and a large, versatile family room—perfect for media, recreation, or a home gym. A charming wood-burning stove adds warmth and ambiance on cozy winter evenings. Set on a quiet panhandle lot, this property offers rare privacy and tranquility. The outdoor spaces are a beautifully realized extension of the home, with lush perennial gardens and mature hedging creating a peaceful, park-like retreat—perfect for children to play, gardeners to enjoy, or simply relaxing in nature. For hobbyists and craftsmen, the home includes an exterior-access workshop, a large crawl-space storage area, double-car garage, and ample parking. Heating and cooling are provided by newly installed dual-head air-conditioning units, offering efficient, modern comfort throughout the home. Located just steps from the warm beaches of Brentwood Bay, this home offers immediate access to a coveted coastal lifestyle filled with walking trails, kayaking, paddle boarding, and community charm. More than just a home, this is a place to build memories and enjoy everything Brentwood Bay has to offer. Your private coastal oasis awaits. Proudly presented by The Ann Watley Group, Ann Watley Personal Real Estate Corporation, Pemberton Holmes Ltd. (id:32467)

Property Features

Building

  • Appliances: Refrigerator, Stove, Washer, Dryer
  • Cooling Type: Air Conditioned
  • Fireplace: Yes
  • Interior Size: 2963 sqft
  • Building Type: House

Features

  • Feature: Central location, Level lot, Private setting, Other, Marine Oriented

Maintenance Fee

  • Maintenance Fee: 0.00

Ownership

  • Type: Strata

Structure

  • Structure: Shed, Workshop

Information entered by Pemberton Holmes Ltd.
Listing information last updated on: 2026-01-14 20:07:14


Book your free home evaluation with a 1% REALTOR® now!


How much could you save in commission selling with One Percent Realty?

Slide to select your home's price:

$500,000

Your One Percent Realty Commission savings

$500,000

Savings calculated using One Percent Realty's posted commission rates compared to another agent charging 7% on the first 100k & 2.5% on the balance + GST. Not all agents charge the same.

Send a Message


One Percent Realty's top FAQs

Q
What is the deal exactly, with One Percent?

We are a fully licensed real estate company that offers full service but at a discount commission. In terms of services and exposure, we are identical to whoever you would like to compare us with. We are on MLS®, all the top internet real estates sites, we place a sign on your property ( if it's allowed ), we show the property, hold open houses, advertise it, handle all the negotiations, plus the conveyancing. There is nothing that you are not getting, except for a high commission!

Q
What do you charge?

We charge a total of $9,950 for properties under $900,000. For properties over $900,000 we charge 1% of the sale price plus $950. Plus Applicable taxes, of course. It is as simple as that.

Q
Are your listings on MLS® and realtor.ca?

Yes, and yes.


Learn more about the One Percent Realty Deal

 

Valentino ‎ Prundaru REALTOR®, Licensed Real Estate Agent

Phone:
(250) 686-2242
Email:
prundaru@gmail.com
Support Area:
Victoria, Saanich, Oak Bay, Esquimalt, Langford, Colwood, Central Saanich, North Saanich, Sidney, View Royal, Metchosin, Highlands, Sooke, Saanich East, Saanich West, James Bay, Fairfield, Shawnigan Lake, Mill Bay, Cobble Hill, Cowichan Bay, Duncan

Full MLS Real Estate Services at Low Commission for Sellers! Cash Back for Buyers! Meet Valentino: ...

Full Profile

 

LEE .THOMPSON REALTOR®

Phone:
(778) 676 8400
Email:
londonlee@live.com
Support Area:
Victoria, Oak Bay, Vic West, West Victoria, Esquimalt, View Royal, Saanich, Saanich East, Saanich West, East Saanich, West Saanich, Sooke, Langford, Metchosin, Colwood, Highlands, North Saanich, Saanich North, Sidney, Central Saanich, Saanich Central, Downtown Victoria, Victor

$$$ BUYERS - Receive a min. $5,000 CASHBACK on your next purchase, for homes sold over $1,500,000. . ...

Full Profile

 

‎ Gabriel ‎ Prundaru REALTOR®, Licensed Real Estate Agent

Phone:
(250) 999-0222
Email:
realty@prundaru.ca
Support Area:
Victoria, Saanich, Oak Bay, Esquimalt, Langford, Colwood, Central Saanich, North Saanich, Sidney, View Royal, Metchosin, Highlands, Sooke, Downtown Victoria, Gordon Head, Saanich East, Saanich West, James Bay, Fairfield

Full MLS Real Estate Services at Low Commission for Sellers! Cash Back for Buyers!Meet Gabriel Prund ...

Full Profile