1204 Knockan Pl, Saanich

2025-12-16
 

Quick Summary

Location
1204 Knockan Pl, Saanich, British Columbia V8Z7L5
Price
$1,639,980 CAD
Status:
For Sale
Property Type:
Single Family
Area:
3826 sqft
Bedrooms:
6
Bathrooms:
3
Year of Construction:
2003
Video Link:

MLS®#1021911

Property Description

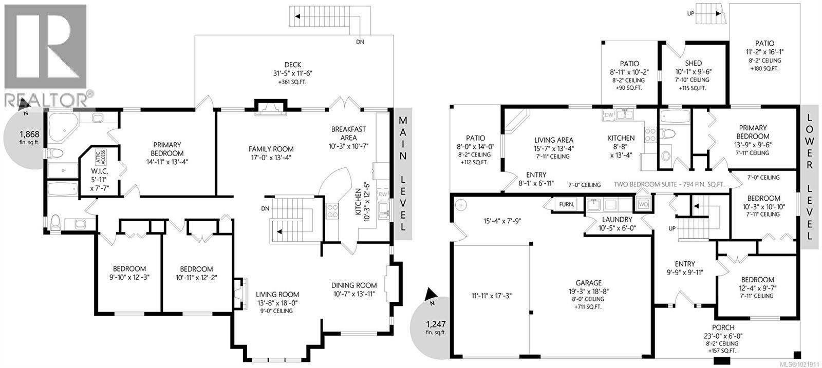
Welcome to the private and sought-after Knockan Hill community! This beautifully maintained 6-bedroom, 3-bathroom home offers a rare blend of space, elegance, and versatility, perfect for families or investors. The main home features a triple-car garage with tons of parking and high-end finishings throughout. On the lower level, you’ll find a spacious entry, a versatile bedroom/office, and a large laundry room. Upstairs, light pours into the formal family room with a cozy gas fireplace and south-facing windows. A separate dining room also boasts south facing windows and lots of space. Around the corner you'll find a second inviting living room with another gas fireplace, and an eating nook seamlessly connected to the chef’s kitchen—complete with a gas stove, wood cabinetry, abundant storage, peninsula seating, and access to a large sunny deck. The upper floor also offers two generous sunny bedrooms, a full bath, and a luxurious primary suite with walk-in closet and spa-inspired ensuite with soaker tub. The 2-bedroom in-law suite (almost 800 sq.ft.) with private entry provides excellent income potential or space for extended family. Outdoors, enjoy a huge, private backyard with garden plots, mature hedges, and plenty of room for entertaining or relaxing. This home truly has its all-space, privacy, quality, and location! (id:32467)

Property Features

Building

  • Appliances: Dishwasher, Refrigerator, Stove, Washer, Dryer
  • Cooling Type: Air Conditioned
  • Fireplace: Yes
  • Interior Size: 3826 sqft
  • Building Type: House

Features

  • Feature: Private setting, Sloping, Partially cleared, Other

Land

  • Land Size: 8119 sqft

Ownership

  • Type: Freehold

Structure

  • Structure: Shed, Patio(s)

Information entered by Sutton Group West Coast Realty
Listing information last updated on: 2026-02-13 20:41:55


Book your free home evaluation with a 1% REALTOR® now!


How much could you save in commission selling with One Percent Realty?

Slide to select your home's price:

$500,000

Your One Percent Realty Commission savings

$500,000

Savings calculated using One Percent Realty's posted commission rates compared to another agent charging 7% on the first 100k & 2.5% on the balance + GST. Not all agents charge the same. Savings shown are illustrative only. Actual commission costs depend on the commission structure negotiated with your agent.

Send a Message


One Percent Realty's top FAQs

Q
What is the deal exactly, with One Percent?

We are a fully licensed real estate company that offers full service but at a discount commission. In terms of services and exposure, we are identical to whoever you would like to compare us with. We are on MLS®, all the top internet real estates sites, we place a sign on your property ( if it's allowed ), we show the property, hold open houses, advertise it, handle all the negotiations, plus the conveyancing. There is nothing that you are not getting, except for a high commission!

Q
What do you charge?

Each agent sets their own commission structure, subject to a maximum of 1% for listing services and up to 1% payable to cooperating brokerages. Homes under $500,000 are subject to a minimum charge of $9,950

Q
Are your listings on MLS® and realtor.ca?

Yes, and yes.


Learn more about the One Percent Realty Deal

 

Valentino ‎ Prundaru REALTOR®, Licensed Real Estate Agent

Phone:
(250) 686-2242
Email:
prundaru@gmail.com
Support Area:
Victoria, Saanich, Oak Bay, Esquimalt, Langford, Colwood, Central Saanich, North Saanich, Sidney, View Royal, Metchosin, Highlands, Sooke, Saanich East, Saanich West, James Bay, Fairfield, Shawnigan Lake, Mill Bay, Cobble Hill, Cowichan Bay, Duncan

Full MLS Real Estate Services at Low Commission for Sellers! Cash Back for Buyers! Meet Valentino: ...

Full Profile

 

Maria Furtado REALTOR®

Phone:
(250) 881-3754
Email:
furtadomaria.re@gmail.com
Support Area:
Victoria, saanicheast, saanichwest, oakbay, fernwood, fairfield, langford, millhill, happyvalley, gordonhead, cedarhill, mttolmie, arbutus, 10milepoint, sooke, sidney, northsaanich, colwood, metchosin, jamesbay, victoriawest, esquimalt

You don' ...

Full Profile

 

Ray Kong - P.Eng REALTOR®

Phone:
(250) 590-7011
Mobile:
(250) 858-0099
Email:
raykong2020@gmail.com
Support Area:
Victoria, Sidney, Sooke, Langford, Colwood, Saanish east, Saanich West, View royal, Metchosin, Saanich Peninsula

   Top Real Estate Agents Working For You Ray Kong ,P.Eng Our Mission: To provi ...

Full Profile