79 2785 Wallbank Rd, Shawnigan Lake

2025-11-20
 

Quick Summary

Location
79 2785 Wallbank Rd, Shawnigan Lake, British Columbia V8H2A5
Price
$225,000 CAD
Status:
For Sale
Property Type:
Single Family
Area:
947 sqft
Bedrooms:
2
Bathrooms:
1
Year of Construction:
2017

MLS®#1020844

Property Description

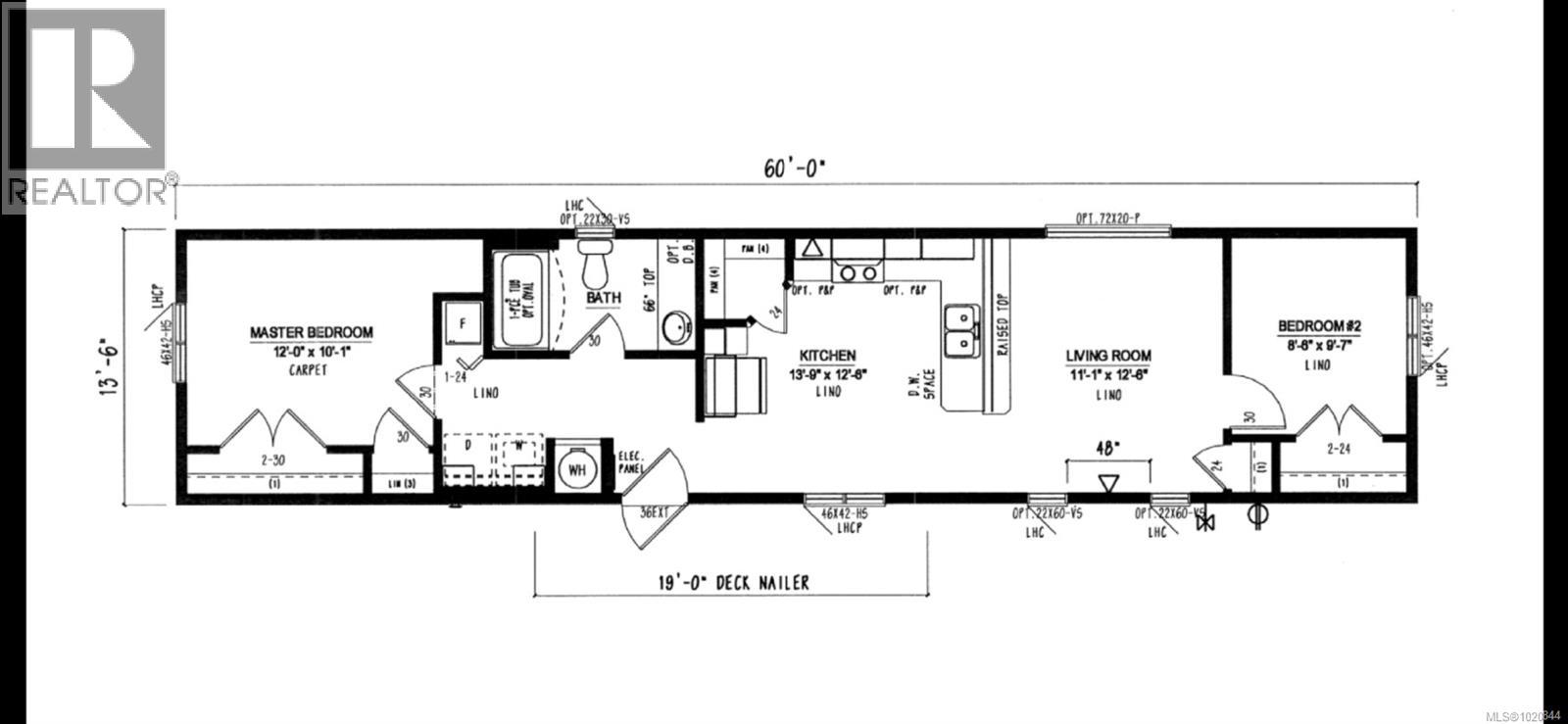
Modern, low-maintenance living in beautiful Shawnigan Lake! This bright and inviting 810 sq ft (2017) manufactured home offers an open-concept layout with a sleek, modern kitchen, an energy-efficient heat pump for year-round comfort, and excellent bedroom separation with two bedrooms positioned on opposite ends of the home. Step outside and enjoy the spacious covered deck—perfect for morning coffee, outdoor dining, or unwinding in every season. Located in a quiet, well-kept home park, this property offers exceptional convenience. You’re just a short walk to the lake, village shops, services, cafés, and beach access, making everyday living both easy and enjoyable. Shawnigan Lake is one of the Cowichan Valley’s most beloved communities—renowned for its relaxed lakeside lifestyle, natural beauty, and small-town charm. Centered around a warm, swimmable freshwater lake, the area is a favourite destination for boating, paddle boarding, water skiing, fishing, and long summer days by the water. Outdoor enthusiasts also appreciate the many nearby trails and recreation spots, including the famous Kinsol Trestle and West Shawnigan Lake Provincial Park. Positioned just minutes from Mill Bay and offering a comfortable commute to both Victoria and Duncan, Shawnigan Lake provides the perfect balance of peaceful rural living with quick access to city amenities. This home is an ideal opportunity for retirees, first-time buyers, or downsizers seeking comfort, convenience, and a true Vancouver Island lifestyle. (id:32467)

Property Features

Building

  • Cooling Type: Air Conditioned, Wall unit
  • Fireplace: No
  • Interior Size: 947 sqft
  • Building Type: Manufactured Home

Features

  • Feature: Central location, Wooded area, Other, Marine Oriented

Maintenance Fee

  • Maintenance Fee: 675.00

Ownership

  • Type: Leasehold

Structure

  • Structure: Shed

Zoning

  • Description: R-4A

Information entered by eXp Realty
Listing information last updated on: 2025-12-03 04:29:26


Book your free home evaluation with a 1% REALTOR® now!


How much could you save in commission selling with One Percent Realty?

Slide to select your home's price:

$500,000

Your One Percent Realty Commission savings

$500,000

Savings calculated using One Percent Realty's posted commission rates compared to another agent charging 7% on the first 100k & 2.5% on the balance + GST. Not all agents charge the same.

Send a Message


One Percent Realty's top FAQs

Q
What is the deal exactly, with One Percent?

We are a fully licensed real estate company that offers full service but at a discount commission. In terms of services and exposure, we are identical to whoever you would like to compare us with. We are on MLS®, all the top internet real estates sites, we place a sign on your property ( if it's allowed ), we show the property, hold open houses, advertise it, handle all the negotiations, plus the conveyancing. There is nothing that you are not getting, except for a high commission!

Q
What do you charge?

We charge a total of $9,950 for properties under $900,000. For properties over $900,000 we charge 1% of the sale price plus $950. Plus Applicable taxes, of course. It is as simple as that.

Q
Are your listings on MLS® and realtor.ca?

Yes, and yes.


Learn more about the One Percent Realty Deal

 

Per Dahlstrom REALTOR®

Phone:
(250) 732-3137
Mobile:
(250) 732-3137
Email:
oneper@shaw.ca
Support Area:
Duncan, Cowichan Bay, Mill Bay, Ladysmith, Chemainus, Cowichan Lake, Crofton, Shawnigan Lake, Lake Cowichan, Youbou, Honeymoon Bay, Saltair, Cobble Hill, Langford, Malahat, Cedar, Mill bay

Your local Cowichan Valley and area Real Estate professional. Licensed since 2003, I have worke ...

Full Profile

 

Valentino ‎ Prundaru REALTOR®, Licensed Real Estate Agent

Phone:
(250) 686-2242
Email:
prundaru@gmail.com
Support Area:
Victoria, Saanich, Oak Bay, Esquimalt, Langford, Colwood, Central Saanich, North Saanich, Sidney, View Royal, Metchosin, Highlands, Sooke, Saanich East, Saanich West, James Bay, Fairfield, Shawnigan Lake, Mill Bay, Cobble Hill, Cowichan Bay, Duncan

Full MLS Real Estate Services at Low Commission for Sellers! Cash Back for Buyers! Meet Valentino: ...

Full Profile