666/668 Reemon Drive, Kamloops

2026-04-17
 

Quick Summary

Location
666/668 Reemon Drive, Kamloops, British Columbia V2B6T1
Price
$584,900 CAD
Status:
For Sale
Property Type:
Single Family
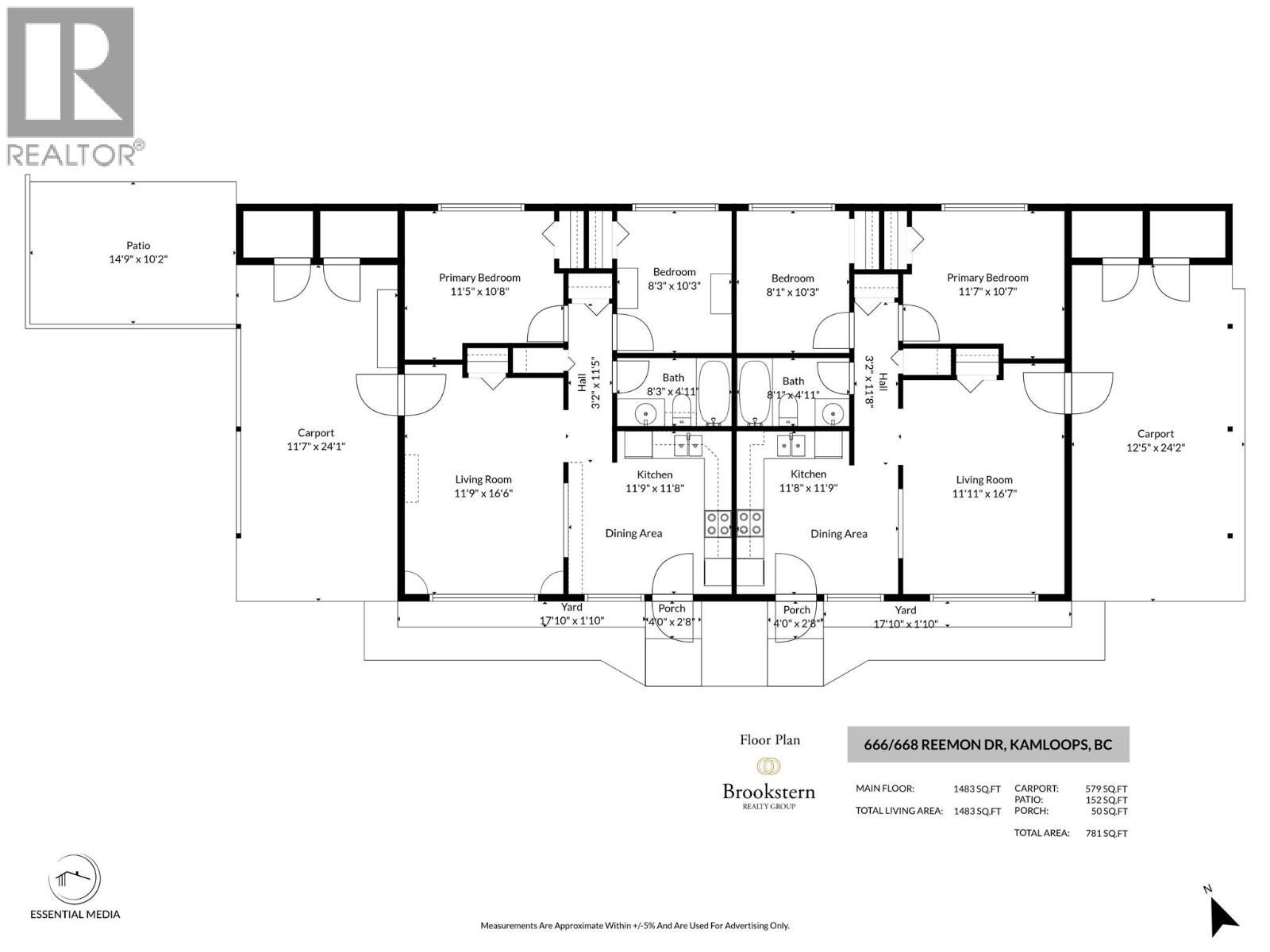
Area:
1483 sqft
Bedrooms:
4
Bathrooms:
2
Garages:
6
Year of Construction:
1969
Video Link:

MLS®#10383785

Property Description

SIDE-BY-SIDE DUPLEX ON HUGE 13,800 SQFT LOT! Welcome to 666/668 Reemon Drive! This full duplex on a large flat lot offers 4 bedrooms, 2 bathrooms, and 1,483 sqft of investment potential in a great Westsyde location. Close to schools, parks, River Side Trail, and shopping while enjoying a peaceful residential setting. Perfect for turn key investors, or someone wanting a mortgage helper. Each side offers bright main floor living with 2 bedrooms, 1 bathroom, a comfortable living room, dining space, and kitchen. Step outside to enjoy the fully fenced yard and huge lot, offering plenty of room to relax, play, or enjoy the outdoor space. Both sides are currently rented at $1,700, making this a strong holding property with income already in place. Recent updates include a new roof in 2024, updated windows throughout, and new insulation in the attic. This property is zoned R2 with future opportunity for a large shop, carriage home or redevelopment (with city approval). Each side offers 1 carport parking spot with additional driveway parking, totalling parking for 6 vehicles. This Westsyde location offers easy access to schools, parks, and shopping while still giving you a quiet residential setting. Don’t miss this incredible wealth building opportunity! Contact the listing team at Brookstern Realty Group with your questions, or to book a viewing! (id:32467)

Property Features

Ammenities Near By

  • Ammenities Near By: Golf Nearby, Public Transit, Park, Recreation, Shopping

Building

  • Appliances: Range, Refrigerator, Washer & Dryer
  • Architectural Style: Ranch
  • Construction Style: Semi-detached
  • Exterior Finish: Wood siding
  • Fireplace: No
  • Flooring Type: Laminate, Linoleum, Vinyl
  • Interior Size: 1483 sqft
  • Building Type: Duplex
  • Stories: 1
  • Utility Water: Municipal water

Features

  • Feature: Level lot

Land

  • Land Size: 0.32 ac|under 1 acre
  • Sewer: Municipal sewage system

Ownership

  • Type: Freehold

Information entered by eXp Realty (Kamloops)
Listing information last updated on: 2026-05-22 21:12:31


Book your free home evaluation with a 1% REALTOR® now!


How much could you save in commission selling with One Percent Realty?

Slide to select your home's price:

$500,000

Your One Percent Realty Commission savings

$500,000

Savings calculated using One Percent Realty's posted commission rates compared to another agent charging 7% on the first 100k & 2.5% on the balance + GST. Not all agents charge the same. Savings shown are illustrative only. Actual commission costs depend on the commission structure negotiated with your agent.

Send a Message


One Percent Realty's top FAQs

Q
What is the deal exactly, with One Percent?

We are a fully licensed real estate company that offers full service but at a discount commission. In terms of services and exposure, we are identical to whoever you would like to compare us with. We are on MLS®, all the top internet real estates sites, we place a sign on your property ( if it's allowed ), we show the property, hold open houses, advertise it, handle all the negotiations, plus the conveyancing. There is nothing that you are not getting, except for a high commission!

Q
What do you charge?

Each agent sets their own commission structure, subject to a maximum of 1% for listing services and up to 1% payable to cooperating brokerages. Homes under $500,000 are subject to a minimum charge of $9,950

Q
Are your listings on MLS® and realtor.ca?

Yes, and yes.


Learn more about the One Percent Realty Deal

 

Glenn Clark REALTOR®

Phone:
(250) 682-5650
Mobile:
(250) 682-5650
Email:
gclark59@gmail.com
Support Area:
Kamloops

Full service-Professionalism-Flat rate. It's that simple. I'm here to help you with all your real e ...

Full Profile

 

MAPLE ZENG REALTOR®

Phone:
2505741088
Email:
fzmaple@gmail.com
Support Area:
Kamloops, Kamloops District

I’m here to assist with all your real estate needs, whether you’re buying, selling, or simply ex ...

Full Profile