6575 LIME STREET, Vancouver

2026-04-10
 

Quick Summary

Location
6575 LIME STREET, Vancouver, British Columbia V6P5V7
Price
$2,498,800 CAD
Status:
For Sale
Property Type:
Single Family
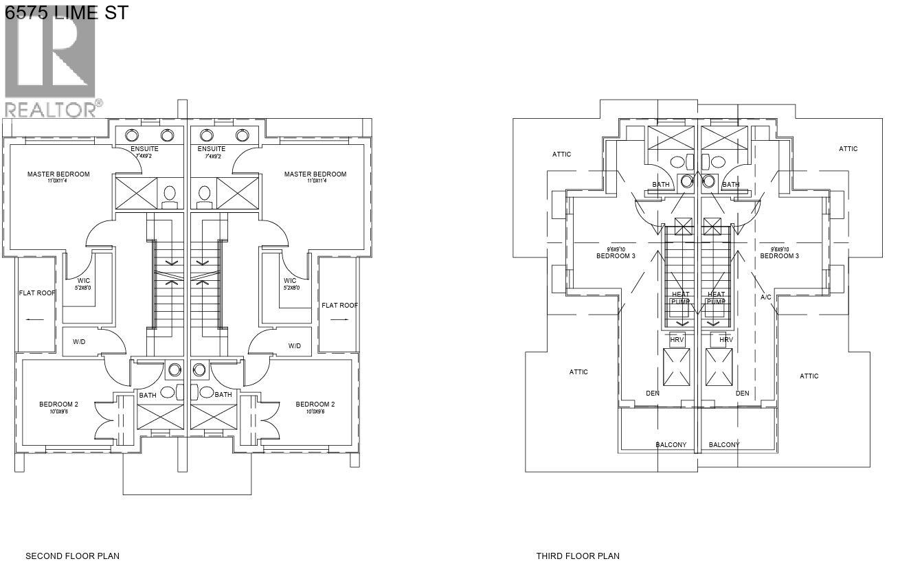
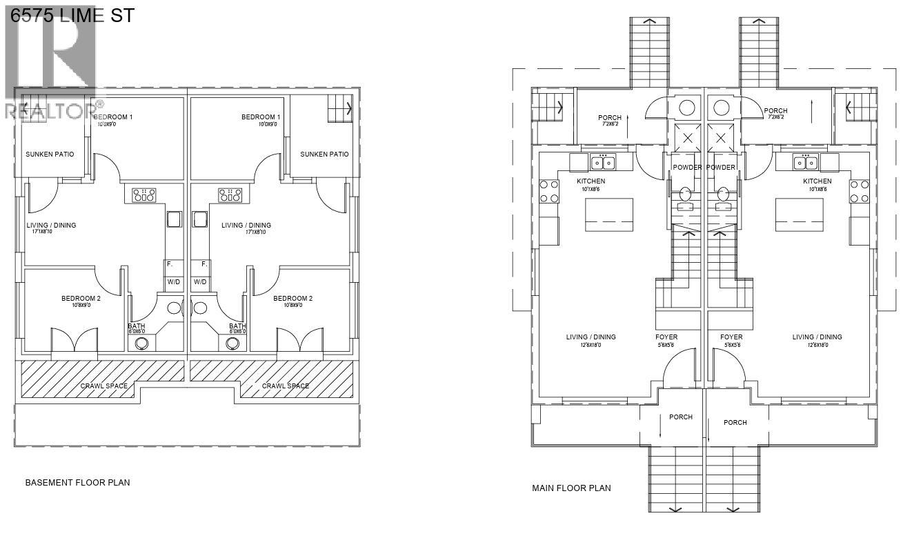
Area:
1994 sqft
Bedrooms:
5
Bathrooms:
5
Garages:
2
Year of Construction:
2026
Open House:
02/05/2026 02:00:00 PM to
02/05/2026 04:00:00 PM

MLS®#R3109771

Property Description

Brand new home 2026 spring. NO strata fee! A curated collection of bespoke Duplex homes on Vancouver's tree-lined Kerrisdale neighborhood. 2 Bed 1 Bath Legal rental suite in basement. Impeccable space designed enables spacious interiors for living. Smart Home systems equipped community, together with spa-like bathrooms, air conditioned and floor heating and more. Openhouse 2-4 p.m. May 2nd. (id:32467)

Property Features

Building

  • Appliances: All
  • Basement Development: Finished
  • Basement Features: Unknown
  • Basement Type: Full (Finished)
  • Cooling Type: Air Conditioned
  • Fireplace: No
  • Interior Size: 1994 sqft
  • Building Type: Duplex

Land

  • Land Size: 5000 sqft

Maintenance Fee

  • Maintenance Fee: 0.00

Ownership

  • Type: Strata

Information entered by RE/MAX Crest Realty
Listing information last updated on: 2026-04-29 03:02:40


Book your free home evaluation with a 1% REALTOR® now!


How much could you save in commission selling with One Percent Realty?

Slide to select your home's price:

$500,000

Your One Percent Realty Commission savings

$500,000

Savings calculated using One Percent Realty's posted commission rates compared to another agent charging 7% on the first 100k & 2.5% on the balance + GST. Not all agents charge the same. Savings shown are illustrative only. Actual commission costs depend on the commission structure negotiated with your agent.

Send a Message


One Percent Realty's top FAQs

Q
What is the deal exactly, with One Percent?

We are a fully licensed real estate company that offers full service but at a discount commission. In terms of services and exposure, we are identical to whoever you would like to compare us with. We are on MLS®, all the top internet real estates sites, we place a sign on your property ( if it's allowed ), we show the property, hold open houses, advertise it, handle all the negotiations, plus the conveyancing. There is nothing that you are not getting, except for a high commission!

Q
What do you charge?

Each agent sets their own commission structure, subject to a maximum of 1% for listing services and up to 1% payable to cooperating brokerages. Homes under $500,000 are subject to a minimum charge of $9,950

Q
Are your listings on MLS® and realtor.ca?

Yes, and yes.


Learn more about the One Percent Realty Deal

 

Ian Bailey Manager

Phone:
(604) 551-9467
Mobile:
(604) 551-9467
Email:
ibailey@onepercentrealty.com
Support Area:
Vancouver

Ian is the managing broker in the Vancouver Office which services the entire province.  If you ...

Full Profile

 

Cathy RAWLYK REALTOR®

Phone:
(604) 727-8446
Mobile:
(604) 727-8446
Email:
crawlyk@telus.net
Support Area:
Vancouver

~~MEDALLION CLUB = top 10% of all realtors in Real Estate Board of Greater Vancouver. Serving  ...

Full Profile

 

Faith Chan 莫太 國粵潮語服務溫哥華本那比及高貴林 Chan REALTOR®

Phone:
(604) 618-2225
Email:
6182225@gmail.com
Support Area:
VANCOUVER, BURNABY, COQUITLAM, PORT MOODY, PORT COQUITLAM

Make your move a" Light and Easy" one with the service of Faith when smart pricing is the key. Faith ...

Full Profile