6054 Lynx Drive, Vernon

2026-04-07
 

Quick Summary

Location
6054 Lynx Drive, Vernon, British Columbia V1B3J5
Price
$2,399,900 CAD
Status:
For Sale
Property Type:
Single Family
Area:
5236 sqft
Bedrooms:
5
Bathrooms:
3
Garages:
20
Year of Construction:
2010

MLS®#10378055

Property Description

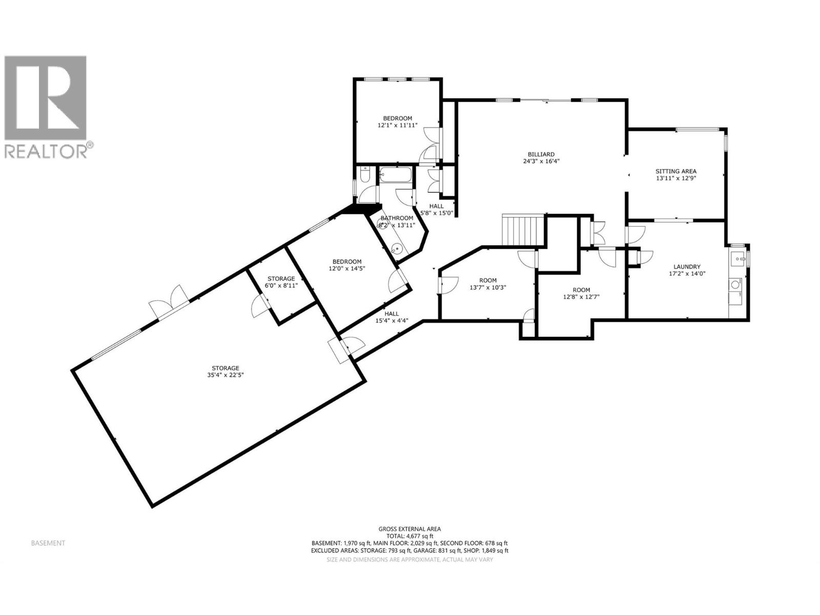
Welcome to this custom designed 5-bedroom rancher offering over 5,000 sqft of beautifully finished living space. Tucked away on a private 5-acre parcel surrounded by nature, this peaceful retreat captures sweeping views of the city and Okanagan Lake blending privacy, luxury, and comfort in perfect harmony. Thoughtfully crafted with highend finishes and generous living areas throughout this home is truly exceptional. The chef-inspired kitchen is a showpiece, featuring custom cabinetry, an oversized island with built-in sink, gas stove, under-cabinet lighting, and a striking glass tile backsplash. The bright and airy dining nook showcases panoramic lake and city views and opens onto a partially covered stamped concrete deck perfect for entertaining or quiet mornings. The stunning great room impresses with spectacular inlaid ceilings, a cozy fireplace, and expansive windows that flood the space with natural light. Canadian long-length maple hardwood flooring flows throughout the main level, enhancing the home’s warmth and elegance. The primary suite offers direct deck access, a large walk-in closet, and a spa-inspired 5-piece ensuite designed for relaxation. Downstairs, the walkout basement features in-floor radiant heating and includes two spacious bedrooms, a full bathroom, games room, flex space, TV room, and laundry room providing plenty of room for family and guests. All this and a three car garage. Outdoor enthusiasts will appreciate the easy access to nearby hiking and ATV trails. For those needing extra space for work or hobbies, the fully finished 40’ x 50’ heated detached shop is a rare find, complete with 12’ x 14’ drive-thru doors, 16-foot ceilings, and ample paved parking for vehicles and recreational toys. This one-of-a-kind luxury estate offers the lifestyle you’ve been dreaming of privacy, space, and unforgettable views all in one remarkable property. (id:32467)

Property Features

Building

  • Architectural Style: Ranch
  • Construction Style: Detached
  • Cooling Type: Central air conditioning
  • Fireplace: Yes
  • Interior Size: 5236 sqft
  • Building Type: House
  • Stories: 2
  • Utility Water: Well

Land

  • Land Size: 5.04 ac|5 - 10 acres
  • Sewer: Septic tank

Ownership

  • Type: Freehold

Information entered by Coldwell Banker Executives Realty
Listing information last updated on: 2026-04-08 21:19:47


Book your free home evaluation with a 1% REALTOR® now!


How much could you save in commission selling with One Percent Realty?

Slide to select your home's price:

$500,000

Your One Percent Realty Commission savings

$500,000

Savings calculated using One Percent Realty's posted commission rates compared to another agent charging 7% on the first 100k & 2.5% on the balance + GST. Not all agents charge the same. Savings shown are illustrative only. Actual commission costs depend on the commission structure negotiated with your agent.

One Percent Realty's top FAQs

Q
What is the deal exactly, with One Percent?

We are a fully licensed real estate company that offers full service but at a discount commission. In terms of services and exposure, we are identical to whoever you would like to compare us with. We are on MLS®, all the top internet real estates sites, we place a sign on your property ( if it's allowed ), we show the property, hold open houses, advertise it, handle all the negotiations, plus the conveyancing. There is nothing that you are not getting, except for a high commission!

Q
What do you charge?

Each agent sets their own commission structure, subject to a maximum of 1% for listing services and up to 1% payable to cooperating brokerages. Homes under $500,000 are subject to a minimum charge of $9,950

Q
Are your listings on MLS® and realtor.ca?

Yes, and yes.


Learn more about the One Percent Realty Deal