1607 43 Avenue Unit# 304 Lot# SL 10, Vernon

2026-03-19
 

Quick Summary

Location
1607 43 Avenue Unit# 304 Lot# SL 10, Vernon, British Columbia V1T9R9
Price
$449,900 CAD
Status:
For Sale
Property Type:
Single Family
Area:
1284 sqft
Bedrooms:
3
Bathrooms:
3
Garages:
2
Year of Construction:
1997
Video Link:

MLS®#10377516

Property Description

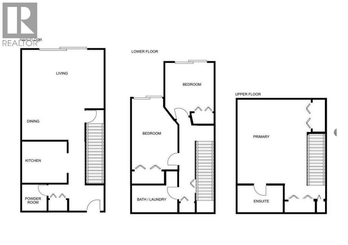
Very unique 3 bedroom, 3 bathroom floorplan. Main floor has kitchen with sit up breakfast bar that opens to Living room with a gas fireplace. Deck overlooks green space. 2 piece powder room. Large Primary bedroom on top level with a full ensuite.is completely on its own for privacy.. The lower level has 2 bedrooms that both lead out to patio. a full bathroom, laundry area and under stairs storage. Nice area and location on City bus route. 2 parking stalls. (id:32467)

Property Features

Building

  • Basement Type: Full
  • Construction Style: Attached
  • Cooling Type: See Remarks
  • Exterior Finish: Vinyl siding
  • Fireplace: Yes
  • Interior Size: 1284 sqft
  • Building Type: Row / Townhouse
  • Stories: 3
  • Utility Water: Municipal water

Land

  • Land Size: under 1 acre
  • Sewer: Municipal sewage system

Maintenance Fee

  • Maintenance Fee: 336.97

Ownership

  • Type: Strata

Information entered by Royal LePage Downtown Realty
Listing information last updated on: 2026-03-30 17:53:00


Book your free home evaluation with a 1% REALTOR® now!


How much could you save in commission selling with One Percent Realty?

Slide to select your home's price:

$500,000

Your One Percent Realty Commission savings

$500,000

Savings calculated using One Percent Realty's posted commission rates compared to another agent charging 7% on the first 100k & 2.5% on the balance + GST. Not all agents charge the same. Savings shown are illustrative only. Actual commission costs depend on the commission structure negotiated with your agent.

One Percent Realty's top FAQs

Q
What is the deal exactly, with One Percent?

We are a fully licensed real estate company that offers full service but at a discount commission. In terms of services and exposure, we are identical to whoever you would like to compare us with. We are on MLS®, all the top internet real estates sites, we place a sign on your property ( if it's allowed ), we show the property, hold open houses, advertise it, handle all the negotiations, plus the conveyancing. There is nothing that you are not getting, except for a high commission!

Q
What do you charge?

Each agent sets their own commission structure, subject to a maximum of 1% for listing services and up to 1% payable to cooperating brokerages. Homes under $500,000 are subject to a minimum charge of $9,950

Q
Are your listings on MLS® and realtor.ca?

Yes, and yes.


Learn more about the One Percent Realty Deal