2589 Airstrip Road, Anglemont

2026-03-18
 

Quick Summary

Location
2589 Airstrip Road, Anglemont, British Columbia V0E1M8
Price
$984,900 CAD
Status:
For Sale
Property Type:
Single Family
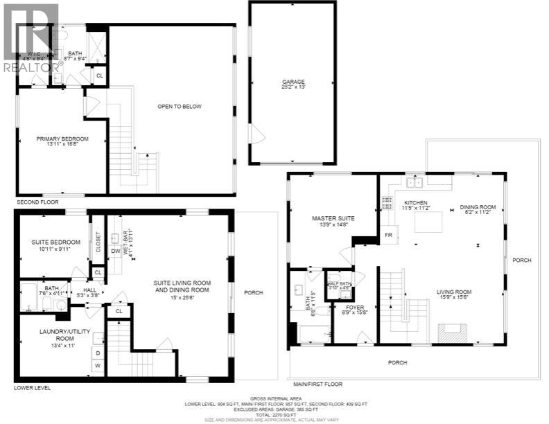
Area:
2270 sqft
Bedrooms:
3
Bathrooms:
4
Garages:
10
Year of Construction:
2021
Brochure Link:
Video Link:

MLS®#10379619

Property Description

This exceptional 2271sq.ft. custom built log home was crafted by the Shuswap's renowned North American Log Crafters in partnership with Launch Construction. Nestled in a serene setting with lake and mountain views, this masterpiece blends timeless craftsmanship with modern comforts. Step inside to vaulted ceilings and an open-concept layout bathed in natural light, anchored by a floor-to-ceiling stone fireplace that brings warmth and grandeur to the space. At the heart of the home is a chef’s dream kitchen, beautifully appointed with premium appliances, high-end finishes, and thoughtful design. Completing the main floor is a master bedroom with private ensuite, as well as a powder bath and a wrap around deck. The stunning primary master suite occupies the entire upper level, and features a large walk-in closet and luxurious spa-inspired bath. Downstairs a fully-equipped guest suite with a separate entrance is perfect for extended family or as a mortgage helper. A hard-wired generator ensures uninterrupted power to the boiler so you're never left in the dark, and the heat pump A/C will keep you comfortable during the hot summer months. The amenities continue outside with a hot tub, detached garage, equipment shed, and an RV site with water, 50-amp power and septic hookup, making this the ultimate retreat for entertainers. Whether you're seeking a full time residence or a vacation home, this one-of-a-kind property delivers luxury and iconic log home beauty in every detail. (id:32467)

Property Features

Ammenities Near By

  • Ammenities Near By: Golf Nearby, Park, Recreation, Schools, Ski area

Building

  • Appliances: Refrigerator, Dishwasher, Dryer, Freezer, Range - Gas, Microwave, Washer
  • Architectural Style: Contemporary, Log house/cabin
  • Basement Type: Full
  • Construction Style: Detached
  • Cooling Type: Heat Pump
  • Exterior Finish: Wood, Other
  • Fireplace: Yes
  • Flooring Type: Vinyl
  • Interior Size: 2270 sqft
  • Building Type: House
  • Stories: 2.5
  • Utility Water: Municipal water

Features

  • Feature: Level lot, Private setting, Central island, Balcony

Land

  • Land Size: 0.38 ac|under 1 acre

Ownership

  • Type: Freehold

Storage Type

  • Storage Type: Storage Shed

Information entered by Royal LePage Access Real Estate
Listing information last updated on: 2026-03-19 05:58:29


Book your free home evaluation with a 1% REALTOR® now!


How much could you save in commission selling with One Percent Realty?

Slide to select your home's price:

$500,000

Your One Percent Realty Commission savings

$500,000

Savings calculated using One Percent Realty's posted commission rates compared to another agent charging 7% on the first 100k & 2.5% on the balance + GST. Not all agents charge the same. Savings shown are illustrative only. Actual commission costs depend on the commission structure negotiated with your agent.

One Percent Realty's top FAQs

Q
What is the deal exactly, with One Percent?

We are a fully licensed real estate company that offers full service but at a discount commission. In terms of services and exposure, we are identical to whoever you would like to compare us with. We are on MLS®, all the top internet real estates sites, we place a sign on your property ( if it's allowed ), we show the property, hold open houses, advertise it, handle all the negotiations, plus the conveyancing. There is nothing that you are not getting, except for a high commission!

Q
What do you charge?

Each agent sets their own commission structure, subject to a maximum of 1% for listing services and up to 1% payable to cooperating brokerages. Homes under $500,000 are subject to a minimum charge of $9,950

Q
Are your listings on MLS® and realtor.ca?

Yes, and yes.


Learn more about the One Percent Realty Deal