955 Gable Road, Lake Country

2026-03-12
 

Quick Summary

Location
955 Gable Road, Lake Country, British Columbia V4V1C3
Price
$2,495,000 CAD
Status:
For Sale
Property Type:
Single Family
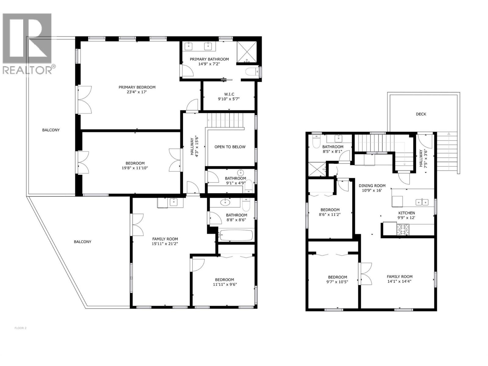
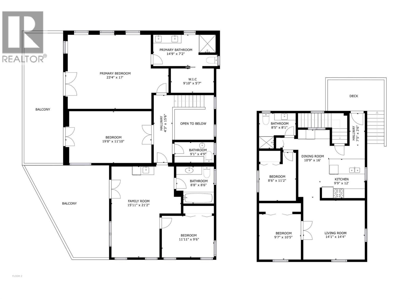
Area:
4340 sqft
Bedrooms:
6
Bathrooms:
7
Garages:
7
Year of Construction:
1989
Video Link:

MLS®#10378087

Property Description

Discover the ULTIMATE LAKESIDE RETREAT in this meticulously reimagined SEMI-WATERFRONT HOME. Only steps away from the beach & boat launch, this property embodies the sun-drenched spirit of the Okanagan. With over $300K in PRECISION UPGRADES, this home has been modernized to a consistent, high-quality standard throughout. A gourmet kitchen w/custom cherry cabinetry & a sprawling island anchors the open-concept great room. The uninterrupted panoramic views flow through to the living room featuring a custom crafted mantle w/new gas fp w/vaulted ceiling & exposed beam. The upper level provides a private sanctuary, headlined by the primary bdrm featuring an expansive walk-in closet & a spa-inspired ensuite w/an elegant glass shower & heated floors. A generous 2nd bdrm, powder room, a 3rd bdrm, 4 piece bathroom PLUS family room w/coffee bar & access to a deck w/lake view, offers an additional refined space for family & friends. Beyond the primary residence, the property offers dual high-end guest or income opportunities. A LEGAL two-bdrm suite sits privately above the oversized garage, complemented by an additional one-bdrm suite, both registered & licensed w/the District for short term rentals, w/o sacrificing privacy. An exquisite outdoor haven incl. a custom kitchen & fireside lounge - a tranquil space to take in the beauty of the lake. Buoy, RV & boat parking, spacious driveway & an oversized, heightened double garage! This estate easily accommodates all Okanagan needs & more! (id:32467)

Property Features

Ammenities Near By

  • Ammenities Near By: Park, Recreation

Building

  • Appliances: Refrigerator, Dishwasher, Dryer, Range - Electric, Microwave, Washer, Oven - Built-In
  • Construction Style: Detached
  • Cooling Type: Central air conditioning
  • Exterior Finish: Stucco
  • Fireplace: Yes
  • Flooring Type: Ceramic Tile, Hardwood, Other
  • Interior Size: 4340 sqft
  • Building Type: House
  • Stories: 2
  • Utility Water: Private Utility

Features

  • Feature: Central island

Land

  • Land Size: 0.27 ac|under 1 acre
  • Sewer: Septic tank

Ownership

  • Type: Freehold

Information entered by Century 21 Assurance Realty Ltd
Listing information last updated on: 2026-03-31 20:49:11


Book your free home evaluation with a 1% REALTOR® now!


How much could you save in commission selling with One Percent Realty?

Slide to select your home's price:

$500,000

Your One Percent Realty Commission savings

$500,000

Savings calculated using One Percent Realty's posted commission rates compared to another agent charging 7% on the first 100k & 2.5% on the balance + GST. Not all agents charge the same. Savings shown are illustrative only. Actual commission costs depend on the commission structure negotiated with your agent.

Send a Message


One Percent Realty's top FAQs

Q
What is the deal exactly, with One Percent?

We are a fully licensed real estate company that offers full service but at a discount commission. In terms of services and exposure, we are identical to whoever you would like to compare us with. We are on MLS®, all the top internet real estates sites, we place a sign on your property ( if it's allowed ), we show the property, hold open houses, advertise it, handle all the negotiations, plus the conveyancing. There is nothing that you are not getting, except for a high commission!

Q
What do you charge?

Each agent sets their own commission structure, subject to a maximum of 1% for listing services and up to 1% payable to cooperating brokerages. Homes under $500,000 are subject to a minimum charge of $9,950

Q
Are your listings on MLS® and realtor.ca?

Yes, and yes.


Learn more about the One Percent Realty Deal

 

DONNA FULLER REALTOR® - Associate Broker

Phone:
604-683-1393
Email:
donnafullerREALTOR@gmail.com
Support Area:
KELOWNA, KELOWNA DOWNTOWN, KELOWNA SOUTH, KELOWNA NORTH, SOUTH EAST KELOWNA, LOWER MISSION, UPPER MISSION, KETTLE VALLEY, CRAWFORD ESTATES, SPRINGFIELD SPALL, DILWORTH MOUNTAIN, WILDEN, RUTLAND, JOE RICH, BLACK MOUNTAIN, UNIVERSITY DISTRICT, LAKE COUNTRY, WINFIELD, ELLISON

Ready to Sell? List Smarter. Save THOUSANDS on MLS!Born in Vancouver and a long time Kelowna residen ...

Full Profile