2403 Osprey Court, Sparwood

2026-03-12
 

Quick Summary

Location
2403 Osprey Court, Sparwood, British Columbia V0B2G2
Price
$899,000 CAD
Status:
For Sale
Property Type:
Single Family
Area:
3007 sqft
Bedrooms:
5
Bathrooms:
4
Year of Construction:
2022

MLS®#10374833

Property Description

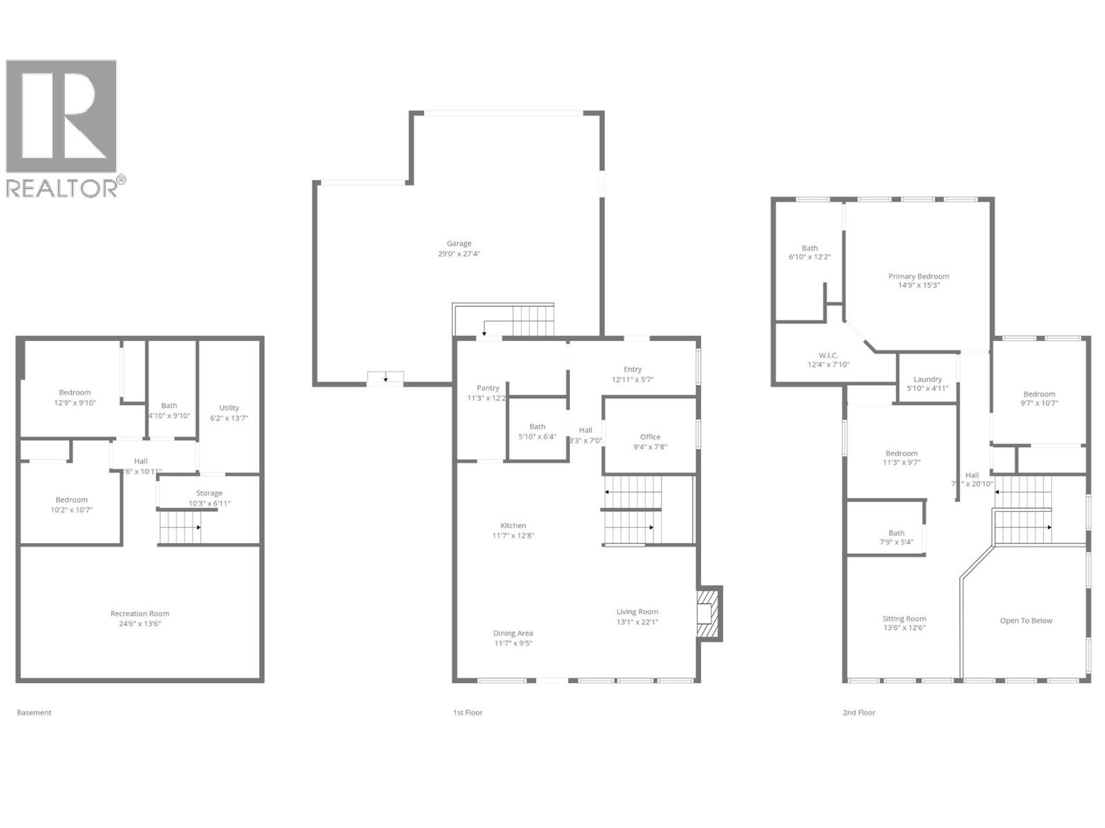
Welcome to this exceptional custom 5 bed, 4 bath home in the highly sought-after community of Whiskey Jack Estates. The main living area features soaring 19-ft vaulted ceilings & dramatic floor-to-ceiling windows frame stunning mountain views & flood the space with natural light. A sleek gas fireplace anchors the room. The chef’s kitchen is a showstopper with quartz countertops, built-in wall oven, 6-burner gas range, stainless steel appliances, dbl Fisher & Paykel refrigerators & a generous island perfect for gathering and unique walk-through pantry. The dining area flows effortlessly to the outdoor living space, where a built-in deck with pergola, water feature, and panoramic mountain views create a true extension of the home. The main floor also offers an office & a beautiful powder room. Upstairs, is a bright flex space. The spacious primary suite features a large walk-in closet with built-ins and a spa-inspired ensuite with double vanities, custom tile & glass shower. Two more bedrooms, a full bath & upper-level laundry complete this floor. The lower level offers a massive media/family room, 2 additional bedrooms, a full bath and storage. The fully fenced, thoughtfully landscaped yard features flagstone pathways, garden beds, in-ground sprinklers & RV storage along w/ a triple garage & generous parking. Located in one of Sparwood’s most desirable neighbourhoods w/ access to trails, recreation & all that the Elk Valley lifestyle has to offer. Book your private tour today! (id:32467)

Property Features

Ammenities Near By

  • Ammenities Near By: Golf Nearby, Public Transit, Park, Recreation, Schools, Shopping, Ski area

Building

  • Appliances: Refrigerator, Dishwasher, Microwave, Washer & Dryer, Water softener, Oven - Built-In
  • Basement Type: Full
  • Construction Style: Detached
  • Cooling Type: Central air conditioning
  • Exterior Finish: Stone
  • Fireplace: Yes
  • Flooring Type: Carpeted, Tile, Vinyl
  • Interior Size: 3007 sqft
  • Building Type: House
  • Stories: 3
  • Utility Water: Municipal water

Features

  • Feature: Level lot, Private setting, Central island, Balcony

Land

  • Land Size: 0.43 ac|under 1 acre
  • Sewer: Municipal sewage system

Ownership

  • Type: Freehold

Information entered by eXp Realty (Fernie)
Listing information last updated on: 2026-03-12 15:30:20


Book your free home evaluation with a 1% REALTOR® now!


How much could you save in commission selling with One Percent Realty?

Slide to select your home's price:

$500,000

Your One Percent Realty Commission savings

$500,000

Savings calculated using One Percent Realty's posted commission rates compared to another agent charging 7% on the first 100k & 2.5% on the balance + GST. Not all agents charge the same. Savings shown are illustrative only. Actual commission costs depend on the commission structure negotiated with your agent.

One Percent Realty's top FAQs

Q
What is the deal exactly, with One Percent?

We are a fully licensed real estate company that offers full service but at a discount commission. In terms of services and exposure, we are identical to whoever you would like to compare us with. We are on MLS®, all the top internet real estates sites, we place a sign on your property ( if it's allowed ), we show the property, hold open houses, advertise it, handle all the negotiations, plus the conveyancing. There is nothing that you are not getting, except for a high commission!

Q
What do you charge?

Each agent sets their own commission structure, subject to a maximum of 1% for listing services and up to 1% payable to cooperating brokerages. Homes under $500,000 are subject to a minimum charge of $9,950

Q
Are your listings on MLS® and realtor.ca?

Yes, and yes.


Learn more about the One Percent Realty Deal