A 322 ENTERPRISE AVENUE, Kitimat

2026-03-05
 

Quick Summary

Location
A 322 ENTERPRISE AVENUE, Kitimat, British Columbia V8C2E9
Price
$22 CAD
Status:
For lease
Property Type:
Office

MLS®#C8076764

Property Description

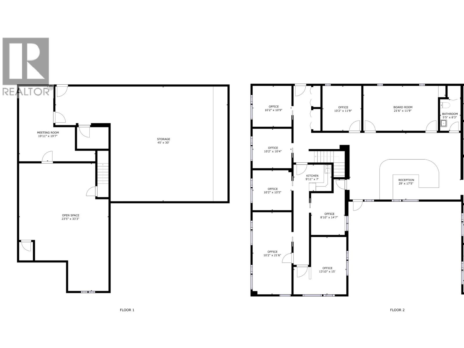
Well-located office space available for lease, ideal for a large businesses looking for a professional and accessible workspace. The layout includes several private offices, reception area, flexible workspace options, basement storage, and a lunch room. Convenient access and parking make it easy for both staff and clients. A great opportunity for professional services, contractors, or any businesses looking to establish a strong presence in Kitimat. This location is located a few minutes from LNG Canada, Rio Tinto BC Works, and Cedar LNG. (id:32467)

Property Features

Building

  • Amenities: Storefront
  • Fireplace: No

Information entered by Century 21 Northwest Realty Ltd.
Listing information last updated on: 2026-03-05 22:26:14


Book your free home evaluation with a 1% REALTOR® now!


How much could you save in commission selling with One Percent Realty?

Slide to select your home's price:

$500,000

Your One Percent Realty Commission savings

$500,000

Savings calculated using One Percent Realty's posted commission rates compared to another agent charging 7% on the first 100k & 2.5% on the balance + GST. Not all agents charge the same. Savings shown are illustrative only. Actual commission costs depend on the commission structure negotiated with your agent.

One Percent Realty's top FAQs

Q
What is the deal exactly, with One Percent?

We are a fully licensed real estate company that offers full service but at a discount commission. In terms of services and exposure, we are identical to whoever you would like to compare us with. We are on MLS®, all the top internet real estates sites, we place a sign on your property ( if it's allowed ), we show the property, hold open houses, advertise it, handle all the negotiations, plus the conveyancing. There is nothing that you are not getting, except for a high commission!

Q
What do you charge?

Each agent sets their own commission structure, subject to a maximum of 1% for listing services and up to 1% payable to cooperating brokerages. Homes under $500,000 are subject to a minimum charge of $9,950

Q
Are your listings on MLS® and realtor.ca?

Yes, and yes.


Learn more about the One Percent Realty Deal