1225 COPPERHEAD Drive, Kamloops

2026-03-04
 

Quick Summary

Location
1225 COPPERHEAD Drive, Kamloops, British Columbia V2E0A1
Price
$998,500 CAD
Status:
For Sale
Property Type:
Single Family
Area:
3024 sqft
Bedrooms:
6
Bathrooms:
4
Year of Construction:
2006
Brochure Link:
Video Link:

MLS®#10377905

Property Description

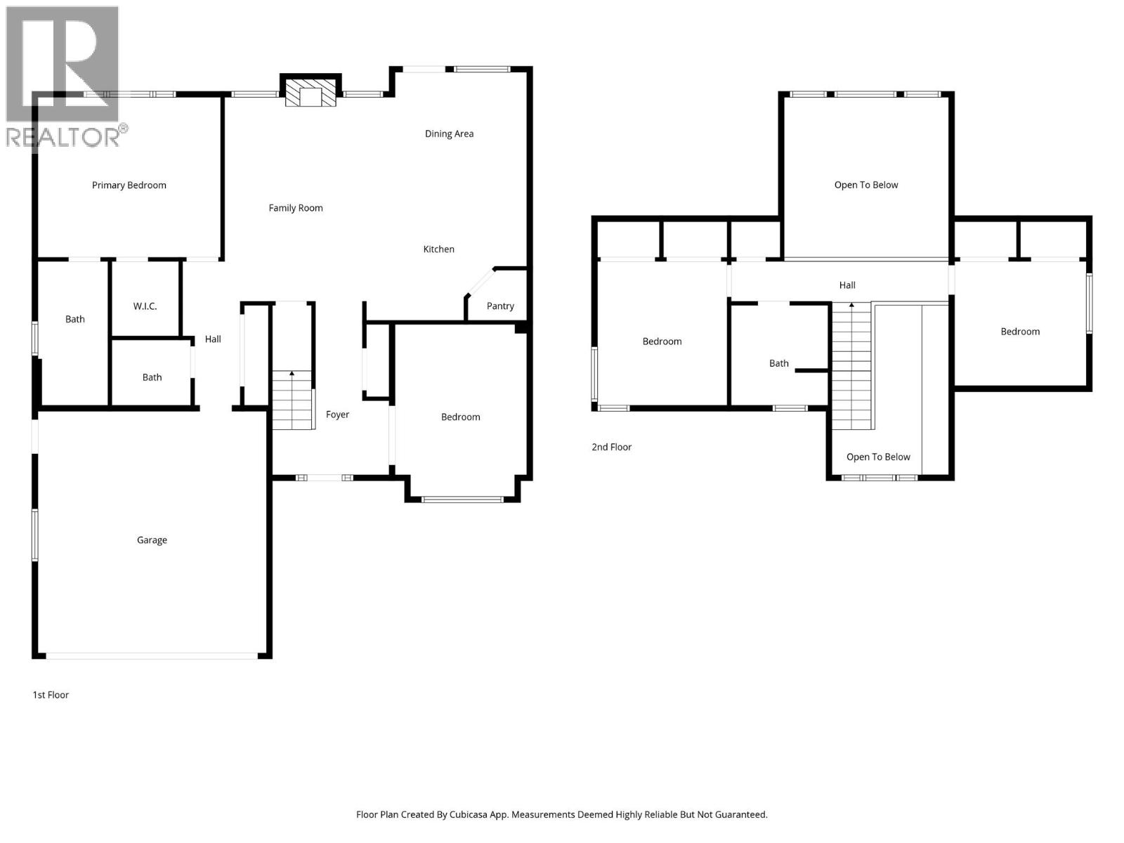
Welcome to 1225 Copperhead Drive. This 6-bedroom two storey home with a 2-bedroom in-law suite is in a highly sought after location in Dufferin backing onto Kenna Cartwright Park. Enter into the main floor of this home & you’ll immediately notice the impressive 17ft ceilings in the living room + large windows which bring in tons of natural light. The living room opens up to the kitchen & dining area which flows together effortlessly & is great for entertaining. The main floor has 2 bedrooms including a large primary bedroom with views of the park, 3pc ensuite bathroom, & walk in closet + there is an additional bedroom/office by the front door. The main floor also has a laundry room in the 2pc guest bathroom. The upper-level features 2 more bedrooms & a 4pc bathroom connected by a breezeway with great views of the outdoors. Outside the low-maintenance yard is a nature retreat at your own house. There is a large deck, great views of the park behind, & a gate that instantly connects you to the largest municipal park in BC. True privacy with no neighbours behind your house. Downstairs is a large 2-bedroom inlaw suite with separate entrance, full kitchen, 4pc bathroom, separate laundry, & large living room. Recent updates include new carpet on stairs (2026), hot water tank, main floor appliances, & basement suite reno(2024). Double garage, central vac, & an amazing location close to Dufferin Elementary, Costco, Aberdeen Mall, & all amenities. Book your showing today! (id:32467)

Property Features

Ammenities Near By

  • Ammenities Near By: Park, Recreation, Shopping

Building

  • Appliances: Range, Refrigerator, Dishwasher, Microwave, Washer & Dryer
  • Basement Type: Full
  • Construction Style: Detached
  • Cooling Type: Central air conditioning
  • Exterior Finish: Vinyl siding
  • Fireplace: Yes
  • Flooring Type: Mixed Flooring
  • Interior Size: 3024 sqft
  • Building Type: House
  • Stories: 3
  • Utility Water: Municipal water

Features

  • Feature: Cul-de-sac

Land

  • Land Size: 0.11 ac|under 1 acre
  • Sewer: Municipal sewage system

Ownership

  • Type: Freehold

Information entered by Century 21 Assurance Realty Ltd
Listing information last updated on: 2026-03-04 22:18:32


Book your free home evaluation with a 1% REALTOR® now!


How much could you save in commission selling with One Percent Realty?

Slide to select your home's price:

$500,000

Your One Percent Realty Commission savings

$500,000

Savings calculated using One Percent Realty's posted commission rates compared to another agent charging 7% on the first 100k & 2.5% on the balance + GST. Not all agents charge the same. Savings shown are illustrative only. Actual commission costs depend on the commission structure negotiated with your agent.

Send a Message


One Percent Realty's top FAQs

Q
What is the deal exactly, with One Percent?

We are a fully licensed real estate company that offers full service but at a discount commission. In terms of services and exposure, we are identical to whoever you would like to compare us with. We are on MLS®, all the top internet real estates sites, we place a sign on your property ( if it's allowed ), we show the property, hold open houses, advertise it, handle all the negotiations, plus the conveyancing. There is nothing that you are not getting, except for a high commission!

Q
What do you charge?

Each agent sets their own commission structure, subject to a maximum of 1% for listing services and up to 1% payable to cooperating brokerages. Homes under $500,000 are subject to a minimum charge of $9,950

Q
Are your listings on MLS® and realtor.ca?

Yes, and yes.


Learn more about the One Percent Realty Deal

 

Glenn Clark REALTOR®

Phone:
(250) 682-5650
Mobile:
(250) 682-5650
Email:
gclark59@gmail.com
Support Area:
Kamloops

Full service-Professionalism-Flat rate. It's that simple. I'm here to help you with all your real e ...

Full Profile

 

MAPLE ZENG REALTOR®

Phone:
2505741088
Email:
fzmaple@gmail.com
Support Area:
Kamloops, Kamloops District

I’m here to assist with all your real estate needs, whether you’re buying, selling, or simply ex ...

Full Profile