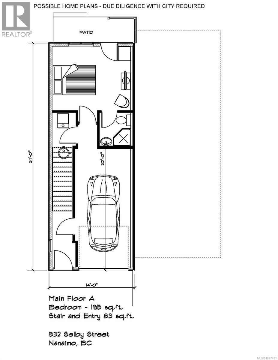
532 Selby St, NANAIMO

2026-03-03
 

Quick Summary

Location
532 Selby St, NANAIMO, British Columbia V9R2R8
Price
$249,900 CAD
Status:
For Sale
Property Type:
Vacant Land

MLS®#1027431

Property Description

APPROVED FOR A SMALLER SETBACK TO ALLOW A GOOD-SIZED FAMILY HOME! This prime 38 x 74.4 ft cleared vacant lot is an incredible opportunity to bring your plans and develop a building with innumerable possible uses. The board of variance has recently approved a setback of 1.52m which will give more flexibility in building a residential home. Zoned DT8, this flexible use zoning allows for mixed-use commercial and residential, residential use, street level commercial with second and third floors as multi-family residential uses, and more. The location is perfectly suited for a thriving business, adjacent to Nob Hill Park and close to all services and the vibrant Nanaimo Harbour. City services are available to the lot as well as natural gas. Enjoy breathtaking views of the mountain and city by adding height on the upper levels. Whether for single or multi-family residential or commercial purposes, the options are endless. The DT8 zoning permits a variety of businesses, such as pharmacies, offices, restaurants, pubs, daycares & more. Don't miss out on your chance to build your dream property in this fantastic downtown location. (id:32467)

Property Features

Building

  • Fireplace: No

Land

  • Land Size: 2827 sqft

Ownership

  • Type: Freehold

Zoning

  • Description: DT8

Information entered by Royal LePage Island Living (PK)
Listing information last updated on: 2026-03-03 22:42:57


Book your free home evaluation with a 1% REALTOR® now!


How much could you save in commission selling with One Percent Realty?

Slide to select your home's price:

$500,000

Your One Percent Realty Commission savings

$500,000

Savings calculated using One Percent Realty's posted commission rates compared to another agent charging 7% on the first 100k & 2.5% on the balance + GST. Not all agents charge the same. Savings shown are illustrative only. Actual commission costs depend on the commission structure negotiated with your agent.

Send a Message


One Percent Realty's top FAQs

Q
What is the deal exactly, with One Percent?

We are a fully licensed real estate company that offers full service but at a discount commission. In terms of services and exposure, we are identical to whoever you would like to compare us with. We are on MLS®, all the top internet real estates sites, we place a sign on your property ( if it's allowed ), we show the property, hold open houses, advertise it, handle all the negotiations, plus the conveyancing. There is nothing that you are not getting, except for a high commission!

Q
What do you charge?

Each agent sets their own commission structure, subject to a maximum of 1% for listing services and up to 1% payable to cooperating brokerages. Homes under $500,000 are subject to a minimum charge of $9,950

Q
Are your listings on MLS® and realtor.ca?

Yes, and yes.


Learn more about the One Percent Realty Deal

 

Joe Squire REALTOR ® MBA

Phone:
(250) 802-5899
Mobile:
(604) 626-9259
Email:
joe@joesquire.com
Support Area:
Nanaimo, Cedar, Lantzville, Ladysmith, Saltair, Nanoose, Old City, North Nanaimo, South Nanaimo, Central Nanaimo, Departure Bay, Hammond Bay, Diver Lake, Extension, Chase River, Pleasant Valley

Professional Nanaimo Real Estate Sales & Marketing: Specializing in Nanaimo and the Central I ...

Full Profile

 

Karelyn Campbell REALTOR®

Phone:
250-618-8213
Email:
mynanaimohome@gmail.com
Support Area:
Nanaimo, Ladysmith, Lantzville

Nanaimo Real Estate Specialist!Karelyn is a second generation real estate agent serving the Nanaimo ...

Full Profile

 

Jason Kerr REALTOR®, GSC

Phone:
250-616-2098
Email:
kerr014@gmail.com
Support Area:
Nanaimo, Cedar, Cinnabar Valley, Ladysmith, Parksville, Vancouver Island

Let's do this together, Vancouver Island."Unlocking doors to dream homes and turning visions into re ...

Full Profile