2138 LINFIELD Drive, Kamloops

2026-02-27
 

Quick Summary

Location
2138 LINFIELD Drive, Kamloops, British Columbia V1S0G3
Price
$1,549,900 CAD
Status:
For Sale
Property Type:
Single Family
Area:
4230 sqft
Bedrooms:
8
Bathrooms:
5
Garages:
6
Year of Construction:
2023
Brochure Link:
Photo Link:

MLS®#10377458

Property Description

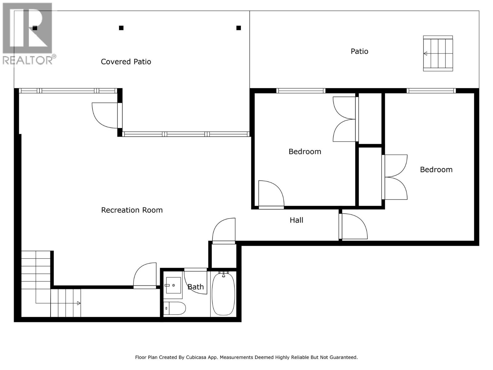
This expansive Aberdeen home offers breathtaking views & the opportunity to create 2 additional suites while still maintaining plenty of space for the primary living area. Step through the front door & be greeted by stunning sightlines through the large picture windows. The main floor features engineered hardwood, a spacious kitchen with stone countertops, an island & a pantry. Adjacent to the kitchen, the dining area flows seamlessly into the living room, with 14-foot ceilings & fireplace. A large, covered deck extends off the dining area. The main level includes 3 bedrooms, 4-piece bathroom & mudroom/laundry area conveniently located off the oversized 21' x 31'6"" garage. The primary suite has a walk-in closet & a luxurious ensuite with double sinks, soaker tub & a custom tile shower. Descending down, you'll find 2 additional bedrooms & another 4-piece bathroom, if suited, would remain part of the main home. A spacious family/games room is also on this floor, with all the rough-ins to easily add a suite, just install the kitchen. There's also a separate bedroom, a 4-piece bathroom & a dedicated laundry space. One more level down, you'll find 2 more bedrooms, a large rec room with rough-in plumbing for a wet bar, 4-piece bathroom & laundry closet. Each floor has its own separate entrance, 10-foot ceilings & a covered patio. One of the potential suites could be legal (buyers should verify with the City of Kamloops. (id:32467)

Property Features

Ammenities Near By

  • Ammenities Near By: Public Transit, Park, Recreation, Schools

Building

  • Architectural Style: Ranch
  • Basement Type: Full
  • Construction Style: Detached
  • Cooling Type: Central air conditioning
  • Exterior Finish: Stone
  • Fireplace: Yes
  • Flooring Type: Carpeted, Ceramic Tile, Hardwood, Laminate
  • Interior Size: 4230 sqft
  • Building Type: House
  • Stories: 3
  • Utility Water: Municipal water

Features

  • Feature: Central island, Balcony, Three Balconies

Land

  • Land Size: 0.15 ac|under 1 acre
  • Sewer: Municipal sewage system

Ownership

  • Type: Freehold

Information entered by Century 21 Assurance Realty Ltd
Listing information last updated on: 2026-04-09 17:50:01


Book your free home evaluation with a 1% REALTOR® now!


How much could you save in commission selling with One Percent Realty?

Slide to select your home's price:

$500,000

Your One Percent Realty Commission savings

$500,000

Savings calculated using One Percent Realty's posted commission rates compared to another agent charging 7% on the first 100k & 2.5% on the balance + GST. Not all agents charge the same. Savings shown are illustrative only. Actual commission costs depend on the commission structure negotiated with your agent.

Send a Message


One Percent Realty's top FAQs

Q
What is the deal exactly, with One Percent?

We are a fully licensed real estate company that offers full service but at a discount commission. In terms of services and exposure, we are identical to whoever you would like to compare us with. We are on MLS®, all the top internet real estates sites, we place a sign on your property ( if it's allowed ), we show the property, hold open houses, advertise it, handle all the negotiations, plus the conveyancing. There is nothing that you are not getting, except for a high commission!

Q
What do you charge?

Each agent sets their own commission structure, subject to a maximum of 1% for listing services and up to 1% payable to cooperating brokerages. Homes under $500,000 are subject to a minimum charge of $9,950

Q
Are your listings on MLS® and realtor.ca?

Yes, and yes.


Learn more about the One Percent Realty Deal

 

Glenn Clark REALTOR®

Phone:
(250) 682-5650
Mobile:
(250) 682-5650
Email:
gclark59@gmail.com
Support Area:
Kamloops

Full service-Professionalism-Flat rate. It's that simple. I'm here to help you with all your real e ...

Full Profile

 

MAPLE ZENG REALTOR®

Phone:
2505741088
Email:
fzmaple@gmail.com
Support Area:
Kamloops, Kamloops District

I’m here to assist with all your real estate needs, whether you’re buying, selling, or simply ex ...

Full Profile