6714 NICHOLSON ROAD, Delta

2026-02-26
 

Quick Summary

Location
6714 NICHOLSON ROAD, Delta, British Columbia V4E2T5
Price
$1,199,000 CAD
Status:
For Sale
Property Type:
Single Family
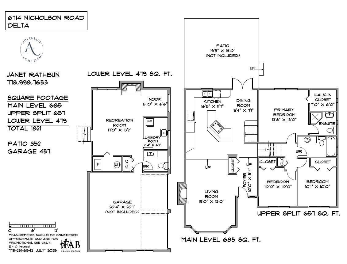
Area:
1821 sqft
Bedrooms:
3
Bathrooms:
3
Video Link:
Open House:
28/02/2026 03:00:00 PM to
28/02/2026 05:00:00 PM
01/03/2026 02:00:00 PM to
01/03/2026 04:00:00 PM

MLS®#R3093603

Property Description

Beautifully updated 3 bdrm, 2.5 bath home in sought-after Sunshine Hills. The kitchen, redesigned approx. 10 years ago, features a generous island, gas stovetop, updated backsplash, laminate counters, abundant cabinetry & excellent natural light. The open design connects the kitchen, dining & living areas, creating an easy, functional main floor. Hardwood flooring runs throughout the dining, living & upper level. The spacious primary easily accommodates a king bed & offers a WI closet + 3 pc ensuite. Two additional bdrms & a well-appointed main bath complete the upper floor. The lower level provides a versatile flex space ideal for a media room, office, gym or family room. Key updates include furnace (2017), water heater (2019), vinyl windows (2003), roof (2005) & newly updated gutters w/ downspout cleanouts (2025). Refreshed driveway, crawlspace storage & electrical ready for EV charging. Driveway & double garage access off Staples Cres. Walk to Cougar Canyon Elem, Seaquam Sec (IB), shops, transit & Watershed (id:32467)

Property Features

Building

  • Appliances: Washer, Dryer, Refrigerator, Stove, Dishwasher
  • Architectural Style: 3 Level
  • Basement Development: Finished
  • Basement Features: Unknown
  • Basement Type: Crawl space (Finished)
  • Construction Style: Detached
  • Fireplace: Yes
  • Interior Size: 1821 sqft
  • Building Type: House
  • Utility Water: Municipal water

Land

  • Land Size: 6017 sqft

Ownership

  • Type: Freehold

Information entered by RE/MAX Performance Realty
Listing information last updated on: 2026-02-26 03:50:46


Book your free home evaluation with a 1% REALTOR® now!


How much could you save in commission selling with One Percent Realty?

Slide to select your home's price:

$500,000

Your One Percent Realty Commission savings

$500,000

Savings calculated using One Percent Realty's posted commission rates compared to another agent charging 7% on the first 100k & 2.5% on the balance + GST. Not all agents charge the same. Savings shown are illustrative only. Actual commission costs depend on the commission structure negotiated with your agent.

Send a Message


One Percent Realty's top FAQs

Q
What is the deal exactly, with One Percent?

We are a fully licensed real estate company that offers full service but at a discount commission. In terms of services and exposure, we are identical to whoever you would like to compare us with. We are on MLS®, all the top internet real estates sites, we place a sign on your property ( if it's allowed ), we show the property, hold open houses, advertise it, handle all the negotiations, plus the conveyancing. There is nothing that you are not getting, except for a high commission!

Q
What do you charge?

Each agent sets their own commission structure, subject to a maximum of 1% for listing services and up to 1% payable to cooperating brokerages. Homes under $500,000 are subject to a minimum charge of $9,950

Q
Are your listings on MLS® and realtor.ca?

Yes, and yes.


Learn more about the One Percent Realty Deal

 

Bernadette Lynch REALTOR®

Phone:
(604) 862-4297
Email:
bernadettelynch@shaw.ca
Support Area:
Surrey, North Surrey, Cloverdale, Langley, Maple Ridge, North Delta

Specializing in  North Delta, Surrey, North Surrey,  Cloverdale and Langley.  My comm ...

Full Profile

 

Rob Widmann REALTOR®

Phone:
(604) 808-0992
Mobile:
(604) 808-0992
Email:
robwidmann@shaw.ca
Support Area:
Cloverdale, Langley, Surrey, North Surrey, South Surrey, North Delta, Aldergrove, Abbotsford, White Rock, Delta, Clayton, Walnut Grove, Willoughby, Brookswood, Langley City, Fleetwood, Green Timbers, Royal Heights

Welcome! You deserve to Save Money            ...

Full Profile

 

Raj Bud (MBA, ABR®) Personal Real Estate Corporation

Phone:
6048758430
Mobile:
(604) 875-8430
Email:
raj@rajbud.net
Skype:
raj.bud
Support Area:
Vancouver, Burnaby, New Westminster, Coquitlam, Surrey, Delta, Cloverdale, Langley, Richmond, White Rock

I am passionate about Real Estate, GOLD MASTER MEDALLION CLUB MEMBER 2021, Top 10% of REALTORS® in ...

Full Profile