3XX 250 E 6TH AVENUE, Vancouver

2026-02-23
 

Quick Summary

Location
3XX 250 E 6TH AVENUE, Vancouver, British Columbia V5T0B7
Price
$2,300 CAD
Status:
For Rent
Property Type:
Single Family
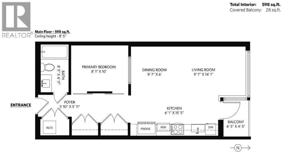
Area:
598 sqft
Bedrooms:
1
Bathrooms:
1

MLS®#R3092336

Property Description

Property Info: Address: 250 E 6th Ave, Vancouver BC 3rd Floor 1 Bedroom 1 Bath 598 Sqft North Facing 1 Parking 1 Locker un-furnished (furnishing in picture will be removed) Rental Terms and Conditions: Rent: $2,300 Available: April 1st Minimum 1 Year Lease No Pets, NO Smoking Tenant Insurance Required Utilities not included: Hydro, Gas and Internet Full credit and reference check required (id:32467)

Property Features

Building

  • Amenities: Laundry - In Suite
  • Appliances: Dishwasher, Microwave, Stove
  • Fireplace: No
  • Interior Size: 598 sqft
  • Building Type: Apartment

Features

  • Feature: Elevator

Information entered by RE/MAX Crest Realty
Listing information last updated on: 2026-02-23 16:09:52


Book your free home evaluation with a 1% REALTOR® now!


How much could you save in commission selling with One Percent Realty?

Slide to select your home's price:

$500,000

Your One Percent Realty Commission savings

$500,000

Savings calculated using One Percent Realty's posted commission rates compared to another agent charging 7% on the first 100k & 2.5% on the balance + GST. Not all agents charge the same. Savings shown are illustrative only. Actual commission costs depend on the commission structure negotiated with your agent.

Send a Message


One Percent Realty's top FAQs

Q
What is the deal exactly, with One Percent?

We are a fully licensed real estate company that offers full service but at a discount commission. In terms of services and exposure, we are identical to whoever you would like to compare us with. We are on MLS®, all the top internet real estates sites, we place a sign on your property ( if it's allowed ), we show the property, hold open houses, advertise it, handle all the negotiations, plus the conveyancing. There is nothing that you are not getting, except for a high commission!

Q
What do you charge?

Each agent sets their own commission structure, subject to a maximum of 1% for listing services and up to 1% payable to cooperating brokerages. Homes under $500,000 are subject to a minimum charge of $9,950

Q
Are your listings on MLS® and realtor.ca?

Yes, and yes.


Learn more about the One Percent Realty Deal

 

Ian Bailey Manager

Phone:
(604) 551-9467
Mobile:
(604) 551-9467
Email:
ibailey@onepercentrealty.com
Support Area:
Vancouver

Ian is the managing broker in the Vancouver Office which services the entire province.  If you ...

Full Profile

 

Cathy RAWLYK REALTOR®

Phone:
(604) 727-8446
Mobile:
(604) 727-8446
Email:
crawlyk@telus.net
Support Area:
Vancouver

~~MEDALLION CLUB = top 10% of all realtors in Real Estate Board of Greater Vancouver. Serving  ...

Full Profile

 

Faith Chan 莫太 國粵潮語服務溫哥華本那比及高貴林 Chan REALTOR®

Phone:
(604) 618-2225
Email:
6182225@gmail.com
Support Area:
VANCOUVER, BURNABY, COQUITLAM, PORT MOODY, PORT COQUITLAM

Make your move a" Light and Easy" one with the service of Faith when smart pricing is the key. Faith ...

Full Profile