2907 Bevmaril Cres, GABRIOLA ISLAND

2026-02-23
 

Quick Summary

Location
2907 Bevmaril Cres, GABRIOLA ISLAND, British Columbia V0R1X7
Price
$749,000 CAD
Status:
For Sale
Property Type:
Single Family
Area:
2456 sqft
Bedrooms:
2
Bathrooms:
2
Year of Construction:
1974
Video Link:

MLS®#1025500

Property Description

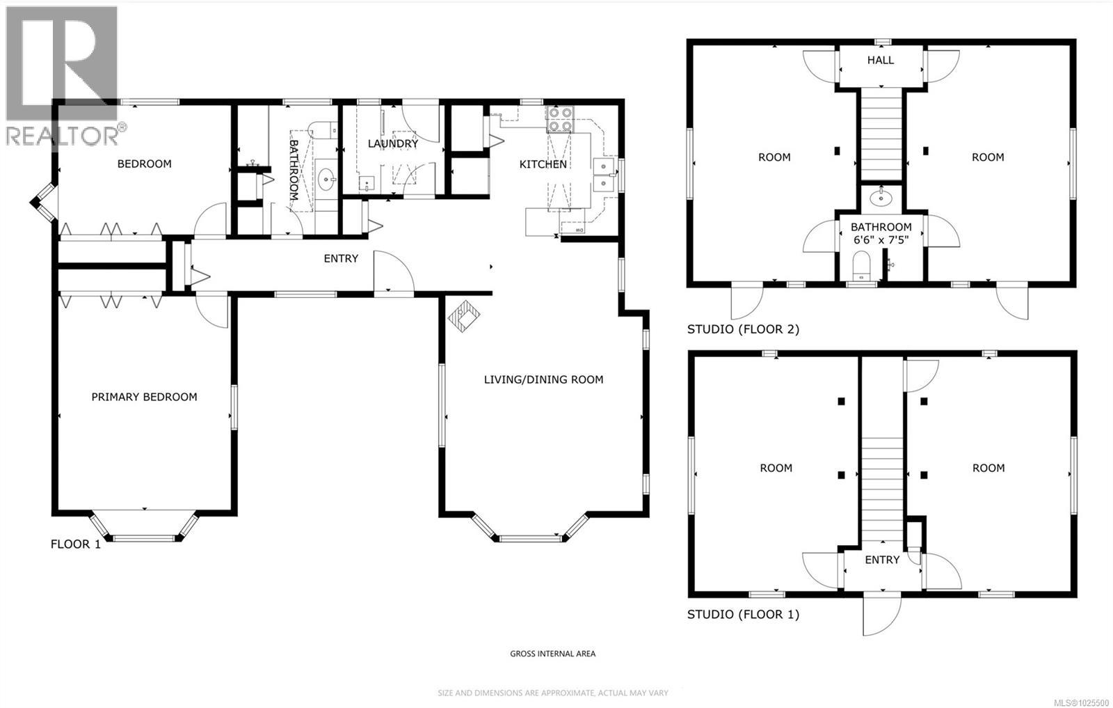
Just steps from Degnen Bay in a quiet, established neighbourhood, this warm and welcoming property features a 2-bedroom, 1-bathroom home plus a substantial detached 1,140 sq ft studio with bathroom, all set on a private and level 0.90-acre lot on Gabriola’s desirable south end. A special setting offering space to create, garden, and enjoy the natural beauty of island living.The 1,121 sq ft home offers a comfortable, easy layout centered around a courtyard-style deck, creating a lovely connection between indoor and outdoor spaces. The well-designed kitchen with wood cabinetry opens to a welcoming living room with woodstove and garden views. The primary bedroom offers a cozy window bench overlooking the yard, with a second bedroom, entrance with laundry, and a bright 4-piece bathroom with skylight — all thoughtfully arranged on one level. Serviced by a heat pump, well, and updated septic system. The spacious detached wood studio is a valuable feature — ideal for creative pursuits, home office, art or music studio, or a range of other possibilities. The two rooms on the main level feature wood ceilings and beams, while the upper level offers two rooms with wood floors and a 3-piece bathroom. The property is private, level, and full of potential, with established gardens in a fenced area, a picturesque yard, a 15x13 workshop, and a charming sauna ready to be brought back to life. A circular driveway welcomes you into this peaceful Gulf Island retreat just moments from the ocean — a property that truly feels like home. Full informaiton package with floor plans, video tour & virtual tour available. All information to be verified by a buyer if deemed important. (id:32467)

Property Features

Building

  • Appliances: Dishwasher, Dryer, Oven - Electric, Refrigerator, Washer
  • Cooling Type: Air Conditioned
  • Fireplace: Yes
  • Interior Size: 2456 sqft
  • Building Type: House

Features

  • Feature: Level lot, Private setting, Other, Marine Oriented

Land

  • Land Size: 0.9 ac

Ownership

  • Type: Freehold

Structure

  • Structure: Shed, Workshop

Information entered by Royal LePage Nanaimo Realty Gabriola
Listing information last updated on: 2026-02-23 15:42:34


Book your free home evaluation with a 1% REALTOR® now!


How much could you save in commission selling with One Percent Realty?

Slide to select your home's price:

$500,000

Your One Percent Realty Commission savings

$500,000

Savings calculated using One Percent Realty's posted commission rates compared to another agent charging 7% on the first 100k & 2.5% on the balance + GST. Not all agents charge the same. Savings shown are illustrative only. Actual commission costs depend on the commission structure negotiated with your agent.

One Percent Realty's top FAQs

Q
What is the deal exactly, with One Percent?

We are a fully licensed real estate company that offers full service but at a discount commission. In terms of services and exposure, we are identical to whoever you would like to compare us with. We are on MLS®, all the top internet real estates sites, we place a sign on your property ( if it's allowed ), we show the property, hold open houses, advertise it, handle all the negotiations, plus the conveyancing. There is nothing that you are not getting, except for a high commission!

Q
What do you charge?

Each agent sets their own commission structure, subject to a maximum of 1% for listing services and up to 1% payable to cooperating brokerages. Homes under $500,000 are subject to a minimum charge of $9,950

Q
Are your listings on MLS® and realtor.ca?

Yes, and yes.


Learn more about the One Percent Realty Deal