12874 FOREST AVENUE, Charlie Lake

2026-02-18
 

Quick Summary

Location
12874 FOREST AVENUE, Charlie Lake, British Columbia V0C1H0
Price
$599,900 CAD
Status:
For Sale
Property Type:
Single Family
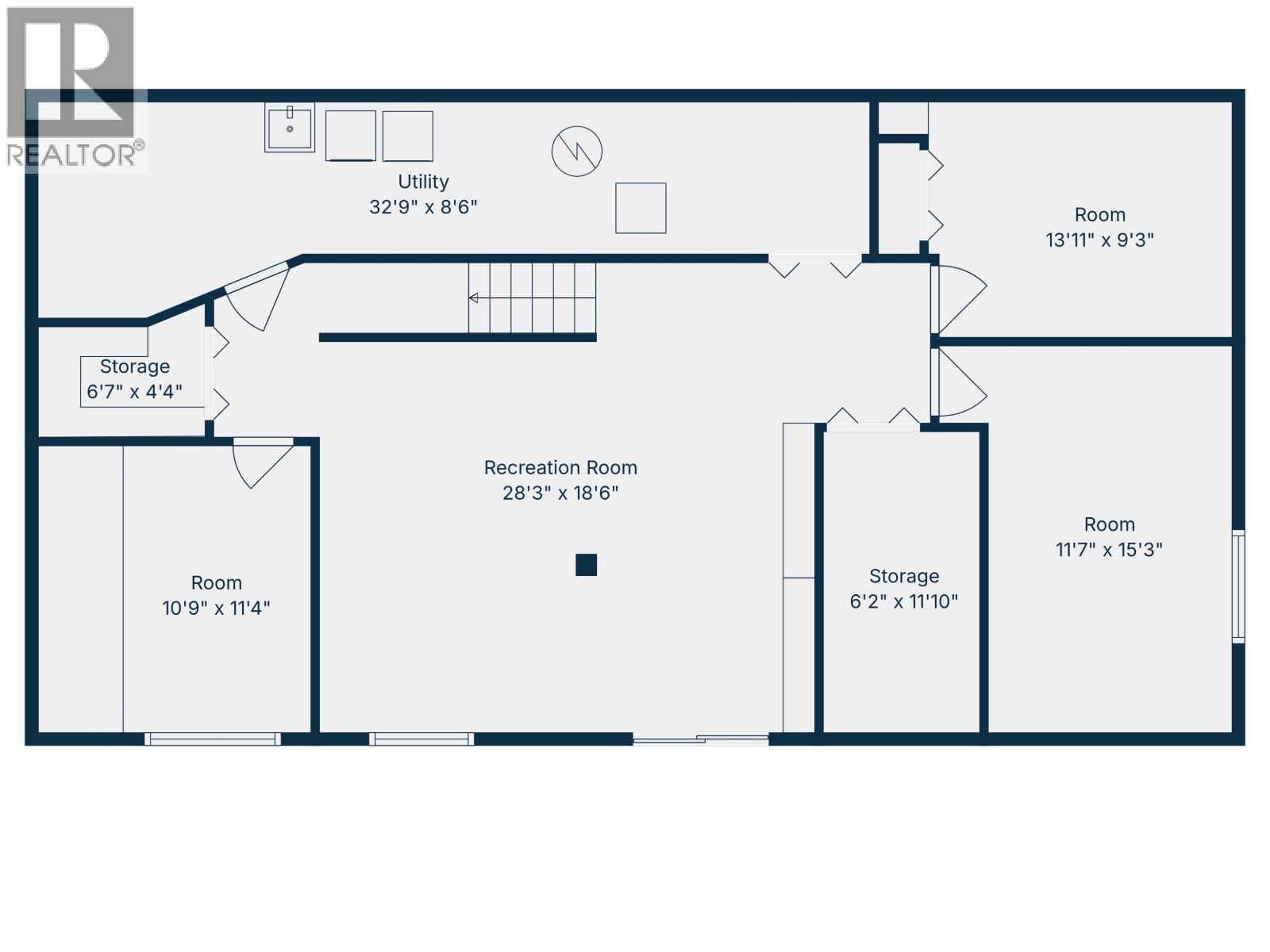
Area:
2607 sqft
Bedrooms:
5
Bathrooms:
2
Year of Construction:
1973

MLS®#R3091211

Property Description

Nestled on the shores of Charlie Lake, this 5-bedroom, 2-bath home offers endless potential to create your dream lakeside retreat. Soaring 20 ft vaulted ceilings and floor-to-ceiling windows frame breathtaking water views, while the open-concept design and walk-out basement invite bright, easy living. Enjoy 104 ft of lake frontage, a sundeck for morning coffee, and a covered patio with hot tub for evening relaxation. With a fenced yard, detached garage - fully insulated & heated with a wood floor, and ample parking, there's space for all your toys. Just minutes from Fort St. John and the golf course. This is an incredible opportunity to make this lakefront property your own. (id:32467)

Property Features

Building

  • Appliances: Washer/Dryer Combo, Dishwasher, Hot Tub, Stove
  • Basement Development: Finished
  • Basement Type: N/A (Finished)
  • Construction Style: Detached
  • Exterior Finish: Wood
  • Fireplace: No
  • Interior Size: 2607 sqft
  • Building Type: House
  • Stories: 3
  • Utility Water: Drilled Well

Land

  • Land Size: 21344 sqft

Ownership

  • Type: Freehold

Information entered by Century 21 Energy Realty
Listing information last updated on: 2026-05-13 14:07:54


Book your free home evaluation with a 1% REALTOR® now!


How much could you save in commission selling with One Percent Realty?

Slide to select your home's price:

$500,000

Your One Percent Realty Commission savings

$500,000

Savings calculated using One Percent Realty's posted commission rates compared to another agent charging 7% on the first 100k & 2.5% on the balance + GST. Not all agents charge the same. Savings shown are illustrative only. Actual commission costs depend on the commission structure negotiated with your agent.

One Percent Realty's top FAQs

Q
What is the deal exactly, with One Percent?

We are a fully licensed real estate company that offers full service but at a discount commission. In terms of services and exposure, we are identical to whoever you would like to compare us with. We are on MLS®, all the top internet real estates sites, we place a sign on your property ( if it's allowed ), we show the property, hold open houses, advertise it, handle all the negotiations, plus the conveyancing. There is nothing that you are not getting, except for a high commission!

Q
What do you charge?

Each agent sets their own commission structure, subject to a maximum of 1% for listing services and up to 1% payable to cooperating brokerages. Homes under $500,000 are subject to a minimum charge of $9,950

Q
Are your listings on MLS® and realtor.ca?

Yes, and yes.


Learn more about the One Percent Realty Deal