222 Temple Street Unit# 1, Sicamous

2026-01-14
 

Quick Summary

Location
222 Temple Street Unit# 1, Sicamous, British Columbia V0E2V0
Price
$579,000 CAD
Status:
For Sale
Property Type:
Single Family
Area:
1551 sqft
Bedrooms:
3
Bathrooms:
3
Year of Construction:
2026
Video Link:

MLS®#10372764

Property Description

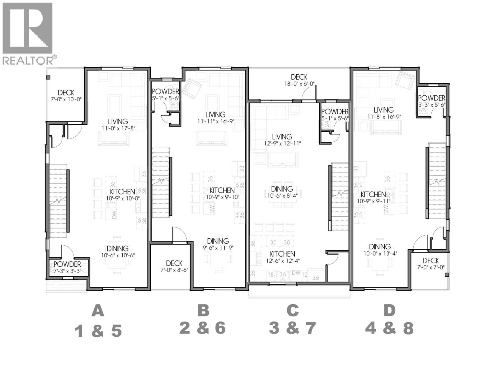
Welcome to #1 at MaraVista in Sicamous. This rare corner unit offers exceptional privacy with only 1 shared wall, making it one of the most desirable locations in the complex. Enjoy 1,582 sq.ft. of modern living plus a large 663 sq.ft. garage w/ 8’ overhead door & 39’ deep x 19.5’ wide —ideal for vehicles, lake toys, bikes, snowmobiles & storage. The open-concept main floor is bright & functional, featuring a stylish kitchen with eating bar, electric fireplace, dining area, powder room, & access to a 7’ x 8.5’ deck for relaxing & entertaining. Upstairs offers 2 spacious bedrooms + den, with both bedrooms featuring private ensuites, plus a full walk-in closet in the primary & convenient upper-floor laundry. Finished with quartz countertops throughout, white wood grained cabinetry, matte black hardware, neutral vinyl plank flooring, & enhanced soundproofing. The exterior includes durable HardiePlank siding, energy-efficient windows, & a high-efficiency mini-split A/C system for year-round comfort. A fully fenced yard adds bonus outdoor space for pets and children. Located in a prime walkable Sicamous location close to downtown, parks, the beach, schools, & everyday amenities. Prewired for fibre optic internet . Only 5% down + $5,000 appliance credit available for first 4 units sold. Low strata fee $356.11/month. Pet restrictions apply. Second of the four season destination only 22 minutes to Salmon Arm, 45 minutes to Revelstoke and 50 Minutes to Vernon. Possession spring 2026. (id:32467)

Property Features

Building

  • Amenities: Clubhouse
  • Architectural Style: Contemporary
  • Construction Style: Attached
  • Cooling Type: Heat Pump
  • Exterior Finish: Other
  • Fireplace: Yes
  • Flooring Type: Vinyl
  • Interior Size: 1551 sqft
  • Building Type: Row / Townhouse
  • Stories: 3
  • Utility Water: Municipal water

Features

  • Feature: Central island, Balcony, One Balcony

Land

  • Land Size: under 1 acre
  • Sewer: Municipal sewage system

Maintenance Fee

  • Maintenance Fee: 356.11

Ownership

  • Type: Strata

Structure

  • Structure: Clubhouse

Information entered by eXp Realty (Sicamous)
Listing information last updated on: 2026-01-14 20:51:39


Book your free home evaluation with a 1% REALTOR® now!


How much could you save in commission selling with One Percent Realty?

Slide to select your home's price:

$500,000

Your One Percent Realty Commission savings

$500,000

Savings calculated using One Percent Realty's posted commission rates compared to another agent charging 7% on the first 100k & 2.5% on the balance + GST. Not all agents charge the same. Savings shown are illustrative only. Actual commission costs depend on the commission structure negotiated with your agent.

One Percent Realty's top FAQs

Q
What is the deal exactly, with One Percent?

We are a fully licensed real estate company that offers full service but at a discount commission. In terms of services and exposure, we are identical to whoever you would like to compare us with. We are on MLS®, all the top internet real estates sites, we place a sign on your property ( if it's allowed ), we show the property, hold open houses, advertise it, handle all the negotiations, plus the conveyancing. There is nothing that you are not getting, except for a high commission!

Q
What do you charge?

Each agent sets their own commission structure, subject to a maximum of 1% for listing services and up to 1% payable to cooperating brokerages. Homes under $500,000 are subject to a minimum charge of $9,950

Q
Are your listings on MLS® and realtor.ca?

Yes, and yes.


Learn more about the One Percent Realty Deal