3147 2nd Ave, PORT ALBERNI

2026-01-14
 

Quick Summary

Location
3147 2nd Ave, PORT ALBERNI, British Columbia V9Y4C4
Price
$499,999 CAD
Status:
For Sale
Property Type:
Other
Year of Construction:
1962
Video Link:

MLS®#1023022

Property Description

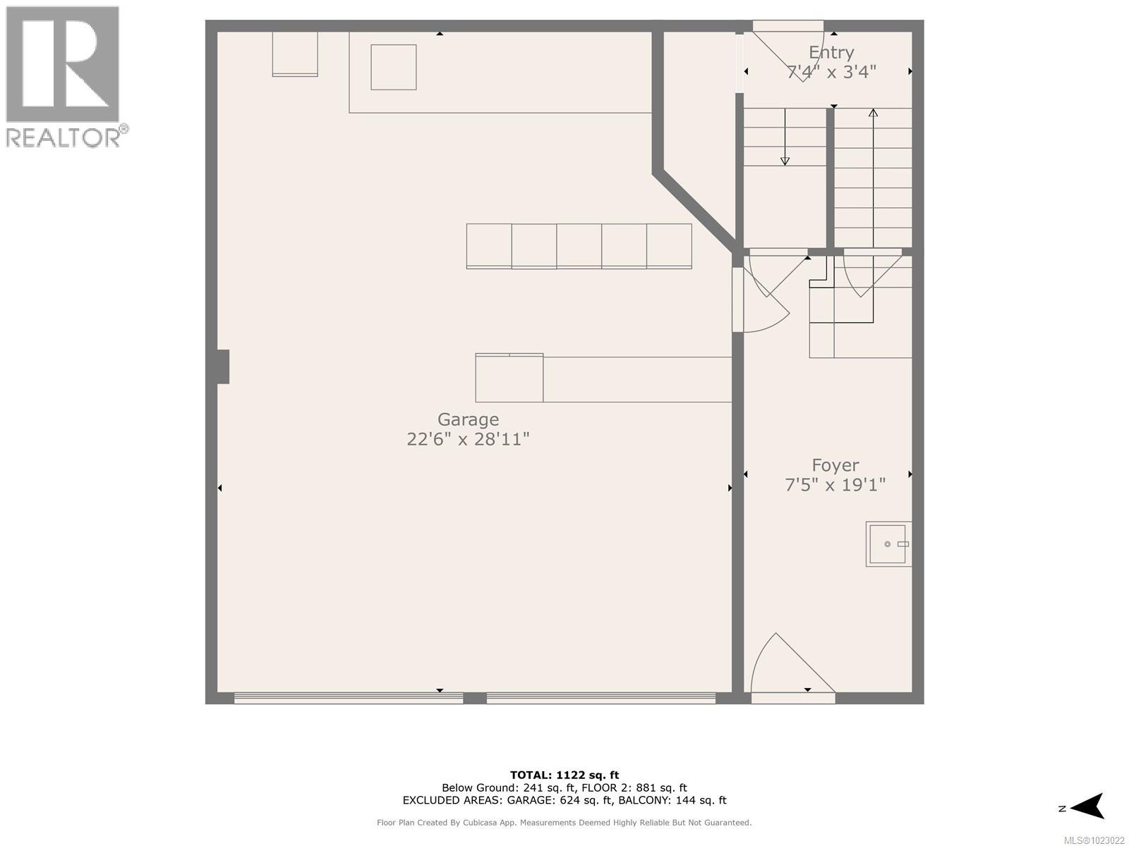
Prime commercial space in central Port Alberni with so much opportunity nestled among thriving residential, commercial, & industrial areas. The versatile C3 zoning allows for a multitude of commercial uses, including retail, storage, and various services. Included on the property is a 1550 sqft building (roof 2019), with gas heat and 2bedroom caretaker suite complete with kitchen, laundry room and a living room that leads out to a deck with gorgeous views of the Alberni Inlet. The entrance features a communal space leading to a garage area with two 10ft garage doors, & a 2pc bathroom on the lower level. Off the back alley, there is a 3-bay garage with plenty of storage and loft areas. With its close proximity to established businesses, rental potential of the 3 spaces and the bustling Harbour Quay nearby, this location promises excellent accessibility. Don’t miss out on the chance to develop a successful enterprise in this location. (id:32467)

Property Features

Building

  • Fireplace: No
  • Building Type: Other

Features

  • Feature: Central location, Other, Rectangular, Marine Oriented

Land

  • Land Size: 4125 sqft

Ownership

  • Type: Freehold

Zoning

  • Description: C3

Information entered by Real Broker
Listing information last updated on: 2026-01-14 16:42:12


Book your free home evaluation with a 1% REALTOR® now!


How much could you save in commission selling with One Percent Realty?

Slide to select your home's price:

$500,000

Your One Percent Realty Commission savings

$500,000

Savings calculated using One Percent Realty's posted commission rates compared to another agent charging 7% on the first 100k & 2.5% on the balance + GST. Not all agents charge the same. Savings shown are illustrative only. Actual commission costs depend on the commission structure negotiated with your agent.

Send a Message


One Percent Realty's top FAQs

Q
What is the deal exactly, with One Percent?

We are a fully licensed real estate company that offers full service but at a discount commission. In terms of services and exposure, we are identical to whoever you would like to compare us with. We are on MLS®, all the top internet real estates sites, we place a sign on your property ( if it's allowed ), we show the property, hold open houses, advertise it, handle all the negotiations, plus the conveyancing. There is nothing that you are not getting, except for a high commission!

Q
What do you charge?

Each agent sets their own commission structure, subject to a maximum of 1% for listing services and up to 1% payable to cooperating brokerages. Homes under $500,000 are subject to a minimum charge of $9,950

Q
Are your listings on MLS® and realtor.ca?

Yes, and yes.


Learn more about the One Percent Realty Deal

 

BRAD VESTAD REALTOR®

Phone:
250-918-4744
Email:
bradvestad@gmail.com
Support Area:
Port Alberni, Sproat Lake, Alberni Valley, Qualicum, Parksville

Brad is a Medallion Award winning Realtor with over 15 years with One Percent Realty! Proudly servin ...

Full Profile