2716 EDGEWATER CRESCENT, Prince George

2025-12-18
 

Quick Summary

Location
2716 EDGEWATER CRESCENT, Prince George, British Columbia V2K0B9
Price
$679,900 CAD
Status:
For Sale
Property Type:
Single Family
Area:
2161 sqft
Bedrooms:
1
Year of Construction:
2026

MLS®#R3074474

Property Description

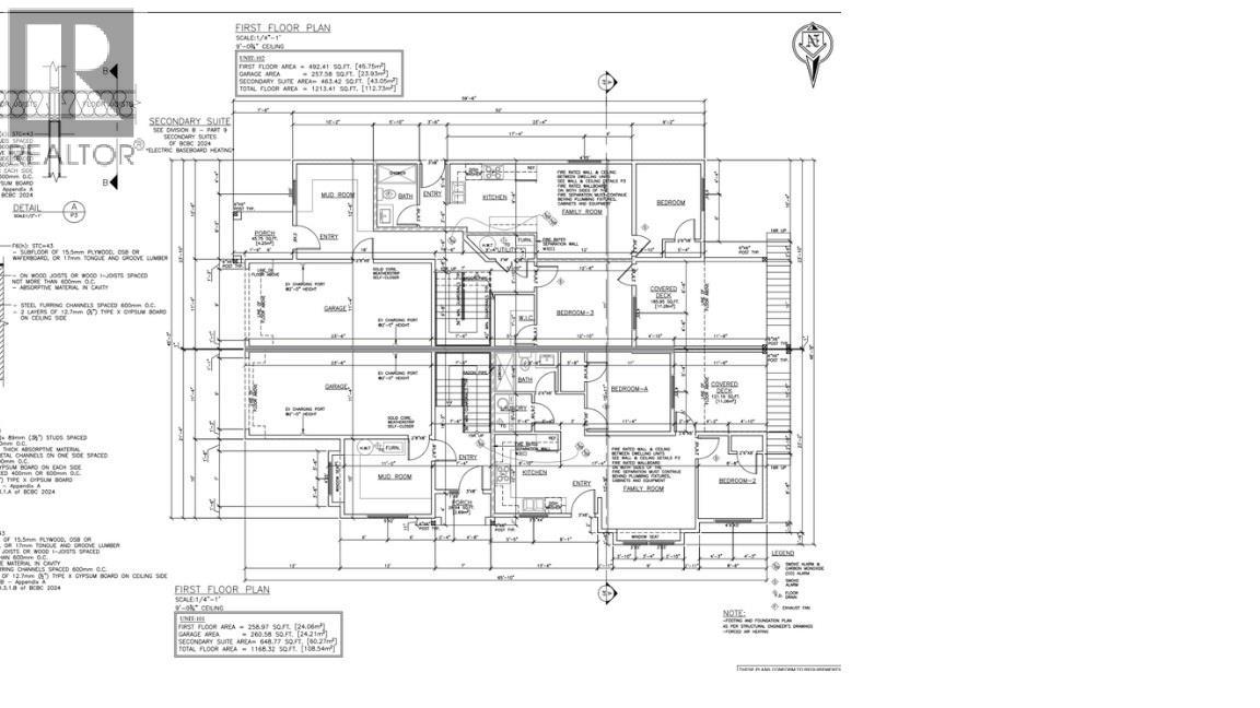
Located in The Banks subdivision, this brand new half duplex showcases a bright, open-concept layout with a stylish West Coast contemporary design. The main living area is thoughtfully designed for both everyday living and entertaining, featuring abundant natural light and modern finishes throughout. The home includes a 1 bedroom suite, offering flexibility for guests or additional income. Ideally situated within walking distance to the river, schools, and nearby recreation. Finally, the backyard is fully fenced and features a lovely back deck. Truly a rare find! (id:32467)

Property Features

Building

  • Architectural Style: Basement entry
  • Basement Development: Finished
  • Basement Type: N/A (Finished)
  • Construction Style: Attached
  • Exterior Finish: Composite Siding
  • Fireplace: No
  • Interior Size: 2161 sqft
  • Building Type: Duplex
  • Stories: 1
  • Utility Water: Municipal water

Land

  • Land Size: 3657 sqft

Ownership

  • Type: Freehold

Information entered by Royal LePage Aspire Realty
Listing information last updated on: 2026-02-10 14:44:53


Book your free home evaluation with a 1% REALTOR® now!


How much could you save in commission selling with One Percent Realty?

Slide to select your home's price:

$500,000

Your One Percent Realty Commission savings

$500,000

Savings calculated using One Percent Realty's posted commission rates compared to another agent charging 7% on the first 100k & 2.5% on the balance + GST. Not all agents charge the same. Savings shown are illustrative only. Actual commission costs depend on the commission structure negotiated with your agent.

One Percent Realty's top FAQs

Q
What is the deal exactly, with One Percent?

We are a fully licensed real estate company that offers full service but at a discount commission. In terms of services and exposure, we are identical to whoever you would like to compare us with. We are on MLS®, all the top internet real estates sites, we place a sign on your property ( if it's allowed ), we show the property, hold open houses, advertise it, handle all the negotiations, plus the conveyancing. There is nothing that you are not getting, except for a high commission!

Q
What do you charge?

Each agent sets their own commission structure, subject to a maximum of 1% for listing services and up to 1% payable to cooperating brokerages. Homes under $500,000 are subject to a minimum charge of $9,950

Q
Are your listings on MLS® and realtor.ca?

Yes, and yes.


Learn more about the One Percent Realty Deal