5 23141 72 AVENUE, Langley

2025-12-18
 

Quick Summary

Location
5 23141 72 AVENUE, Langley, British Columbia V2Y2R9
Price
$159,900 CAD
Status:
For Sale
Property Type:
Single Family
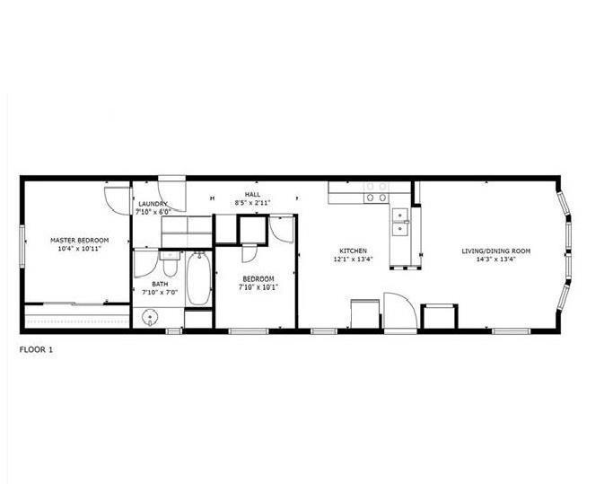
Area:
728 sqft
Bedrooms:
2
Bathrooms:
1

MLS®#R3074314

Property Description

Livingstone Park (55+) One CAT permitted. Enjoy country living with excellent access to Langley & #1 Hwy. Affordable pad rent at $527.45. Over $13,000 in recent upgrades including BC Electrical Safety Certificate, Silver label, permitted back stairs, skirting repair, deck work, new hot water tank & more. Listed below assessment value. Solid 14' wide home on concrete pad, ideally positioned on a corner lot with East, South, & West exposure. Updates include a newer microwave hood vent, two remote-controlled mini-split A/C heat pumps, and a new bottom-freezer fridge (May 2025). Two storage sheds included (one new ShelterLogic shed April 2025) Totally rebuilt roof with torch on surface August 2016, 15 Yr Warranty. RV storage may be available through park at an additional cost. NO FLOOD ZONE! (id:32467)

Property Features

Building

  • Amenities: Air Conditioning, Laundry - In Suite, Storage - Locker
  • Appliances: Washer, Dryer, Refrigerator, Stove, Dishwasher, Microwave, Storage Shed
  • Architectural Style: Other
  • Basement Development: Finished
  • Basement Features: Unknown
  • Basement Type: Crawl space (Finished)
  • Construction Style: Detached
  • Cooling Type: Air Conditioned
  • Fireplace: No
  • Interior Size: 728 sqft
  • Building Type: Manufactured Home
  • Utility Water: Municipal water

Land

  • Sewer: Storm sewer

Ownership

  • Type: Leasehold

Storage Type

  • Storage Type: Storage

Information entered by One Percent Realty Ltd.
Listing information last updated on: 2026-01-07 19:23:16

Send a Message


One Percent Realty's top FAQs

Q
What is the deal exactly, with One Percent?

We are a fully licensed real estate company that offers full service but at a discount commission. In terms of services and exposure, we are identical to whoever you would like to compare us with. We are on MLS®, all the top internet real estates sites, we place a sign on your property ( if it's allowed ), we show the property, hold open houses, advertise it, handle all the negotiations, plus the conveyancing. There is nothing that you are not getting, except for a high commission!

Q
What do you charge?

We charge a total of $9,950 for properties under $900,000. For properties over $900,000 we charge 1% of the sale price plus $950. Plus Applicable taxes, of course. It is as simple as that.

Q
Are your listings on MLS® and realtor.ca?

Yes, and yes.


Learn more about the One Percent Realty Deal

 

DONNA FULLER REALTOR® - Associate Broker

Phone:
604-683-1393
Email:
donnafullerREALTOR@gmail.com
Support Area:
KELOWNA, KELOWNA DOWNTOWN, KELOWNA SOUTH, KELOWNA NORTH, SOUTH EAST KELOWNA, LOWER MISSION, UPPER MISSION, KETTLE VALLEY, CRAWFORD ESTATES, SPRINGFIELD SPALL, DILWORTH MOUNTAIN, WILDEN, RUTLAND, JOE RICH, BLACK MOUNTAIN, UNIVERSITY DISTRICT, LAKE COUNTRY, WINFIELD, ELLISON

Ready to Sell? List Smarter. Save THOUSANDS on MLS!Born in Vancouver and a long time Kelowna residen ...

Full Profile