7114 Morgan Lane, Radium Hot Springs

2025-12-12
 

Quick Summary

Location
7114 Morgan Lane, Radium Hot Springs, British Columbia V0A1M0
Price
$749,900 CAD
Status:
For Sale
Property Type:
Single Family
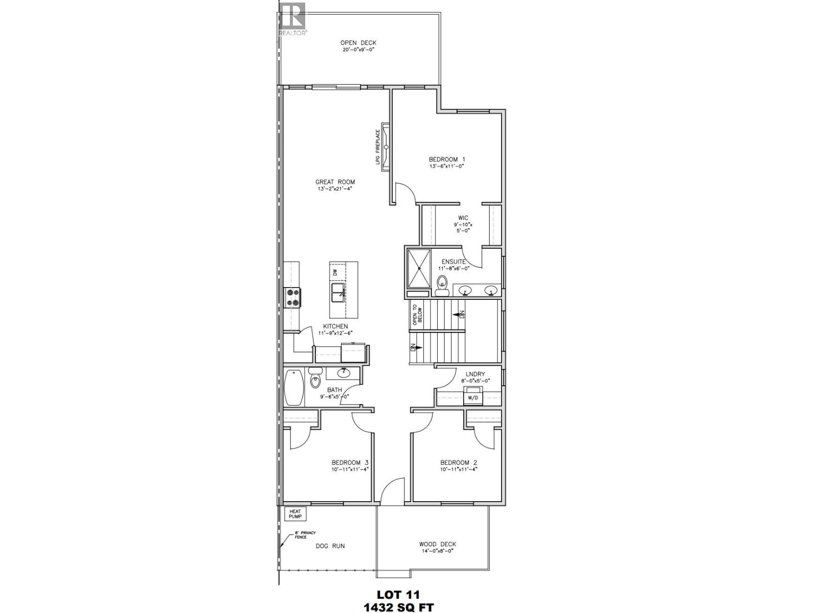
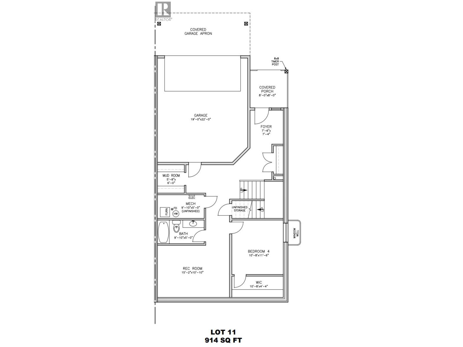
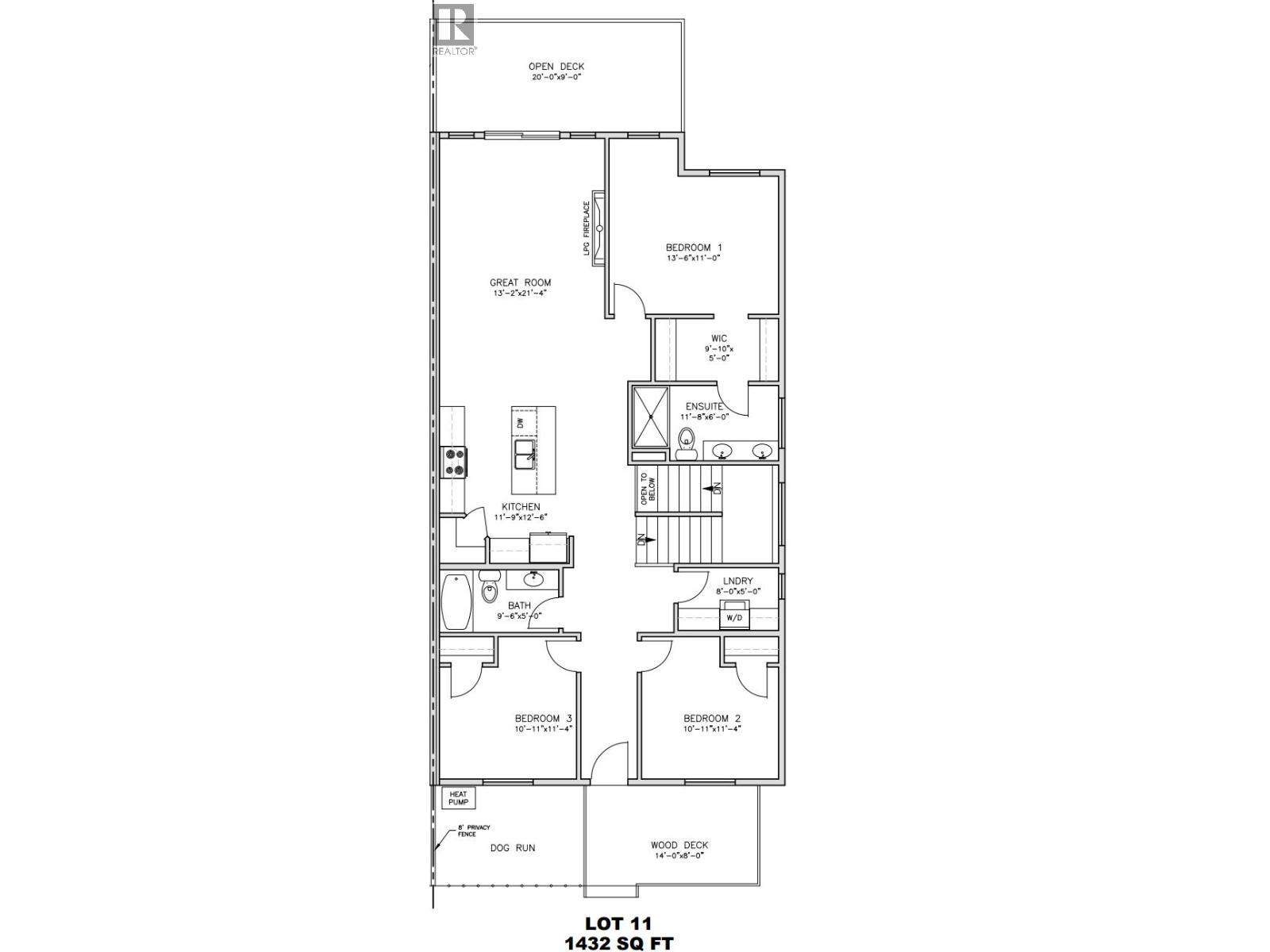
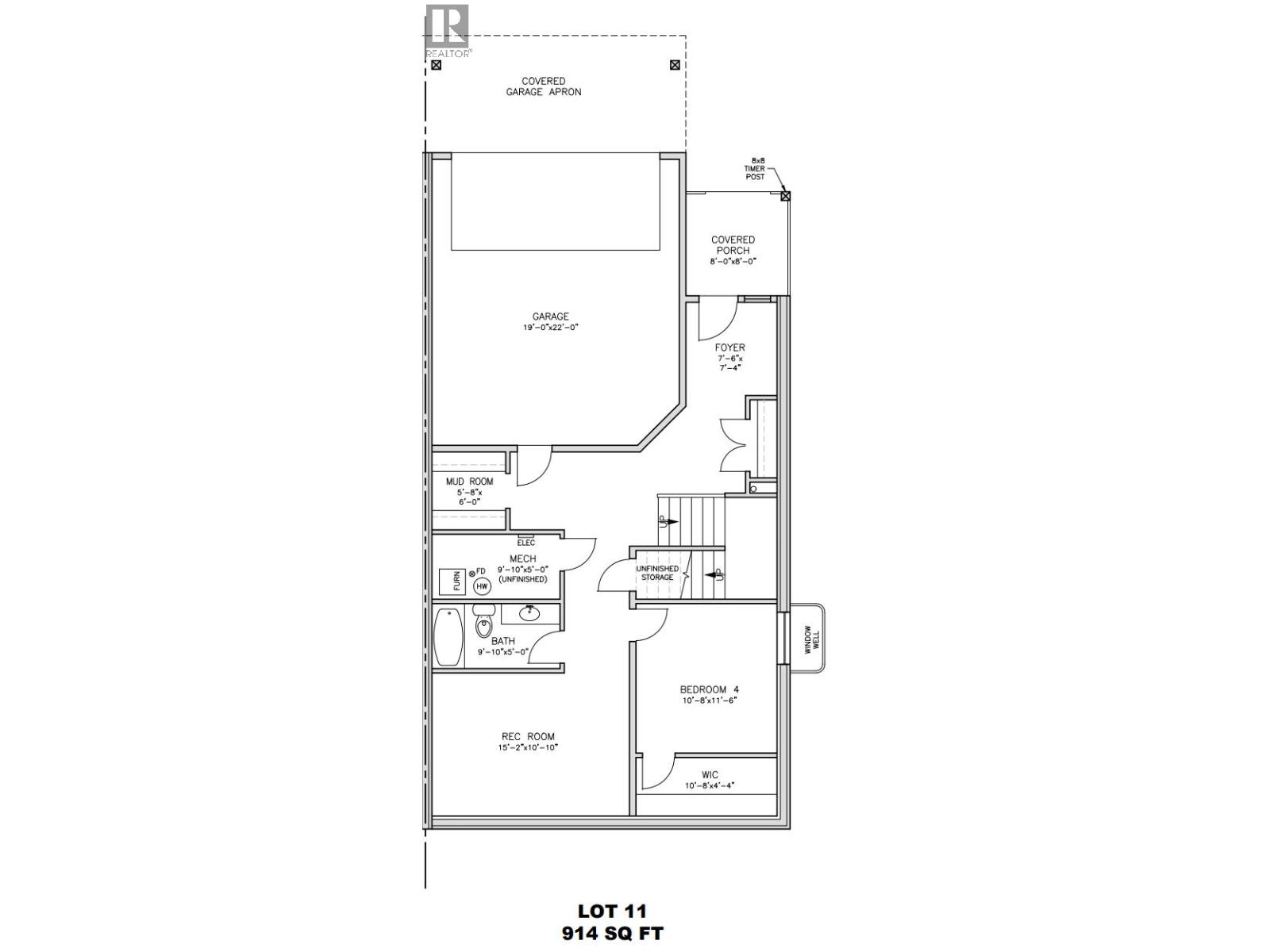
Area:
2346 sqft
Bedrooms:
4
Bathrooms:
3
Garages:
2
Year of Construction:
2025
Video Link:

MLS®#10371096

Property Description

7114 Morgan Lane is a brand new home located in Elk Park Ranch on the north end of Radium Hot Springs. The price includes 5% GST and offers fee-simple ownership, over 2,300 sq. ft. of living space with 4 bedrooms/3 full bathrooms. The home suits families, downsizers, or recreation buyers seeking spacious and modern living. Key features include, 9 foot ceilings on the main level, black aluminum clad Lux Windows, James Hardie cement siding, double-car garage (fits a F150 truck) which is insulated, drywalled + painted, ICF CONCRETE& PARTY WALL for enhanced soundproofing and energy efficiency, kitchen cabinets in white chantilly lace shaker doors, wood grain island + white quartz countertops, with modern white tile backsplash, Samsung stainless steel appliance package, black hardware on doors and plumbing fixtures for a contemporary aesthetic. The convenient, main floor laundry room with an LG washer/dryer, heated tile floors in the ensuite, Carrier electric forced-air furnace with cold climate heat pump, Continental propane gas fireplace with modern tile finishing in the living room, front west-facing pressure treated deck with glass railings with amazing views of the Purcell Mountains and a rear pressure-treated deck overlooking green space and offering unobstructed Rocky Mountain views. The craftsmanship and finishes throughout the home inside and out are sure to impress even the most discerning buyer. Landscaping included in price to be completed in spring 2026. (id:32467)

Property Features

Ammenities Near By

  • Ammenities Near By: Recreation, Shopping, Ski area

Building

  • Appliances: Refrigerator, Dishwasher, Dryer, Range - Electric, Microwave, Washer
  • Construction Style: Semi-detached
  • Cooling Type: Heat Pump
  • Exterior Finish: Other
  • Fireplace: Yes
  • Flooring Type: Carpeted, Tile, Vinyl
  • Interior Size: 2346 sqft
  • Building Type: Duplex
  • Stories: 2
  • Utility Water: Municipal water

Features

  • Feature: Two Balconies

Land

  • Land Size: 0.14 ac|under 1 acre
  • Sewer: Municipal sewage system

Ownership

  • Type: Freehold

Information entered by MaxWell Rockies Realty
Listing information last updated on: 2026-04-18 22:20:40


Book your free home evaluation with a 1% REALTOR® now!


How much could you save in commission selling with One Percent Realty?

Slide to select your home's price:

$500,000

Your One Percent Realty Commission savings

$500,000

Savings calculated using One Percent Realty's posted commission rates compared to another agent charging 7% on the first 100k & 2.5% on the balance + GST. Not all agents charge the same. Savings shown are illustrative only. Actual commission costs depend on the commission structure negotiated with your agent.

One Percent Realty's top FAQs

Q
What is the deal exactly, with One Percent?

We are a fully licensed real estate company that offers full service but at a discount commission. In terms of services and exposure, we are identical to whoever you would like to compare us with. We are on MLS®, all the top internet real estates sites, we place a sign on your property ( if it's allowed ), we show the property, hold open houses, advertise it, handle all the negotiations, plus the conveyancing. There is nothing that you are not getting, except for a high commission!

Q
What do you charge?

Each agent sets their own commission structure, subject to a maximum of 1% for listing services and up to 1% payable to cooperating brokerages. Homes under $500,000 are subject to a minimum charge of $9,950

Q
Are your listings on MLS® and realtor.ca?

Yes, and yes.


Learn more about the One Percent Realty Deal