5705 Heritage Drive Unit# SL 5, Vernon

2025-12-01
 

Quick Summary

Location
5705 Heritage Drive Unit# SL 5, Vernon, British Columbia V1H1B1
Price
$679,000 CAD
Status:
For Sale
Property Type:
Single Family
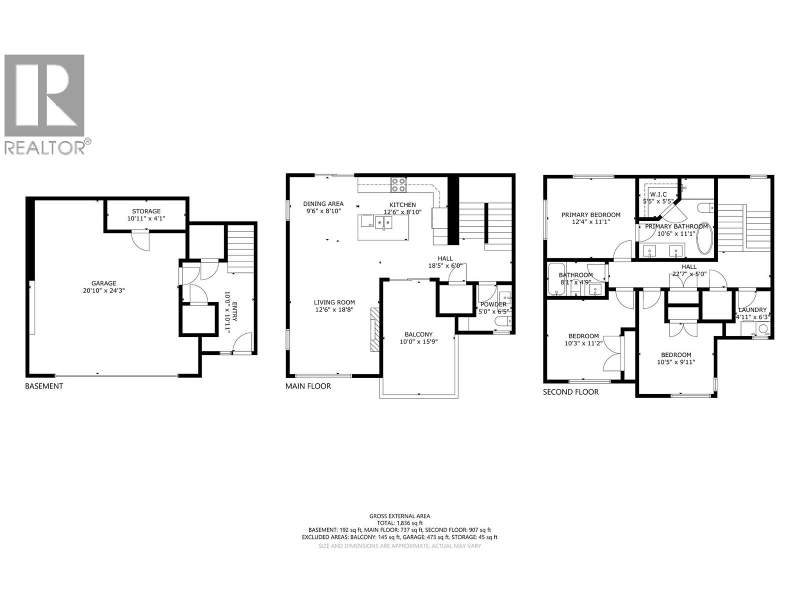
Area:
1857 sqft
Bedrooms:
3
Bathrooms:
3
Year of Construction:
2025
Video Link:

MLS®#10359081

Property Description

Discover an exclusive collection of 28 luxury half-duplex townhomes, privately nestled on a tranquil cul-de-sac. Each thoughtfully designed residence combines sophisticated style with everyday convenience, featuring spacious bedrooms, a five-piece primary ensuite, and an open-concept living area that seamlessly extends to large decks or patios. Every home showcases premium finishes, including veined quartz countertops in both the kitchen and bathrooms, durable fibre-cement exterior siding, and sleek stainless steel kitchen appliances. Enjoy the comfort of freestanding soaker tubs, the ambiance of wall-mounted electric fireplaces, and the practicality of a spacious double garage. For added convenience, each home is roughed-in for a residential elevator. (id:32467)

Property Features

Ammenities Near By

  • Ammenities Near By: Public Transit, Park, Recreation, Schools, Shopping

Building

  • Appliances: Range, Refrigerator, Dishwasher, Dryer, Microwave, Washer
  • Basement Type: Partial
  • Cooling Type: Central air conditioning
  • Exterior Finish: Other
  • Fireplace: Yes
  • Flooring Type: Vinyl
  • Interior Size: 1857 sqft
  • Building Type: Duplex
  • Stories: 3
  • Utility Water: Municipal water

Features

  • Feature: Central island

Land

  • Land Size: under 1 acre
  • Sewer: Municipal sewage system

Maintenance Fee

  • Maintenance Fee: 250.00

Ownership

  • Type: Strata

Information entered by Coldwell Banker Executives Realty
Listing information last updated on: 2026-01-10 23:20:13


Book your free home evaluation with a 1% REALTOR® now!


How much could you save in commission selling with One Percent Realty?

Slide to select your home's price:

$500,000

Your One Percent Realty Commission savings

$500,000

Savings calculated using One Percent Realty's posted commission rates compared to another agent charging 7% on the first 100k & 2.5% on the balance + GST. Not all agents charge the same.

One Percent Realty's top FAQs

Q
What is the deal exactly, with One Percent?

We are a fully licensed real estate company that offers full service but at a discount commission. In terms of services and exposure, we are identical to whoever you would like to compare us with. We are on MLS®, all the top internet real estates sites, we place a sign on your property ( if it's allowed ), we show the property, hold open houses, advertise it, handle all the negotiations, plus the conveyancing. There is nothing that you are not getting, except for a high commission!

Q
What do you charge?

We charge a total of $9,950 for properties under $900,000. For properties over $900,000 we charge 1% of the sale price plus $950. Plus Applicable taxes, of course. It is as simple as that.

Q
Are your listings on MLS® and realtor.ca?

Yes, and yes.


Learn more about the One Percent Realty Deal