9807A Silver Star Road Lot# 1, Silver Star

2025-11-05
 

Quick Summary

Location
9807A Silver Star Road Lot# 1, Silver Star, British Columbia V1B3M1
Price
$677,000 CAD
Status:
For Sale
Property Type:
Single Family
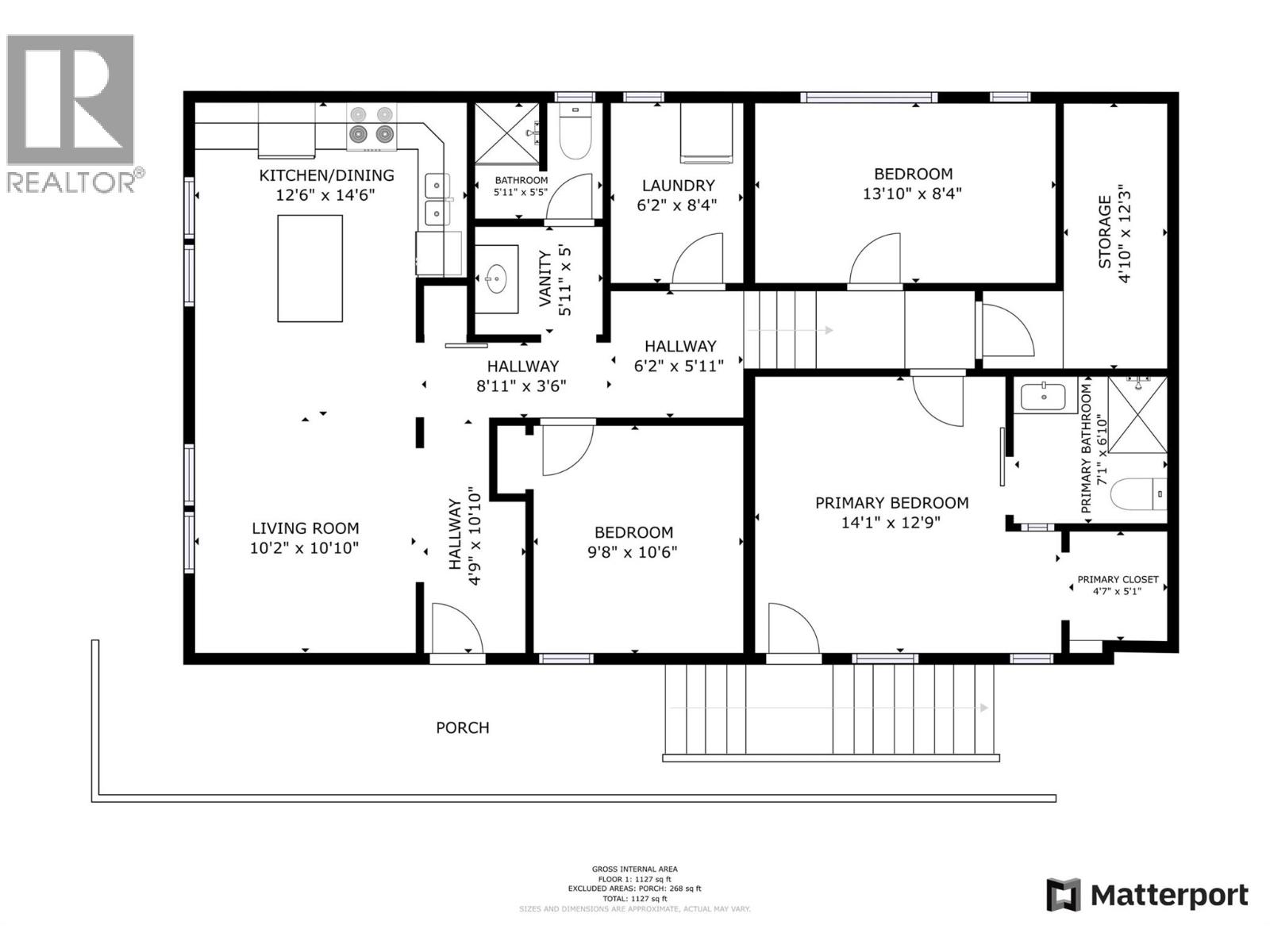
Area:
1127 sqft
Bedrooms:
3
Bathrooms:
2
Year of Construction:
1989
Video Link:

MLS®#10366070

Property Description

Welcome to Your Ultimate Mountain Retreat! Nestled off the skiway at SilverStar Mountain Resort, this 3-bed, 2-bath chalet offers unbeatable ski-in, ski-out access and stunning south-facing views of Tube Town and the surrounding Mountains. Whether you’re looking for a personal getaway or a versatile investment property, this turn-key home delivers on all fronts. Located at one of BC’s premier ski resorts, you’ll enjoy year-round adventure—from skiing, snowboarding, and a vibrant alpine village in winter to mountain biking and trails in the summer. Amenities include restaurants, cafes, shops, a spa, a skating pond, a tubing park, and world-class trails. The mountain comes alive throughout the year with live entertainment, adding to the vibrant atmosphere in every season. Easily accessible from Spencer Lane, recent updates enhance the property’s appeal, including new furniture, a deck extension with a staircase, a freshly painted exterior, and an electrical upgrade for the included hot tub. This chalet’s layout offers incredible flexibility, functioning as two separate units with private entrances, perfect for rental income or personal use. With a strong rental history and bookings already in place, new owners can enjoy a seamless return on investment while also escaping to their own alpine paradise. It's so turn-key, all that’s left to decide is which ski run to hit first. NEW ROOF, NEW HOT WATER TANK (id:32467)

Property Features

Ammenities Near By

  • Ammenities Near By: Recreation, Shopping, Ski area

Building

  • Architectural Style: Split level entry
  • Cooling Type: See Remarks
  • Exterior Finish: Vinyl siding
  • Fireplace: Yes
  • Flooring Type: Carpeted, Ceramic Tile, Hardwood, Vinyl
  • Interior Size: 1127 sqft
  • Building Type: Duplex
  • Stories: 1
  • Utility Water: Municipal water

Features

  • Feature: Treed, One Balcony

Land

  • Land Size: 0.2 ac|under 1 acre
  • Sewer: Municipal sewage system

Maintenance Fee

  • Maintenance Fee: 0.00

Ownership

  • Type: Strata

Information entered by RE/MAX Vernon
Listing information last updated on: 2026-02-18 00:21:02


Book your free home evaluation with a 1% REALTOR® now!


How much could you save in commission selling with One Percent Realty?

Slide to select your home's price:

$500,000

Your One Percent Realty Commission savings

$500,000

Savings calculated using One Percent Realty's posted commission rates compared to another agent charging 7% on the first 100k & 2.5% on the balance + GST. Not all agents charge the same. Savings shown are illustrative only. Actual commission costs depend on the commission structure negotiated with your agent.

One Percent Realty's top FAQs

Q
What is the deal exactly, with One Percent?

We are a fully licensed real estate company that offers full service but at a discount commission. In terms of services and exposure, we are identical to whoever you would like to compare us with. We are on MLS®, all the top internet real estates sites, we place a sign on your property ( if it's allowed ), we show the property, hold open houses, advertise it, handle all the negotiations, plus the conveyancing. There is nothing that you are not getting, except for a high commission!

Q
What do you charge?

Each agent sets their own commission structure, subject to a maximum of 1% for listing services and up to 1% payable to cooperating brokerages. Homes under $500,000 are subject to a minimum charge of $9,950

Q
Are your listings on MLS® and realtor.ca?

Yes, and yes.


Learn more about the One Percent Realty Deal