3732 Toba Road Unit# 2, Castlegar

2025-10-29
 

Quick Summary

Location
3732 Toba Road Unit# 2, Castlegar, British Columbia V1N4Y3
Price
$499,000 CAD
Status:
For Sale
Property Type:
Single Family
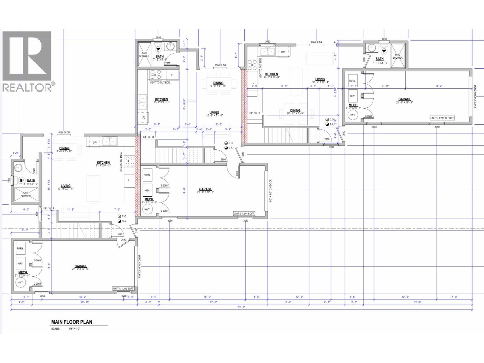
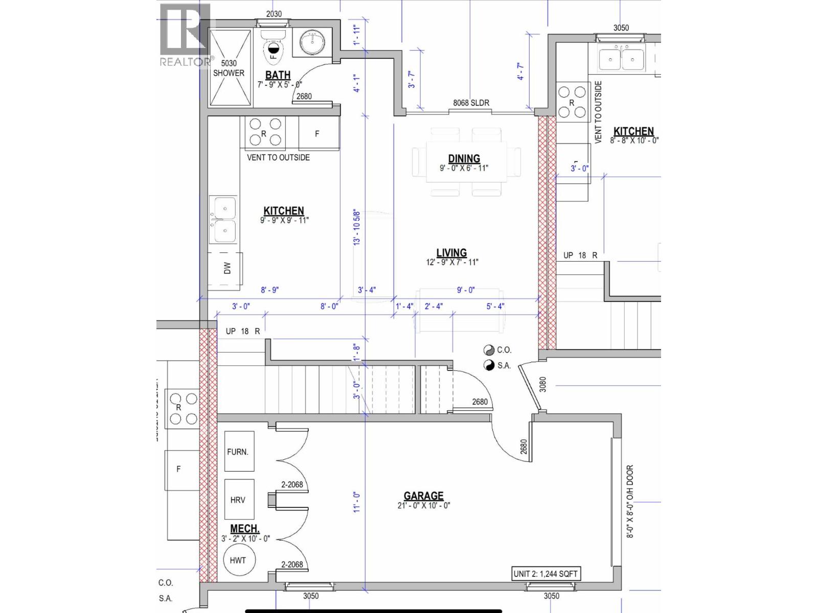
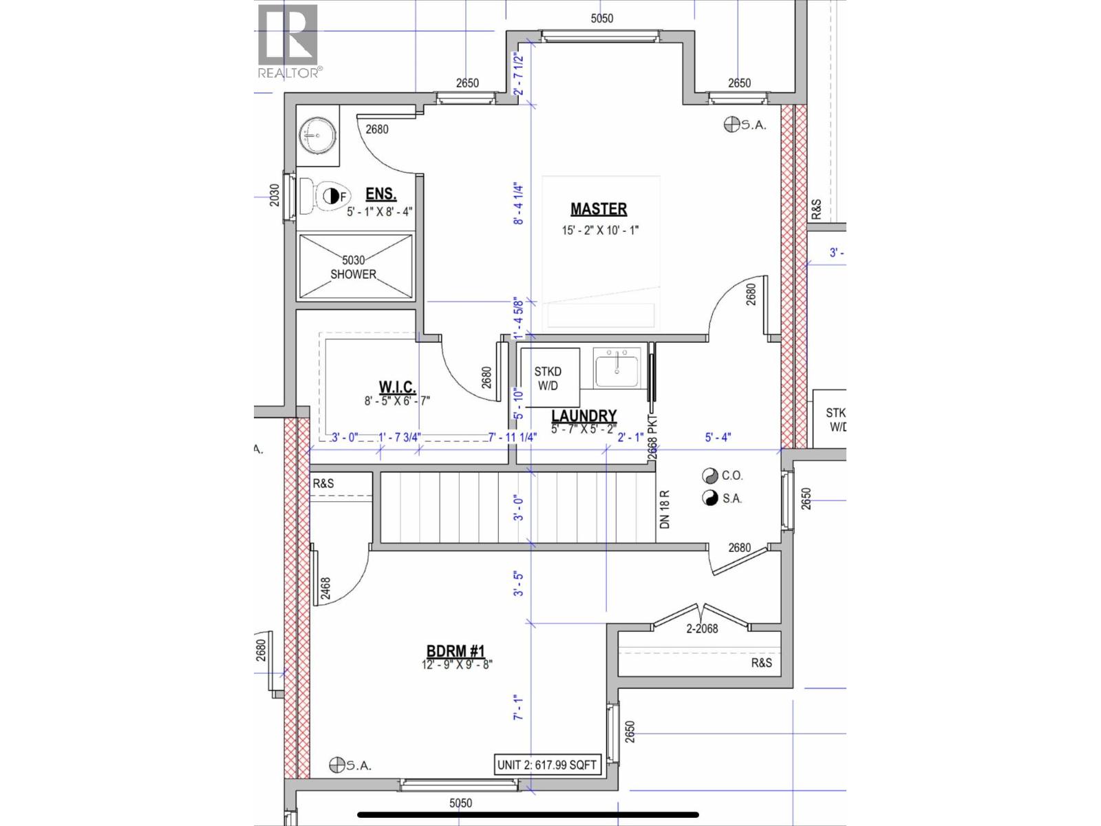
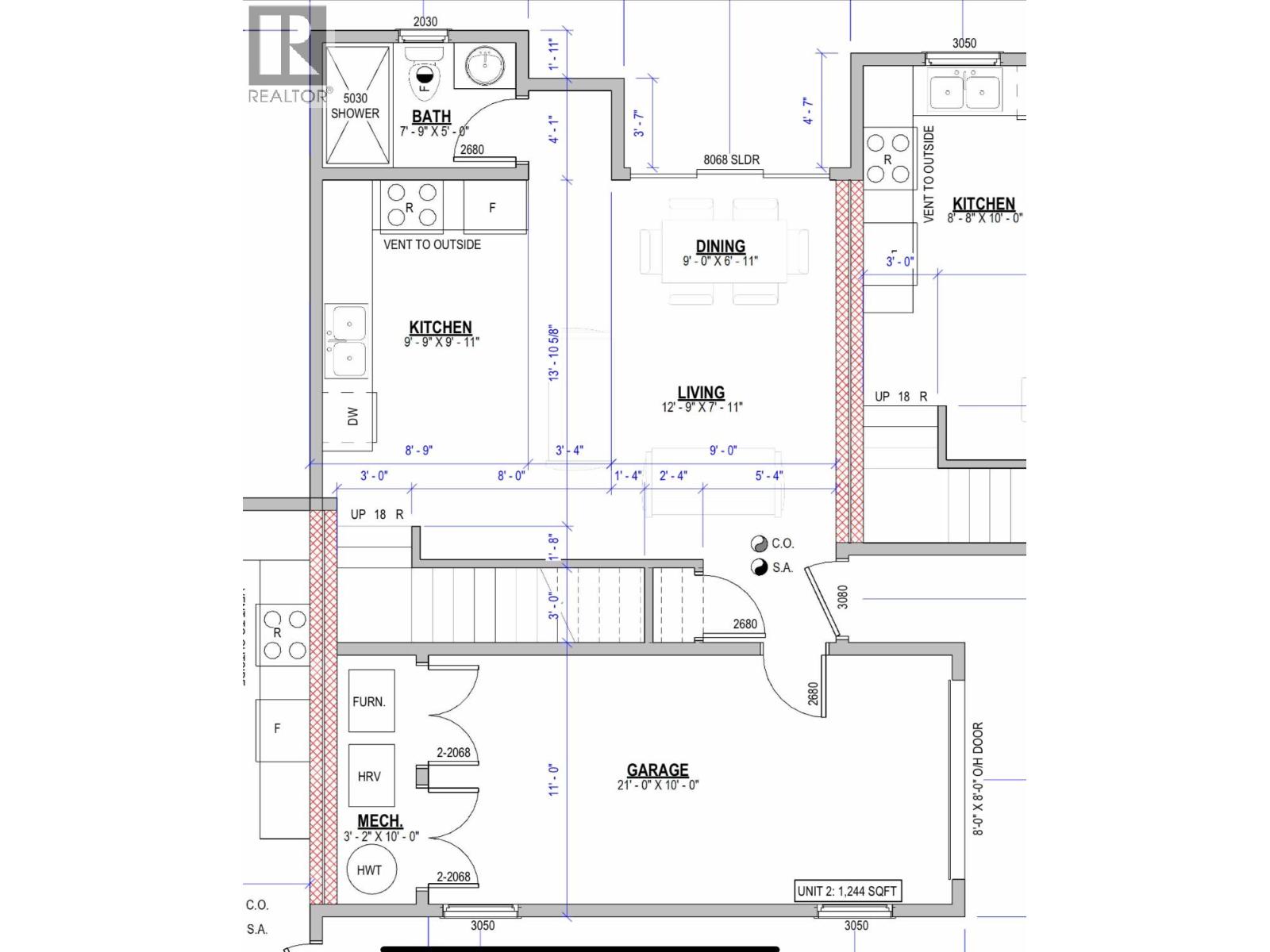
Area:
1244 sqft
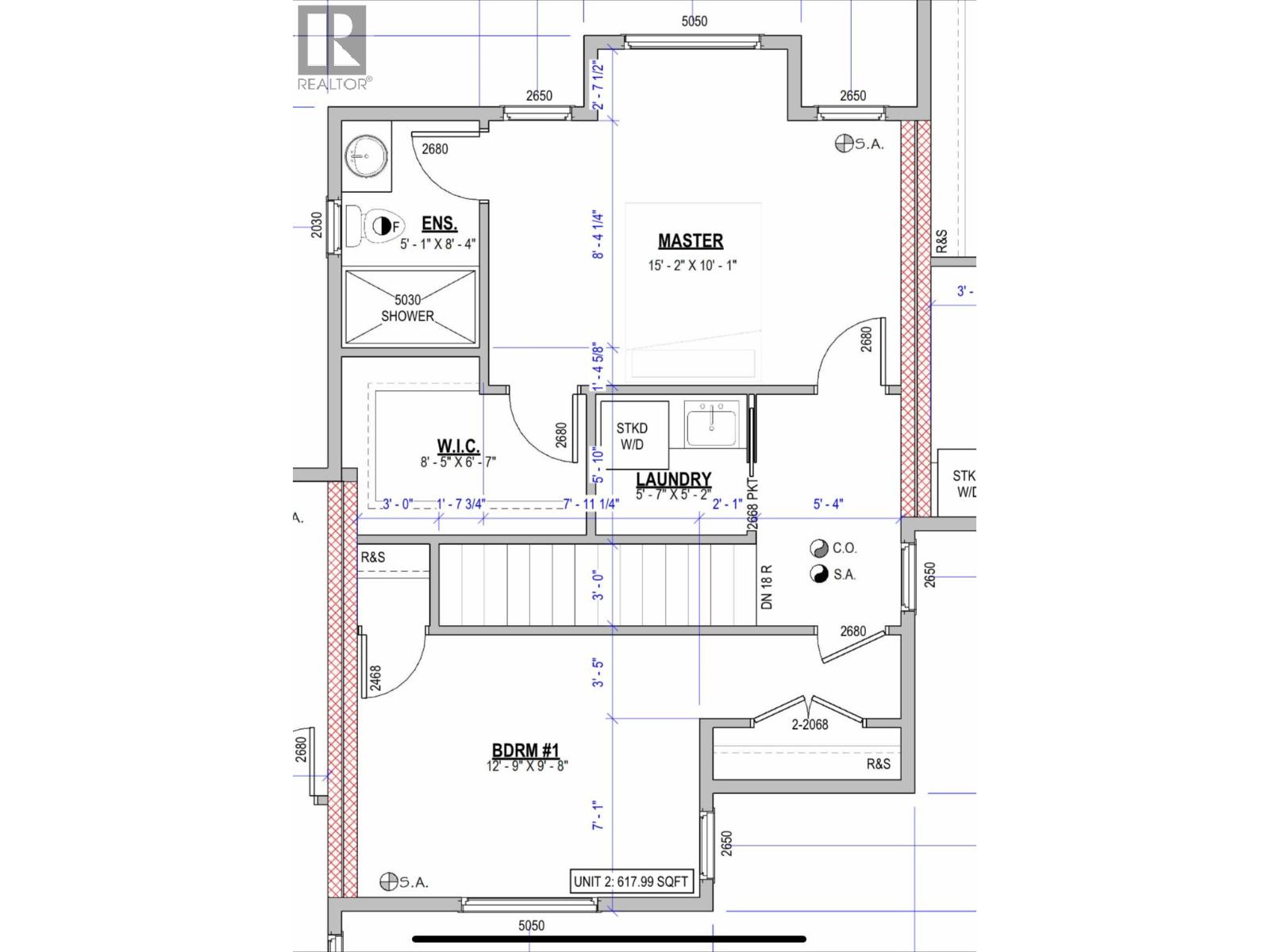
Bedrooms:
2
Bathrooms:
2
Garages:
2
Year of Construction:
2025

MLS®#10366745

Property Description

Luxury Modern Living Meets Nature! Discover 3 stunning brand-new units to choose from in this beautifully designed modern triplex. Each home offers 2 spacious bedrooms and 2 bathrooms, thoughtfully designed with high-end finishes throughout. The primary suite features a generous walk-in closet, and a stylish ensuite. Enjoy the bright, open concept living space with over height ceilings, recessed lighting, and large windows that fill the home with natural light. Additional highlights include: EV charger, 5 appliances included, electric garage door opener, blinds and window screens, BBQ gas connection, roughed in central vac. Each unit comes with a single car garage plus additional driveway parking. Experience luxury, comfort, and the beauty of nature, all in one exceptional new home! Estimated completion for 2026 (id:32467)

Property Features

Building

  • Construction Style: Attached
  • Cooling Type: Central air conditioning
  • Fireplace: No
  • Interior Size: 1244 sqft
  • Building Type: Triplex
  • Stories: 2
  • Utility Water: Municipal water

Land

  • Land Size: under 1 acre
  • Sewer: Municipal sewage system

Ownership

  • Type: Freehold

Information entered by RE/MAX All Pro Realty
Listing information last updated on: 2026-04-27 20:32:27


Book your free home evaluation with a 1% REALTOR® now!


How much could you save in commission selling with One Percent Realty?

Slide to select your home's price:

$500,000

Your One Percent Realty Commission savings

$500,000

Savings calculated using One Percent Realty's posted commission rates compared to another agent charging 7% on the first 100k & 2.5% on the balance + GST. Not all agents charge the same. Savings shown are illustrative only. Actual commission costs depend on the commission structure negotiated with your agent.

One Percent Realty's top FAQs

Q
What is the deal exactly, with One Percent?

We are a fully licensed real estate company that offers full service but at a discount commission. In terms of services and exposure, we are identical to whoever you would like to compare us with. We are on MLS®, all the top internet real estates sites, we place a sign on your property ( if it's allowed ), we show the property, hold open houses, advertise it, handle all the negotiations, plus the conveyancing. There is nothing that you are not getting, except for a high commission!

Q
What do you charge?

Each agent sets their own commission structure, subject to a maximum of 1% for listing services and up to 1% payable to cooperating brokerages. Homes under $500,000 are subject to a minimum charge of $9,950

Q
Are your listings on MLS® and realtor.ca?

Yes, and yes.


Learn more about the One Percent Realty Deal