12828 GILDEN ROAD, Madeira Park

2025-10-01
 

Quick Summary

Location
12828 GILDEN ROAD, Madeira Park, British Columbia V0N2H1
Price
$1,795,000 CAD
Status:
For Sale
Property Type:
Single Family
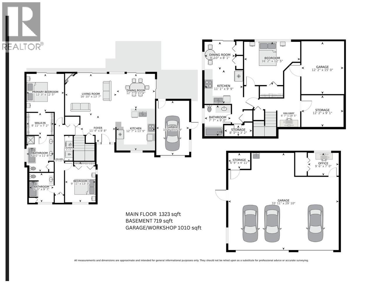
Area:
2042 sqft
Bedrooms:
3
Bathrooms:
3
Garages:
10
Year of Construction:
1987

MLS®#R3053962

Property Description

WOW! The perfect waterfront retreat! This low-bank waterfront rancher with a walkout basement sits on a 19,000+ sq. ft. lot with a private dock and boathouse. The main level offers two bedrooms, an open living & dining area with new windows to capture stunning views, and a modern kitchen with Bosch & Fisher Paykel appliances, updated cabinets, flooring, and more. Step onto the covered sun porch or expansive back deck to enjoy the serene setting. The walkout basement features a summer kitchen, dining, 3rd bedroom, bath, and plenty of storage. Plus, an impressive 1,000+ sq. ft. workshop/3-car garage with 200-amp service. Updates include a metal roof, A/C, heat pump, new propane tanks, new h/w tank and 2019 septic. A must-see! 20 YEAR DOCK TENURE Expires March 2046 (id:32467)

Property Features

Ammenities Near By

  • Ammenities Near By: Marina, Shopping

Building

  • Amenities: Laundry - In Suite
  • Appliances: All
  • Architectural Style: Bungalow
  • Basement Development: Unknown
  • Basement Features: Unknown
  • Basement Type: Partial (Unknown)
  • Construction Style: Detached
  • Cooling Type: Air Conditioned
  • Fireplace: Yes
  • Interior Size: 2042 sqft
  • Building Type: House
  • Stories: 1

Features

  • Feature: Private setting

Land

  • Land Size: 19920 sqft

Ownership

  • Type: Freehold

Storage Type

  • Storage Type: Storage Shed

Structure

  • Structure: Workshop

Information entered by Coldwell Banker Executives Realty
Listing information last updated on: 2026-03-31 22:00:56


Book your free home evaluation with a 1% REALTOR® now!


How much could you save in commission selling with One Percent Realty?

Slide to select your home's price:

$500,000

Your One Percent Realty Commission savings

$500,000

Savings calculated using One Percent Realty's posted commission rates compared to another agent charging 7% on the first 100k & 2.5% on the balance + GST. Not all agents charge the same. Savings shown are illustrative only. Actual commission costs depend on the commission structure negotiated with your agent.

One Percent Realty's top FAQs

Q
What is the deal exactly, with One Percent?

We are a fully licensed real estate company that offers full service but at a discount commission. In terms of services and exposure, we are identical to whoever you would like to compare us with. We are on MLS®, all the top internet real estates sites, we place a sign on your property ( if it's allowed ), we show the property, hold open houses, advertise it, handle all the negotiations, plus the conveyancing. There is nothing that you are not getting, except for a high commission!

Q
What do you charge?

Each agent sets their own commission structure, subject to a maximum of 1% for listing services and up to 1% payable to cooperating brokerages. Homes under $500,000 are subject to a minimum charge of $9,950

Q
Are your listings on MLS® and realtor.ca?

Yes, and yes.


Learn more about the One Percent Realty Deal