2598 MOUNTAINVIEW Crescent Unit# 33, Invermere

2025-08-22
 

Quick Summary

Location
2598 MOUNTAINVIEW Crescent Unit# 33, Invermere, British Columbia V0A1K6
Price
$759,900 CAD
Status:
For Sale
Property Type:
Single Family
Area:
2631 sqft
Bedrooms:
3
Bathrooms:
4
Year of Construction:
2007
Video Link:

MLS®#10360347

Property Description

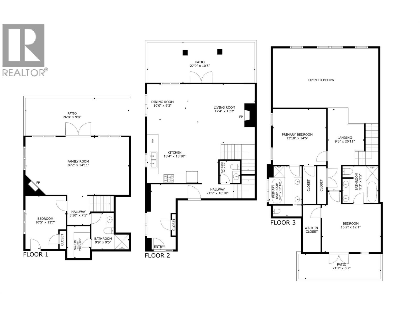
Elevate your lifestyle in this stunning mountain haven, where luxury meets nature in perfect harmony. Spread across 3 meticulously designed floors, this 3-bedroom, 3.5-bathroom retreat offers an unparalleled living experience. The heart of the home boasts a spacious living area, perfect for both relaxation and entertainment. The home's thoughtful design seamlessly blends indoor and outdoor living, with each level offering unique perspectives of the breathtaking mountainous surroundings. The open-concept kitchen and dining area, ideal for culinary enthusiasts, promises to be the backdrop for countless memorable meals and gatherings. As you ascend the staircase, you'll discover a built-in office space and dual primary suites that serve as your personal retreat. The large guest bedroom in the walkout level has ample room for your guests including a bathroom that features a steam room-suitable for six after a hard day of skiing. With its prime location this property not only offers luxury living but also outstanding mountain views and partial lake view with the promise of a wonderful Columbia Valley lifestyle. Whether you're seeking a permanent residence or a vacation getaway, this home stands ready to fulfill your dreams of mountain living without compromising on modern comforts and style. (id:32467)

Property Features

Building

  • Appliances: Refrigerator, Dishwasher, Range - Electric, Microwave, Washer & Dryer
  • Architectural Style: Split level entry
  • Basement Type: Full
  • Cooling Type: Heat Pump
  • Exterior Finish: Other
  • Fireplace: Yes
  • Interior Size: 2631 sqft
  • Building Type: Duplex
  • Stories: 3
  • Utility Water: Municipal water

Land

  • Land Size: under 1 acre
  • Sewer: Municipal sewage system

Maintenance Fee

  • Maintenance Fee: 600.00

Ownership

  • Type: Strata

Information entered by MaxWell Rockies Realty
Listing information last updated on: 2026-02-02 17:50:59


Book your free home evaluation with a 1% REALTOR® now!


How much could you save in commission selling with One Percent Realty?

Slide to select your home's price:

$500,000

Your One Percent Realty Commission savings

$500,000

Savings calculated using One Percent Realty's posted commission rates compared to another agent charging 7% on the first 100k & 2.5% on the balance + GST. Not all agents charge the same. Savings shown are illustrative only. Actual commission costs depend on the commission structure negotiated with your agent.

One Percent Realty's top FAQs

Q
What is the deal exactly, with One Percent?

We are a fully licensed real estate company that offers full service but at a discount commission. In terms of services and exposure, we are identical to whoever you would like to compare us with. We are on MLS®, all the top internet real estates sites, we place a sign on your property ( if it's allowed ), we show the property, hold open houses, advertise it, handle all the negotiations, plus the conveyancing. There is nothing that you are not getting, except for a high commission!

Q
What do you charge?

Each agent sets their own commission structure, subject to a maximum of 1% for listing services and up to 1% payable to cooperating brokerages. Homes under $500,000 are subject to a minimum charge of $9,950

Q
Are your listings on MLS® and realtor.ca?

Yes, and yes.


Learn more about the One Percent Realty Deal