4807 S 50 AVENUE, Fort Nelson

2025-07-30
 

Quick Summary

Location
4807 S 50 AVENUE, Fort Nelson, British Columbia V0C1R0
Price
$669,000 CAD
Status:
For Sale
Property Type:
Business
Area:
9072 sqft
Year of Construction:
2003
Video Link:

MLS®#C8071133

Property Description

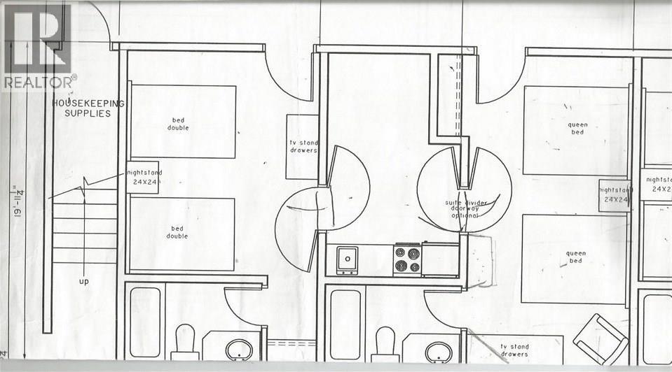
MIGHTY MOTEL! Built in 2003, owner-run and majorly maintained, this outstanding value is tucked away in plain view just off the World-Famous Alaska Highway. There is potential for multiple uses such as street retail with apartments overhead; bed and breakfast, or anything your imagination allows in a highway commercial zone. Perfectly and suitably built to house crews, with "pod-like" units. (2 self-contained bedroom units with a kitchen between. The kitchens could be shared or separately available to only one unit) 2-storeys, with enclosed outside stair-access and front balcony. All paved, centrally and conveniently located just steps from a laundromat and our local IGA grocery store. If there was ever an opportunity... this one's likely top of the list! (id:32467)

Property Features

Building

  • Cooling Type: Central air conditioning
  • Fireplace: No
  • Interior Size: 9072 sqft

Land

  • Land Size: 0.61 ac

Information entered by RE/MAX Action Realty Inc
Listing information last updated on: 2026-05-04 23:26:26


Book your free home evaluation with a 1% REALTOR® now!


How much could you save in commission selling with One Percent Realty?

Slide to select your home's price:

$500,000

Your One Percent Realty Commission savings

$500,000

Savings calculated using One Percent Realty's posted commission rates compared to another agent charging 7% on the first 100k & 2.5% on the balance + GST. Not all agents charge the same. Savings shown are illustrative only. Actual commission costs depend on the commission structure negotiated with your agent.

One Percent Realty's top FAQs

Q
What is the deal exactly, with One Percent?

We are a fully licensed real estate company that offers full service but at a discount commission. In terms of services and exposure, we are identical to whoever you would like to compare us with. We are on MLS®, all the top internet real estates sites, we place a sign on your property ( if it's allowed ), we show the property, hold open houses, advertise it, handle all the negotiations, plus the conveyancing. There is nothing that you are not getting, except for a high commission!

Q
What do you charge?

Each agent sets their own commission structure, subject to a maximum of 1% for listing services and up to 1% payable to cooperating brokerages. Homes under $500,000 are subject to a minimum charge of $9,950

Q
Are your listings on MLS® and realtor.ca?

Yes, and yes.


Learn more about the One Percent Realty Deal