2814 Juniper Crescent, Blind Bay

2026-03-11
 

Quick Summary

Location
2814 Juniper Crescent, Blind Bay, British Columbia V0E2W2
Price
$959,000 CAD
Status:
For Sale
Property Type:
Single Family
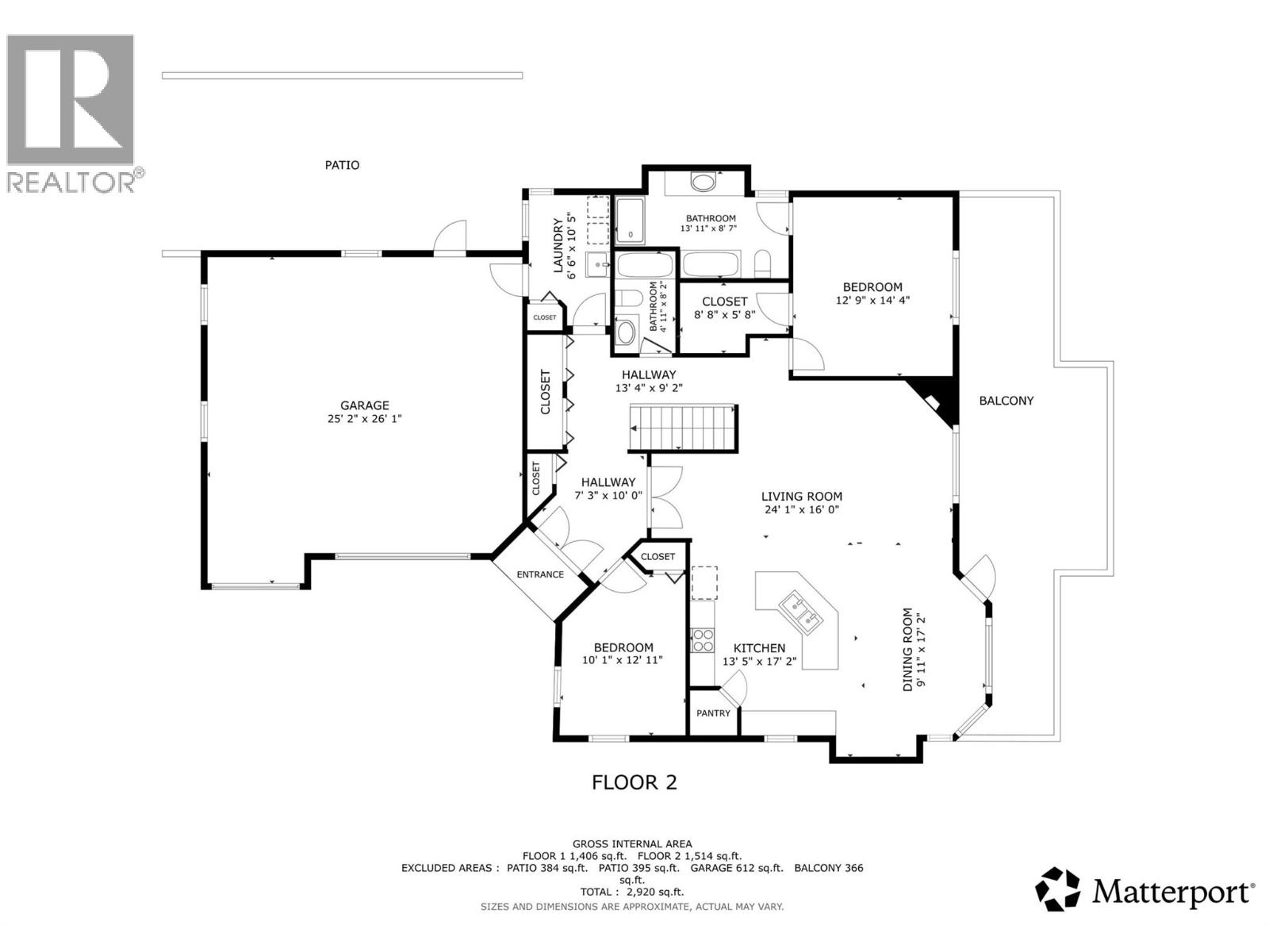
Area:
2941 sqft
Bedrooms:
4
Bathrooms:
3
Garages:
2
Year of Construction:
2005
Photo Link:
Video Link:

MLS®#10376918

Property Description

2814 Juniper Crescent, Blind Bay. If you want an incredible lake view from both the main floor and walk-out basement and your yard then this house more than ticks that box! Plus it's walking distance to the public beach accesses, on a quiet street in a great neighbourhood. This well built and well designed 2005 home is the perfect touch of modern and classic with hardwood flooring, gas fireplaces on both floors for added ambience. This home features 4 bedrooms and 3 bathrooms, plus a large family room downstairs. Plenty of storage room and a little wine-making room downstairs with a sink. Ample parking in the yard including room for an RV or boat. Plenty of gardening area in the backyard that has a lot of sun and a small fenced dog run area on the side of the house. Many recent upgrades to the home, including HE furnace and hot tank in 2018, central air 2023, new fireplace mantels and stonework, re-insulated entire attic under provincial program in 2023, wired for a hot tub, some updated appliances including stove, washer, fridge, new tile and glass in shower, new countertop in ensuite, most of the home includes new LED bulbs. Garage also features 220 plugs. Check out 3D tour. All room measurments done by matterport (id:32467)

Property Features

Ammenities Near By

  • Ammenities Near By: Golf Nearby, Recreation, Shopping

Building

  • Appliances: Refrigerator, Dishwasher, Dryer, Range - Electric, Microwave, Washer
  • Architectural Style: Ranch
  • Basement Type: Full
  • Construction Style: Detached
  • Cooling Type: Central air conditioning
  • Exterior Finish: Stone, Stucco
  • Fireplace: Yes
  • Flooring Type: Carpeted, Hardwood, Tile
  • Interior Size: 2941 sqft
  • Building Type: House
  • Stories: 2
  • Utility Water: Municipal water

Features

  • Feature: Corner Site, Balcony

Land

  • Land Size: 0.29 ac|under 1 acre
  • Sewer: Septic tank

Ownership

  • Type: Freehold

Information entered by Fair Realty (Sorrento)
Listing information last updated on: 2026-04-24 00:19:44


Book your free home evaluation with a 1% REALTOR® now!


How much could you save in commission selling with One Percent Realty?

Slide to select your home's price:

$500,000

Your One Percent Realty Commission savings

$500,000

Savings calculated using One Percent Realty's posted commission rates compared to another agent charging 7% on the first 100k & 2.5% on the balance + GST. Not all agents charge the same. Savings shown are illustrative only. Actual commission costs depend on the commission structure negotiated with your agent.

One Percent Realty's top FAQs

Q
What is the deal exactly, with One Percent?

We are a fully licensed real estate company that offers full service but at a discount commission. In terms of services and exposure, we are identical to whoever you would like to compare us with. We are on MLS®, all the top internet real estates sites, we place a sign on your property ( if it's allowed ), we show the property, hold open houses, advertise it, handle all the negotiations, plus the conveyancing. There is nothing that you are not getting, except for a high commission!

Q
What do you charge?

Each agent sets their own commission structure, subject to a maximum of 1% for listing services and up to 1% payable to cooperating brokerages. Homes under $500,000 are subject to a minimum charge of $9,950

Q
Are your listings on MLS® and realtor.ca?

Yes, and yes.


Learn more about the One Percent Realty Deal